查看完整案例

收藏

下载
位于阿威罗Liceu区的São Sebastião街和Oita大道交汇处的一块土地上有一栋空置房屋,正等待城市重建。
Located in the Liceu neighborhood, Aveiro, in the intersection of Rua de São Sebastião and Avenida de Oita, a plot of land with a vacant house was awaiting urban redevelopment.
▼项目概览,overview of the project ©Ivo Tavares Studio
▼街景,street view ©Ivo Tavares Studio
▼建筑外观,exterior of the project ©Ivo Tavares Studio
在一块占地677.50平方米的地块上,建筑师建造了一栋有六层、26 套不同面积公寓的大楼。这栋大楼分成两个部分:一栋主要为公寓,分为两种类型(两居室和三居室)和专用垂直通道,另一部分为小型公寓(套间和一居室),由于毗邻阿威罗大学,其主要是为大学提供住宿。设计提案中建筑面向街道,延续了原始的与街道平行的关系,并且考虑了建筑所在区域已经整合的城市结构,从而使临街面得以封闭。
In the plot with 677.50 m² we created a building with six floors and 26 apartments of different sizes. It is divided into two parts: one eminently residential, with larger typologies (2 and 3 bedrooms) and dedicated vertical accesses, and another part with smaller typologies (studio and one bedroom), with the aim of providing university accommodation given its proximity to the University of Aveiro. The proposal is developed facing the street, continuing the existing alignments and taking into account the already consolidated urban structure of the area where the building is located, thus allowing the street front to be closed off.
▼庭院一侧视角,view from the courtyard ©Ivo Tavares Studio
▼入口,entrance ©Ivo Tavares Studio
▼走廊,corridor ©Ivo Tavares Studio
▼公寓内部,apartment inside © Ivo Tavares Studio
▼旋转楼梯,spiral staircase ©Ivo Tavares Studio
设计目的旨在在Oita大道和São Sebastião街的转角处实现立面的过渡。为了实现这一目的,设计强调了门廊式的结构,通过立面的立柱和横梁赋予建筑美感。由于该建筑将沿着São Sebastião街进行拆迁,因此将一直拆迁到达到市议会条例中规定的楼层数为止。为了实现这一目的,通过柱子和横梁之间的墙壁和玻璃,建筑师营造出一种充实和空虚的关系。
The aim was to create a gradual transition between the elevations of the buildings on Av. de Oita and those on Rua de São Sebastião. To this end, the porticoed structure was emphasized, giving it an aesthetic sense in the elevations marked by the pillars/beams. Since this volume is to be dematerialized along Rua de São Sebastião, this structure will be dematerialized until it reaches the number of floors provided in the Information of the city council’s. To this end, a relationship of fullness and emptiness was created through the walls and glazing between pillars and beams.
▼夜间公寓,building at night ©Ivo Tavares Studio
▼夜间公寓,building at night ©Ivo Tavares Studio
▼灯光下的立面,facade with lights ©Ivo Tavares Studio
▼立面阳台细部,facade detail ©Ivo Tavares Studio
住户们从São Sebastião街一侧的建筑进入,进而进入垂直交通流线,因而一层的整体空间都被预留给大型的商业需求。立面的材料选用的是 CIN 的 Etics 颜色系统中编号为0731的浅橡木板。阳台栏杆选用的是微孔金属板,涂有 RAL 6028 色漆,装饰有实心浅色橡木。
The dwellings are accessed from the side of the building on Rua de São Sebastião, allowing access to the vertical communication elements, thus freeing up almost all of the first floor area for a large commercial establishment. The materials used on the façade are CIN’s Etics color system ref: 0731 with light oak wood sheeting on the blind walls. The railings are micro-perforated sheet metal painted RAL 6028 with a solid light oak wood top.
▼地下室平面,basement plan ©GRAU.ZERO Arquitectura
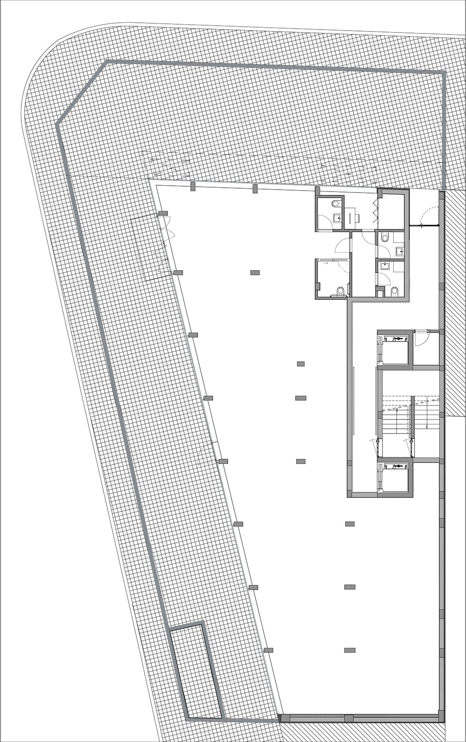
▼一层平面,ground floor plan ©GRAU.ZERO Arquitectura
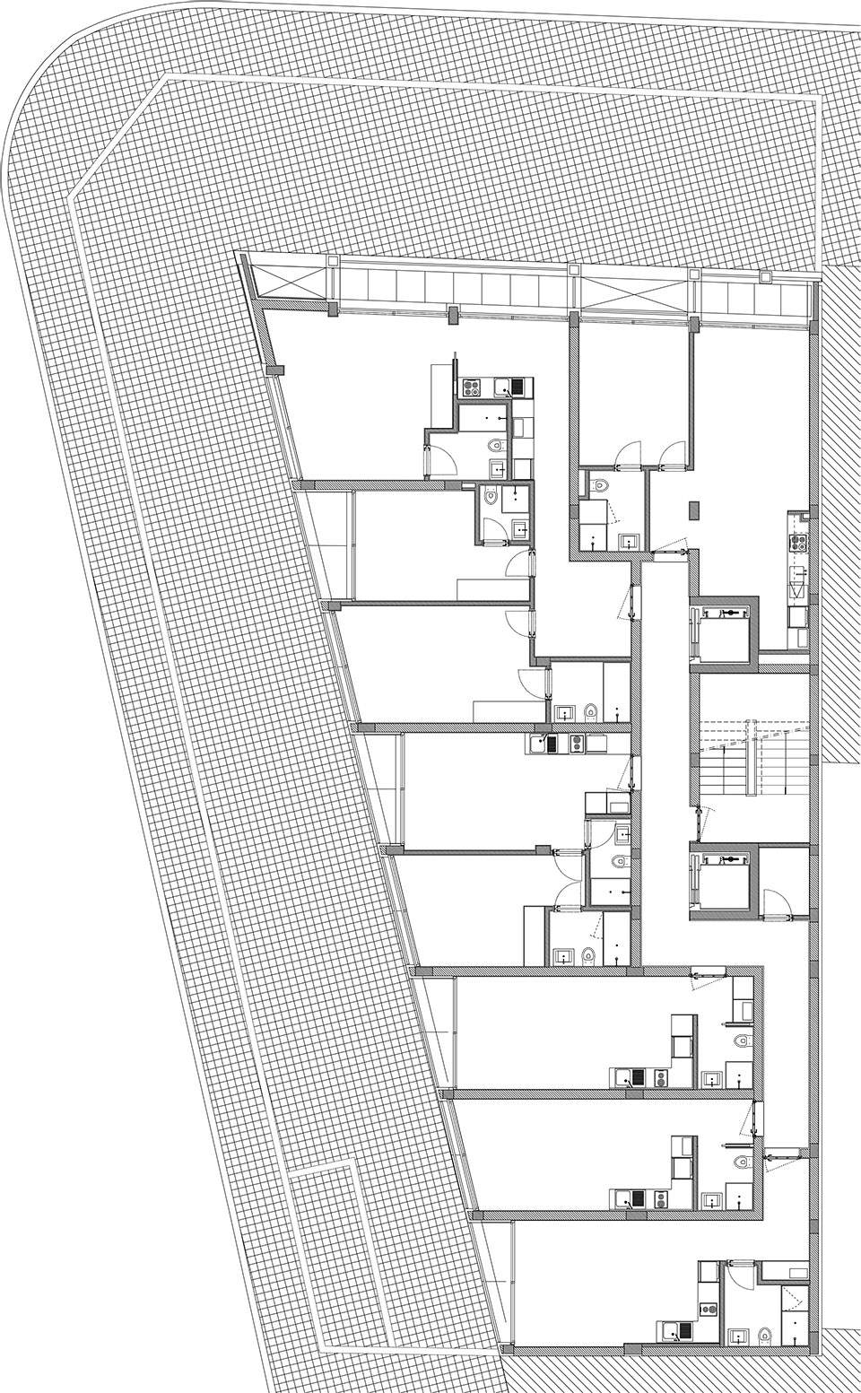
▼二层平面,first floor plan ©GRAU.ZERO Arquitectura
▼三层平面,third floor plan ©GRAU.ZERO Arquitectura
▼四层平面,fourth floor plan ©GRAU.ZERO Arquitectura
▼五层平面,fifth floor plan ©GRAU.ZERO Arquitectura
▼六层平面,sixth floor plan ©GRAU.ZERO Arquitectura
▼屋顶平面,roof plan ©GRAU.ZERO Arquitectura
▼立面图,elevation ©GRAU.ZERO Arquitectura
Project name: Campus F.03
Architecture Office: GRAU.ZERO Arquitectura
Main Architect: Sérgio Manuel Nobre
Collaboration: Joana Barbedo, Rui Pacheco, Paula Pereira
Location: Aveiro
Year of conclusion : 2023
Total area: 2800 m²
Builder: Brisa de ieias, Lda
inspection: Rogério Silva
Engineering: J.pino – Engenharia Lda
Architectural photographer: Ivo Tavares Studio
Website :
客服
消息
收藏
下载
最近







































