查看完整案例

收藏

下载
项目位于新密市尖山风景区杨家沟村,周围环境优美,静谧宜人。原有建筑是一座坐落在村子内的在本地常见的三层民居,整体呈 L 型布置,一道弧形的院墙将建筑与外部村道隔开。建筑依地形面向东南方向,眼前是一片开阔的农田。业主委托我们将原本准备退休后回村自住的房子也是对外经营的农家乐,进行整体的改造提升。
The project is located in Yangjiagou Village, Jianshan Scenic Area, Xinmi City, surrounded by a beautiful and tranquil environment. The original building is a common three-story residential house in the village, arranged in an L-shape. A curved courtyard wall separates the building from the village road. The structure follows the terrain, facing southeast, with a vast expanse of farmland in front. The owner has entrusted us with the overall renovation and upgrade of the house, which was originally planned as both a retirement residence and a farmhouse business for rural tourism.
▼院墙和楼体,fence and building©Dong image
▼入口立面,entrance view of the hotel© Dong image
▼民宿入口,entrance view © 深建筑
鉴于作为酒店对外经营的需求,设计时将原有相对封闭的院子打开,一部分院墙改为通透性更强的格栅,同时在入口处增加木结构的雨棚,既增加了入口仪式感,也使场地内外可以通过雨棚下的灰空间自然过渡。考虑业主在酒店经营淡季自住的需求,临近院子入口的一间套房也增加了独立的院子与出入口。
▼体块分析图,analysis diagram© 深建筑
In consideration of the hotel’s operational needs, the design opened up the originally enclosed courtyard. Part of the courtyard wall was replaced with a more transparent grille structure, and a wooden canopy was added at the entrance. This not only enhances the sense of ceremony at the entrance but also creates a natural transition between the interior and exterior spaces through the shaded area under the canopy. Taking into account the owner’s need for self-occupancy during the hotel’s off-season, an independent courtyard and entrance were added to a suite near the courtyard entrance, providing privacy and convenience.
▼建筑及周边环境鸟瞰,aerial view of the building and its surroundings © Dong image
▼院内绿植及建筑,relationship between courtyard landscape and the building© Dong image
▼民宿入口,entrance view© 深建筑
▼民宿夜景,night view of the hotel© Dong image
▼外立面夜景, night view of the facade© Dong image
在有限的预算下,对建筑进行大刀阔斧的改造是不切实际的。设计时通过使用烧杉木、柚木、青石等材质搭配组合为质朴的外立面形象。原有建筑的二楼三楼有延伸的阳台,设计时用玻璃封起来,形成一个“盒子”与入口新建的“盒子”造型组合,让建筑造型更富有层次感。
增加外挑构件,立面上遮住原有建筑结构的奇怪构建,另外可以从视线上过滤远处的高压线塔。光线通过格栅投影在走廊和客房内,随着太阳东升西落不断变换。
With a limited budget, making drastic renovations to the building was unrealistic. Therefore, the design used a combination of materials such as charred wood, teak, and bluestone to create a simple and rustic facade. The original building had extended balconies on the second and third floors, which were enclosed with glass during the renovation, forming a “box” that, when combined with the newly built “box” at the entrance, added a sense of layering to the architectural form. Additionally, protruding components were added to cover up some awkward structural elements of the original building’s facade, while also helping to visually filter out the distant high-voltage towers. Light filters through the grille, casting changing shadows in the corridors and guest rooms as the sun moves throughout the day.
▼院内,courtyard© Dong image
▼接待入口处,reception© Dong image
▼一楼过道,first-floor hallway© Dong image
▼三楼楼道,third-floor hallway© Dong image
西北方位靠近建筑一侧有大块的山石延伸到基地内,当时业主盖房子把一部分石头包裹在室内,这是对场地的一种妥协,也成为这栋建筑独特的亮点。业主和我们都想尽可能保留并强化这块石头和建筑融合的特点,所以在这个区域设计一个抬升的地台,石头犹如悬空的盆景与接待区相映衬。
On the northwest side of the building, large rocks from the mountain extend into the site. When the owner originally built the house, part of the rock was enclosed inside the structure, a compromise with the site that also became a unique highlight of the building. Both the owner and our team wanted to preserve and emphasize the integration of the rock with the building as much as possible. Therefore, we designed an elevated platform in this area, making the rock appear like a suspended bonsai, complementing the reception area.
▼石头与空间的关系,relationship between stone and space© 深建筑
▼石头与空间的关系,relationship between stone and space© 深建筑
室内墙面整体采用灰泥涂刷,呈现出自然的纹理和色泽,给人质朴的感觉,与建筑的简约与朴素相呼应。灰泥的粗糙质感与地面锯齿纹路的实木板搭配,增加整个空间的层次感。同时灰泥的中性色调与家具布艺颜色接近,营造出柔和的氛围。
The walls are finished with a plaster coating, which presents a natural texture and color, giving a rustic feel that complements the building’s simplicity and modesty. The rough texture of the plaster contrasts nicely with the patterned wooden flooring, adding depth to the space. The neutral tones of the plaster also harmonize with the colors of the furniture and fabrics, creating a soft and cohesive atmosphere. This design approach effectively balances aesthetics and practicality, providing a serene and welcoming environment.
▼客房景观,landscape view in the room© Dong image
▼客房内景, interior view©深建筑
▼原有结构抬高的地面,interior view© Dong image
▼床头,interior view© Dong image
▼客房一角, a corner© Dong image
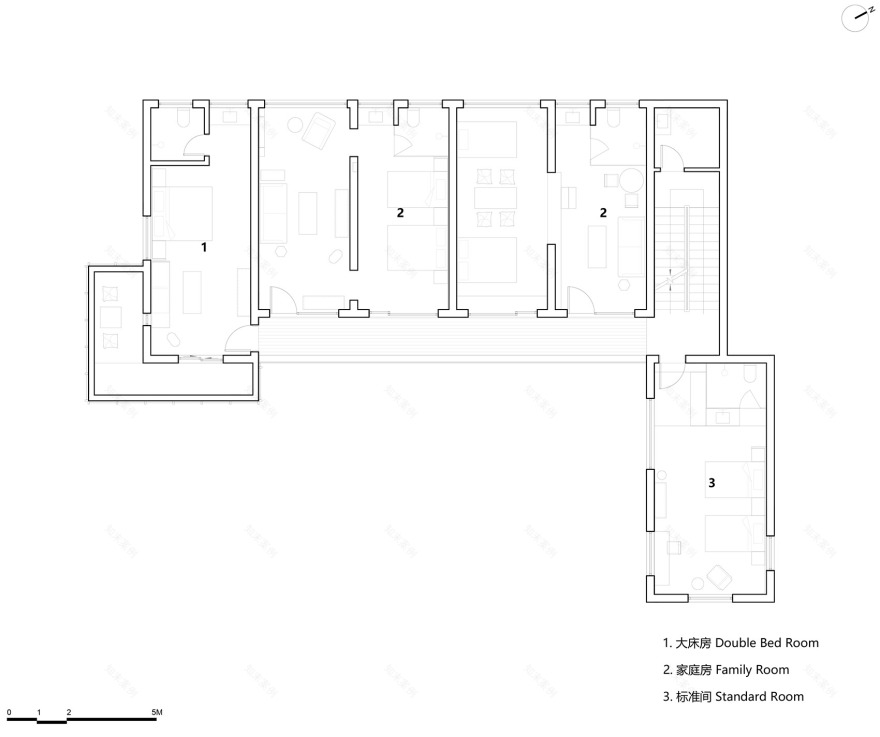
▼一层平面,ground floor plan © 深建筑
▼二层平面,2F plan© 深建筑
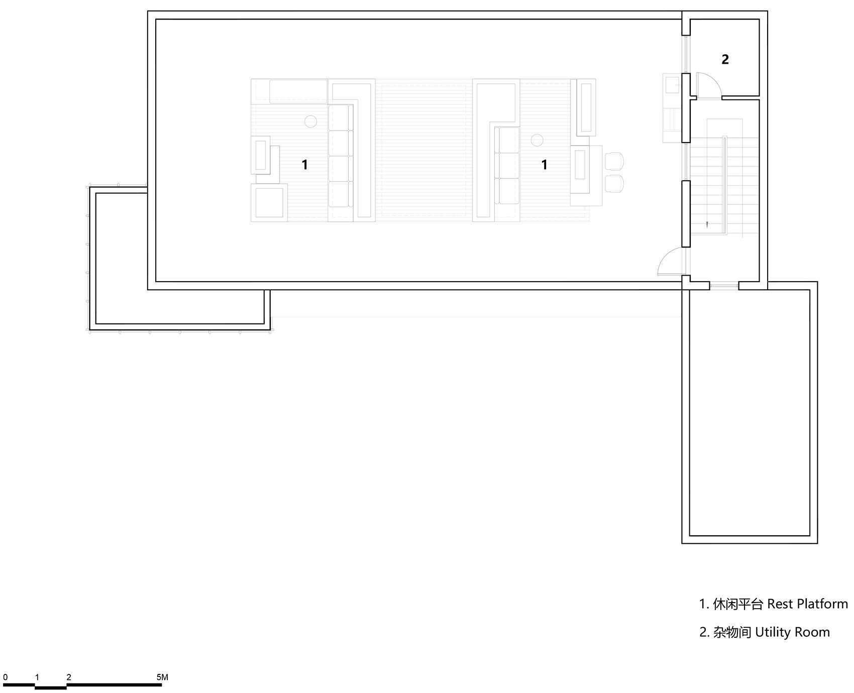
▼屋顶平面,RF plan© 深建筑
项目名称:怀抱石头的民宿
项目类型:酒店
设计方:深建筑
项目设计:2022 年
完成年份:2023 年
设计团队:申元奎,刘隆,戴志文,张蒙蒙,王丽媛,王天娇
项目地址:河南.郑州.新密
建筑面积:612㎡
摄影版权:Dong 建筑摄影,深建筑
客户:大山小院酒管公司
材料:柚木、灰泥、青石、阳光板等
Project name: Hotel with a stone inside
Project type: Hotel
Design: Atelier Shen
Design year: 2022
Completion Year: 2023
Leader designer & Team: Shen Yuankui,Liu Long,Dai Zhiwen,Zhang Mengmeng,Wang Liyuan,Wang Tianjiao
Project location: Xinmi,Zhengzhou,China
Gross built area: 612㎡
Photo credit: Dong image,Atelier Shen
Clients: Dashanxiaoyuan hotel management company
Materials: teak,plaster,stone,PC sun board
客服
消息
收藏
下载
最近





























