查看完整案例

收藏

下载

翻译
Architects:AMZ Arquitetos
Year:2023
Lead Architects:Pablo Alvarenga, Daniel Semião
Collaborator:Giovani Betini
City:Sao Paulo
Country:Brazil
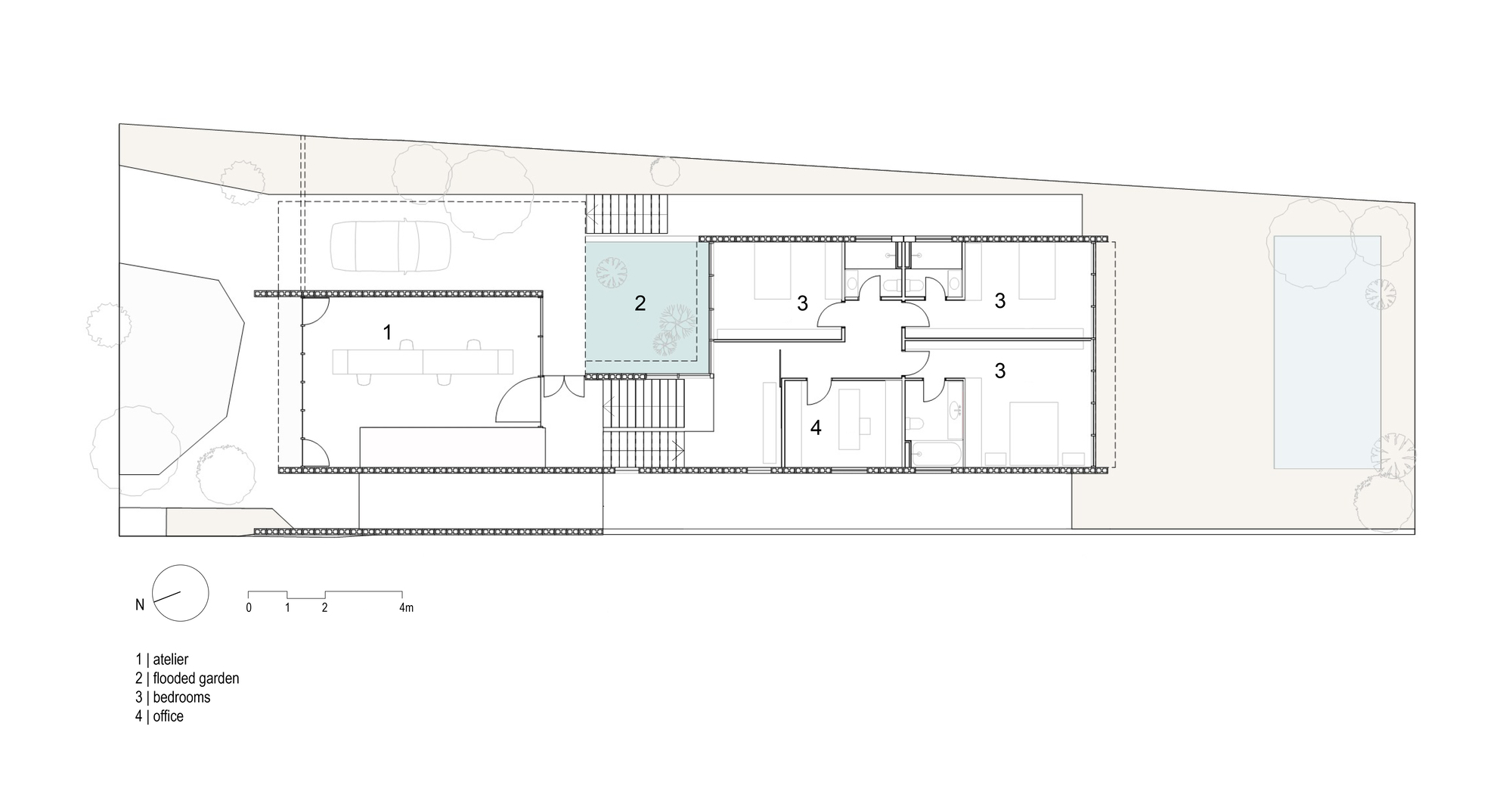
Text description provided by the architects. The house “Ateliê Residência EA” was designed to be the residence and creative space of a plastic artist. The project aimed to ensure the privacy and independence of the atelier during its use, but also its integration with the rest of the house on weekends and events.
In order to follow the original topography of the site, the program was divided in multiple levels: the atelier occupies the front and highest portion of the lot; situated half a level below is the social area; and positioned half a level above is the private section of the residence.
Internally, the attelier and the house are interconnected by a vertical circulation atrium. Externally, a flooded garden creates the desired calmness and separation between the two functions, while transparency maintains a visual connection throughout.
The longitudinal opaque walls act as support for the artist's canvases during production and collection. In contrast, the glass window panes on the transverse facades facilitate the passage of light and ventilation across both structures throughout the day, allowing a complete perception of the lot's depth.
To implement this project, a prefabricated mixed construction system was used. Concrete block gables emerge from the foundation levels, with metallic profiles set between them. These profiles provide support for wooden slabs used in the flooring and roofing. All construction elements, as well as the hydraulic infrastructure, remain exposed.
Project gallery
客服
消息
收藏
下载
最近









































