查看完整案例

收藏

下载
别墅区的的地理位置如其命名,建于绿意深处,远城市的喧嚣,绿化覆盖率高,植被丰富,其舒适的宜居环境,一步一景,身处自然,为居者提供了丰富的视觉体验和户外活动空间。
“生活在城市中,难免丝竹乱耳,不如遁入蝉鸣晚风中,得一份闹中享静和融于自然的悠闲”。对于本案屋主二人来说,“家”,是有自在的目的地。居内承载对生活的态度和追求,推开窗便是树影婆娑,青烟绿雾。静卧于桃源一隅,时岁翻页,其心自如。而归居,以沉静之姿,映照人心之境。其言者,方寸之地,即是桃源。
推窗但见绿意浓,尽意悠游自无拘杯盏茶禅观月舒,且抛俗常万千缚霞彩铺陈染云弧,墨香轻嗅韵自殊灯火荧然似天星,乐作桃源恬居图
设计构思 Design concept生活的张弛,融入结构的起伏,梳理人与空间、自然与居住的维系关系。不受限于常规框架下的思维,聚焦于垂直关系的意趣与表达,将原本只存在同一平面空间的互动可能,变成立体空间下的互通性,同时将“当代性”、“文化性”、“艺术性”共融共生,以此作为设计语言用于空间叙述。
峡谷意向,引而入室。入户玄关的灵感来源于屋主在美国羚羊峡谷感受到的自然奇观。
设计师以其意向为引,自然光透过顶部的口子倾泻而下,与玻璃砖墙相互作用,创造出如梦如幻的光影效果,玄关柜上的装饰画将峡谷风貌点缀进设计呼应里,从楼梯处透过玻璃砖看向玄关,半隐虚半现实的橙红带来绮丽的艺术视觉。
而归家的仪式感,在打开门的即刻,陡然而生。
再一转角的豁然,即是挑空的会客厅,敞亮舒爽的空间气质在布局的腾挪之后扑面而来。
两个承重柱在方圆之间支撑起地下两层空间,让空间结构变得更加丰满。一边圆柱独立,成为空间的点缀,结构的视觉穿插形成相互关系;另一边围绕方柱所在的位置巧妙划分地下两层功能区域的作用。
玻璃材质用作于区域间的隔而不断,保障了地下室的采光以及空气的流通性。原木材质融入恰到好处的温润质感,定制的开放格书柜从负二层延伸到负一层的书房,让地下层空间在整体上具有一定的统一性。
清谈半窗月,澹坐一杯茶。既可以是公共空间也可以作为私密空间,集书房、茶室、冥想室于天井采光处,一人静坐或是以茶会友,随着时间生发的故事,可以由窗外的草木来讲述。
书房空间,围绕承重柱做了定制书桌,屋主二人可以对坐着同时用,也不会显得拥挤。桌子的侧边藏了一个可以抽出放置笔的小木盒子,满足偶尔用笔的需求,也能保持桌面的整洁。
自然光和灯光是过道以及楼梯空间最大的装饰元素,结构的镂空设计和玻璃材质相互作用,将通透感拉大限度。
从传统与当下的共通、碰撞处,在艺术与生活的交错、和谐处,在记忆碎片与当下思想的结合中,寻找设计这个“家”的精神诉求。
构造如几何纯粹,勾勒出细节中的日常。一层楼梯空间通过凿壁借景的手法,在光影上点睛赋力,随影静止,拂光律动。
客厅扩出部分空间,裸露的梁通过顶面的弧面做了一个结构的设计,似断又连,而材质的粗犷与精细,沉稳与轻盈,拉开视觉和触感差异,材料之间的碰撞与对话也为空间增添了一份独有的趣意。
设计师在一层和地下室之间做了一个挑空的设计,在客厅挖出一块区域作为采光井,给予自然光和空气流通的同时,很好的解决了别墅空间层与层之间缺少互动性的弊端。
因屋主的烹饪爱好,我们将这一层三分之二的空间用在了开放式的中西厨功能区。
餐厨区域的中心是大型岛台+长餐桌,岛台一侧围绕原本的承重墙做了镂空的储物收纳,在中西餐厨间形成洄游双动线。同时这个空间也承担了更多对外社交的功能。
青砖、原木、山石,将大自然的灵动和清新融入都市,将江南园林的气韵糅进现代摩登。
刻意模糊了室内与室外的区隔,庭院的景与自然光影的变化成为了生活的背景,亦与宅内的烟火气融为一处。
二层的书房是可开放式设计,木元素串联起空间呈现,窗外是自然万物,向内更有寰宇,书房在阅读之外亦承担起悦己的情绪价值。
空间不再是单纯的陈列之所,更是艺术生活化的体现。光影瞬间,治愈的低饱和色系,材质与质感的呼应,流转着惬然的生活意韵。
在暗卫的一侧墙体做了一些几何的玻璃元素,让室内光线可以透过玻璃进入卫生间,同时通过多种模式的灯光设计来提升空间的亮度。
将屋主的生活方式塑造成独有的家的形态,在经历格局的洗礼后,空间的互动性、采光度、通透性随之提升。时间、自然、光线、器物在空间里,与建筑一同精准地表达着生活的意义。
低纯度的灰色系奠定了主卫空间宁静舒适的氛围,而原木的自然气息带来生机与馨然,既有简净的质感,也有温润经久的耐看。
阁楼的主题是“童年”,承载了屋主对儿时的记忆。坡屋顶有着儿童画中“家”的直观形象,梁与柱的拼接线条同时营造几何雕塑形体的美感。满书格的漫画书、投币游戏机、带有哆啦A梦元素的滑板门把......斜窗沁入的光线裹挟着旧时画面,一寸寸触动现时心绪。
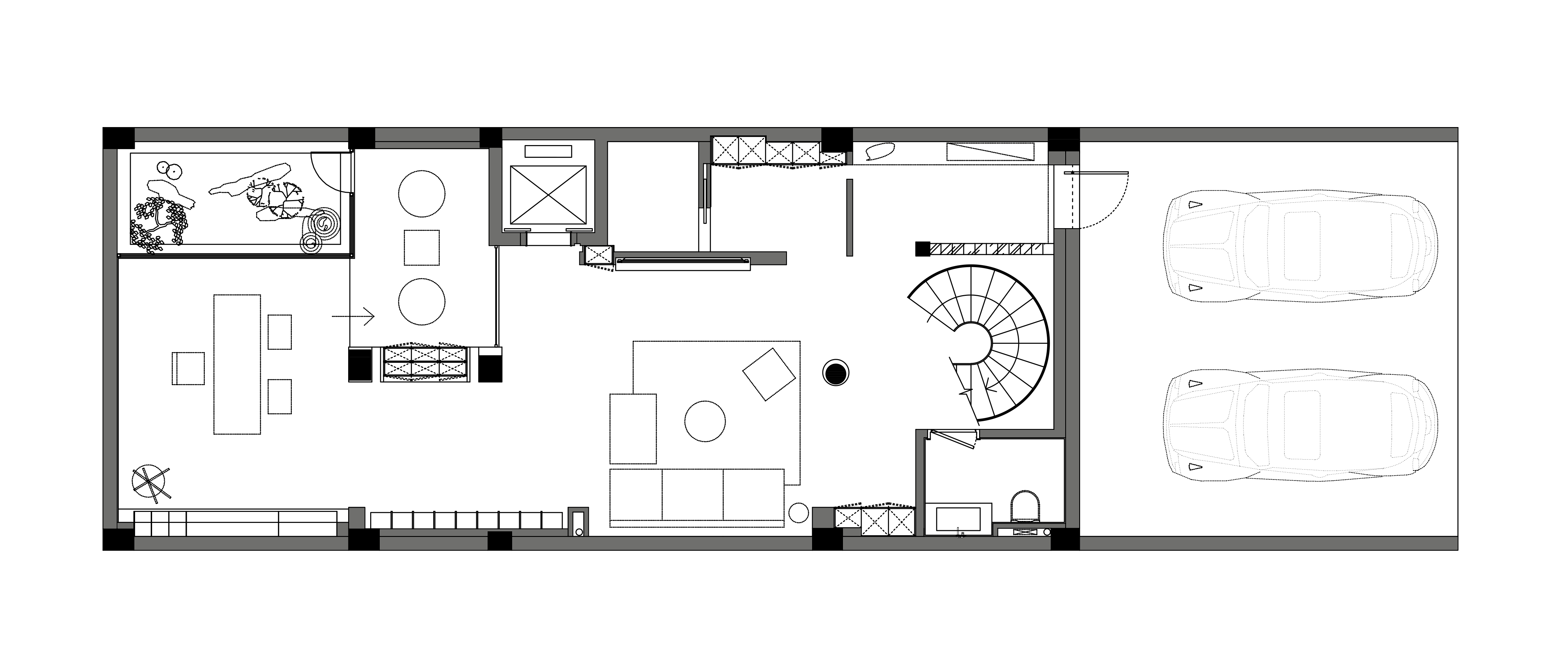
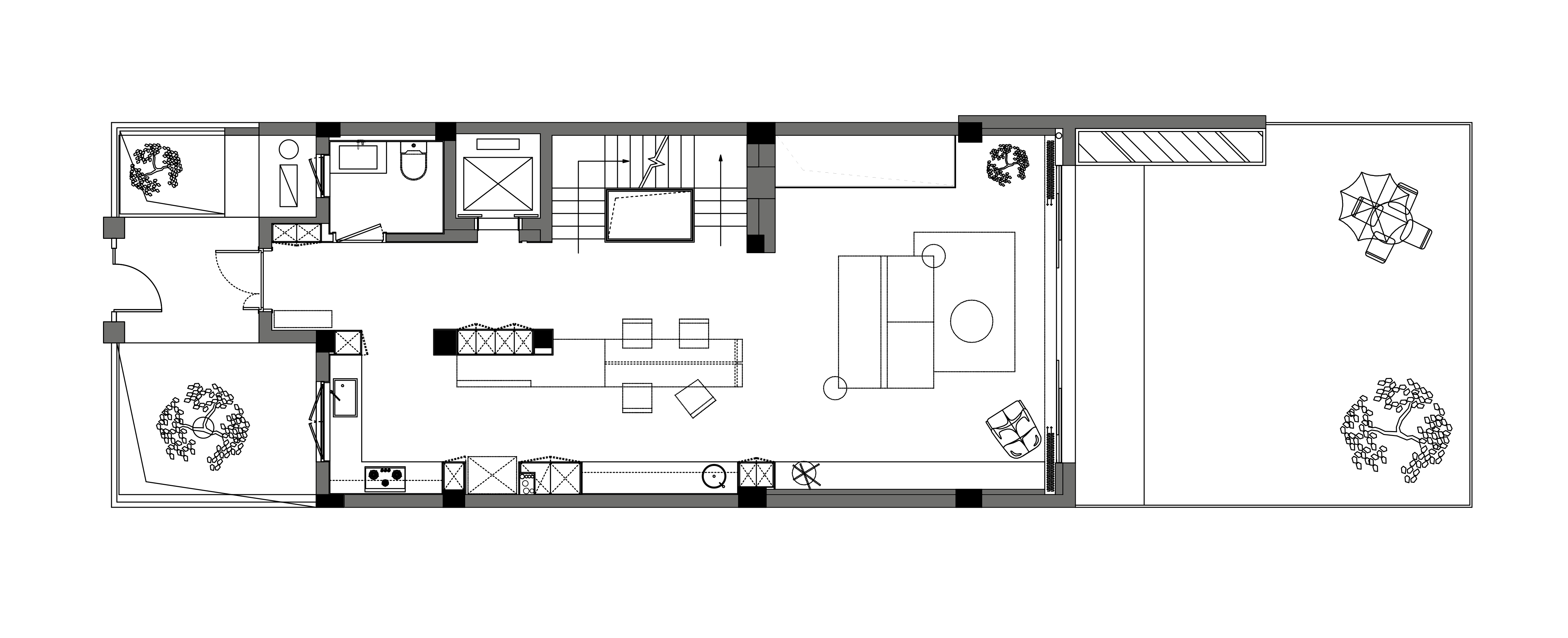
平面布置图
■ -2层
■ -1层
■ 1层
■ 2层
■ 3层
■ 4层
项目地点 ︱ 浙江杭州
项目名称 ︱ 桃源小镇
项目类型 ︱ 别墅项目
全案设计 ︱ 辰佑设计
施工单位 ︱ 梵品筑匠
客服
消息
收藏
下载
最近


































































