查看完整案例

收藏

下载
千炽·牛排铁板烧项目位于深圳前海鸿荣源中心,该商场是前海最新的超级综合体,千炽作为该商场的形象店入驻,铁板烧品类具备竞争优势。
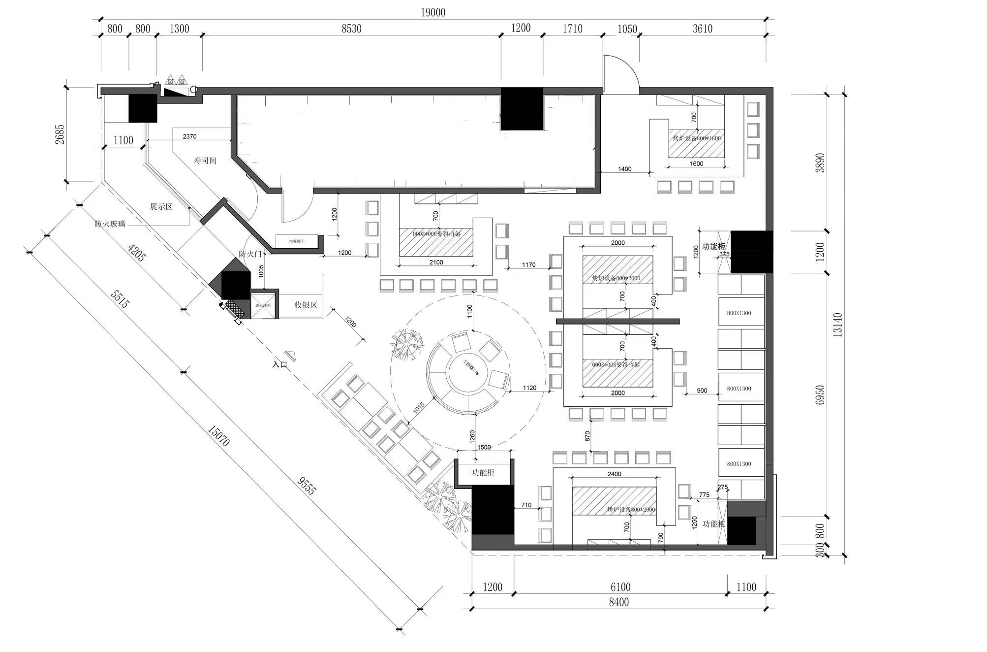
千炽是品牌方的升级版本新品牌 ,在平面布局上就与品牌方进行了多轮的沟通,铁板台需要多少张,四人卡座的数量等,为了能更好的把握方案的准确性,设计师对运营团队和消费者的需求进行了充分的了解与分析。
每个门店的竞争环境、消费人群不同、运营要素等都会影响到平面布局图。最终确定该门店在平面布局上需要5张铁板台,多少张铁板台决定了每位厨师能兼顾到多少位客户数量,服务人员的数量匹配,厨师、服务人员人数会影响门店的运营成本。
设计并不是只考虑到设计方案,而是通过设计帮品牌方来实现门店的效率与成本控制。
从动线上来说,除了要让消费者舒适,也要让内部员工厨师团队好用提高效率。不仅考虑消费者的需求,也要考虑板前厨师团队与消费者的互动,服务人员与消费者的互动。
在利用率和美观上要取得一个比较好的平衡感。同时也要兼顾到其他四人卡座、半开放式包间的隐私性和舒适性。
# 千炽·牛排铁板烧效果展示
从外立面图来看,这个门店的门面展示区是比较长的,并且正对扶手梯口,是该楼层的人流聚集口。设计团队在考察了现场环境后,门头设计要醒目+吸睛,能直接为门店引流。
商场周围的写字楼办公人员比较多,午间外带可为门店带来部分收益。门面设立部分明厨展示区和寿司外带展柜,可直观看到部分产品的现切与现场制作。与进店客户分为两条动线,下单即可外带提走,提高门店频效。
设计方案整体风格上与同品类竞品区分,建立千炽的独特性,整体色调上选用的古铜色,突显门店的品质感与高级感,打造有质感有氛围的就餐体验。在空间中融入品牌超级符号,形成独特的视觉记忆点。
铁板烧是食物在铁板上滋滋作响被烹制的现场感,有烟火气气氛要温暖热闹,厨师会现场表演,体现铁板烧独特体验。
消费者落座于铁板板前可以直观感受到原食材以及现场烹制,食材从铁板到餐桌,直观感受一场艺术表演。加上用餐环境的打造,营造出全方位沉浸式体验。
设计师围绕这样的用餐形式,门店的互动、色彩以及设计用材上选择,都是挑选了能体现出铁板烧品类的主体。
设计就餐环境不仅能为消费者带来美好体验,同时也为品牌方提高空间的频效。
客服
消息
收藏
下载
最近











