查看完整案例

收藏

下载

翻译
Architects:Biome Environmental Solutions
Area:760ft²
Year:2023
Photographs:Vivek Muthuramalingam
Lead Architects:Sharath Nayak, Shruthi Talsania
Technical Team:Mahendar.R
Engineering & Consulting > Structural:Shashidhar K.S.
General Constructing:Sia constructions
City:Bengaluru
Country:India
Text description provided by the architects. The project is an addition-extension project in a building housing multiple families. Deepthi and Hemanth lived on the lower floor with their parents. The upper floor previously consisted of a small home for Hemanth's uncle and an open terrace.
Deepthi and Hemanth wanted a unit for themselves to be built on this open terrace. The brief specified a sitting space, a kitchen, a dresser, a toilet, and a sleeping space with a small study. The terrace was bound by the uncle's unit to one side and by closely spaced neighbors' buildings on the other three sides. Thus, there were no external views and privacy was going to be a challenge since any windows would open onto the neighboring homes. A court of sorts was created to separate the new addition from the uncle's home. This became a shared outdoor space between the two homes.
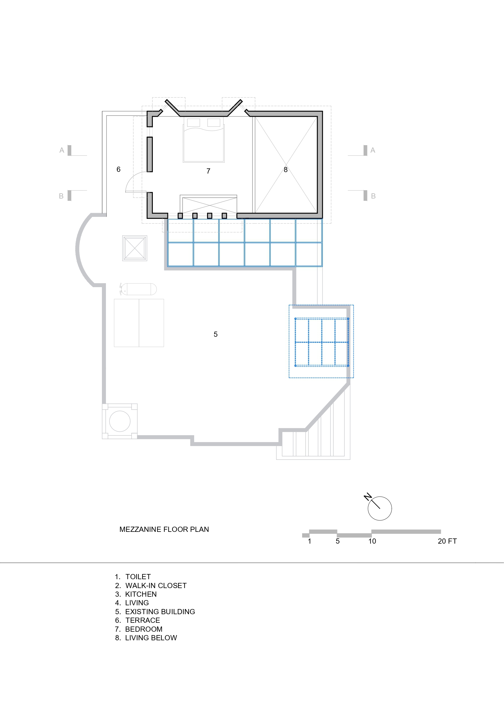
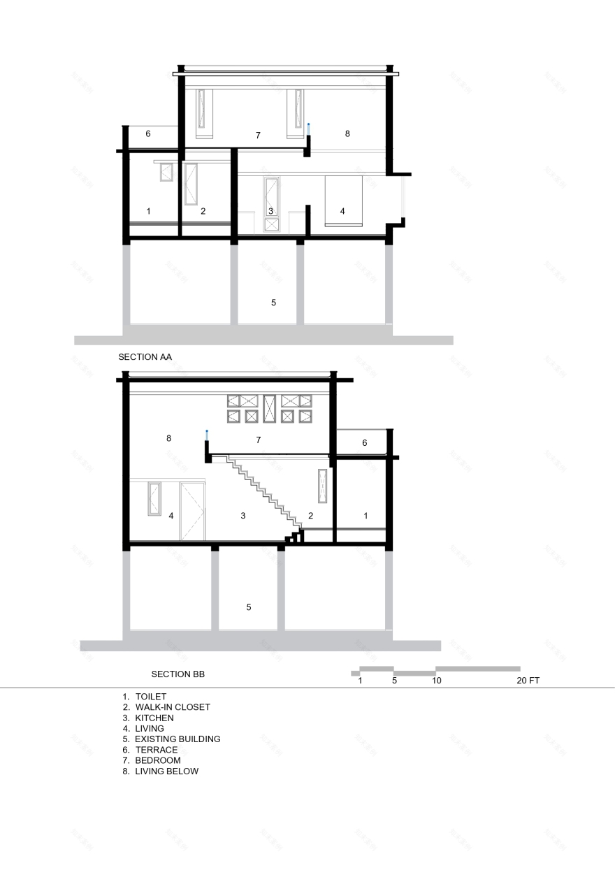
The site has a public park across the road and it was determined that by going one level higher, the windows toward the street would get a view of the tree canopies in the park. The final layout therefore took the bedroom and study one level higher, by placing them on a mezzanine above the toilet, dresser, and kitchen. While this created views and provided access to the upper terrace, it also provided the opportunity to create a higher ceiling over the sitting space, thus creating a more voluminous "sense of space". The dresser and the toilets are hidden behind the kitchen but kept accessible to those at the lower level. The staircase to the mezzanine starts in the dresser area thus allowing privacy from the sitting space. A small amount of demolition was needed for the older parapet. The resulting debris has been used to build a 'mud concrete' wall between the kitchen and dresser.
The decision to move the bed space up by a level meant that part of the terrace on the lower level was still left free, creating a court of sorts for use by the other families. It also allowed space to access the upper terrace for Deepthi and Hemanth. Deepthi is a yoga practitioner and teacher. Access to the terrace also allows her to use the terrace as a space for yoga. A bamboo screen outside the terrace door creates a private nook for reading.
The windows in the study area are designed so as to minimize the view of the terrace floor below (which had service equipment like the solar water heater for the old house) and focus on the tree canopies across the road instead. The double height volume also holds a small skylight that brightens the living space and allows a reduction in the number of windows towards the neighboring houses.
The interior of the house is spartan and non-imposing. Every nook in the house has been designed to have a use, and often more than one. To keep the compact spaces clutter-free, seats are built into the windows to provide a feeling of spaciousness. Other windows are angled to ensure that the neighbors do not have a direct view into the house and to capture and direct breeze coming from different directions into the house. The angled windows also create sills that double up as bedside ledges, again reducing the need to bring in more furniture.
The material palette used in the house consists of browns, greys, black, and whites. Cement flooring is used throughout the house, except where the use of the space demands a different material, such as the kitchen and toilet. Splashes of color in the form of cement oxide have been used selectively to create visual interest
Project gallery
客服
消息
收藏
下载
最近



















