查看完整案例

收藏

下载
该餐厅设计以现代高品质舒适简约为风格特点餐厅整体空间布局给人大气统一又不失该餐厅设计以现代高品质舒适简约为风格特点,餐厅整体空间布局给人大气统一又不失变化的感觉。餐厅在设计上没有过于抢眼的造型,也没有丰富色彩的叠加,而是以最典型的现代简约风格。整体上采用统一的深灰色色调,在细节处点缀少量的亮色,满足了顾客对于享受舒适愉悦的进餐环境氛围。餐厅在设计上没有过于抢眼的造型,也没有丰富色彩的叠加,而是以最典型的现代简约风格。整体上采用统一的深灰色色调,在细节处点缀少量的亮色,满足了顾客对于享受舒适愉悦的进餐环境氛围。照明设计上,整体上采用暖色调,搭配筒灯射灯以及吊灯。
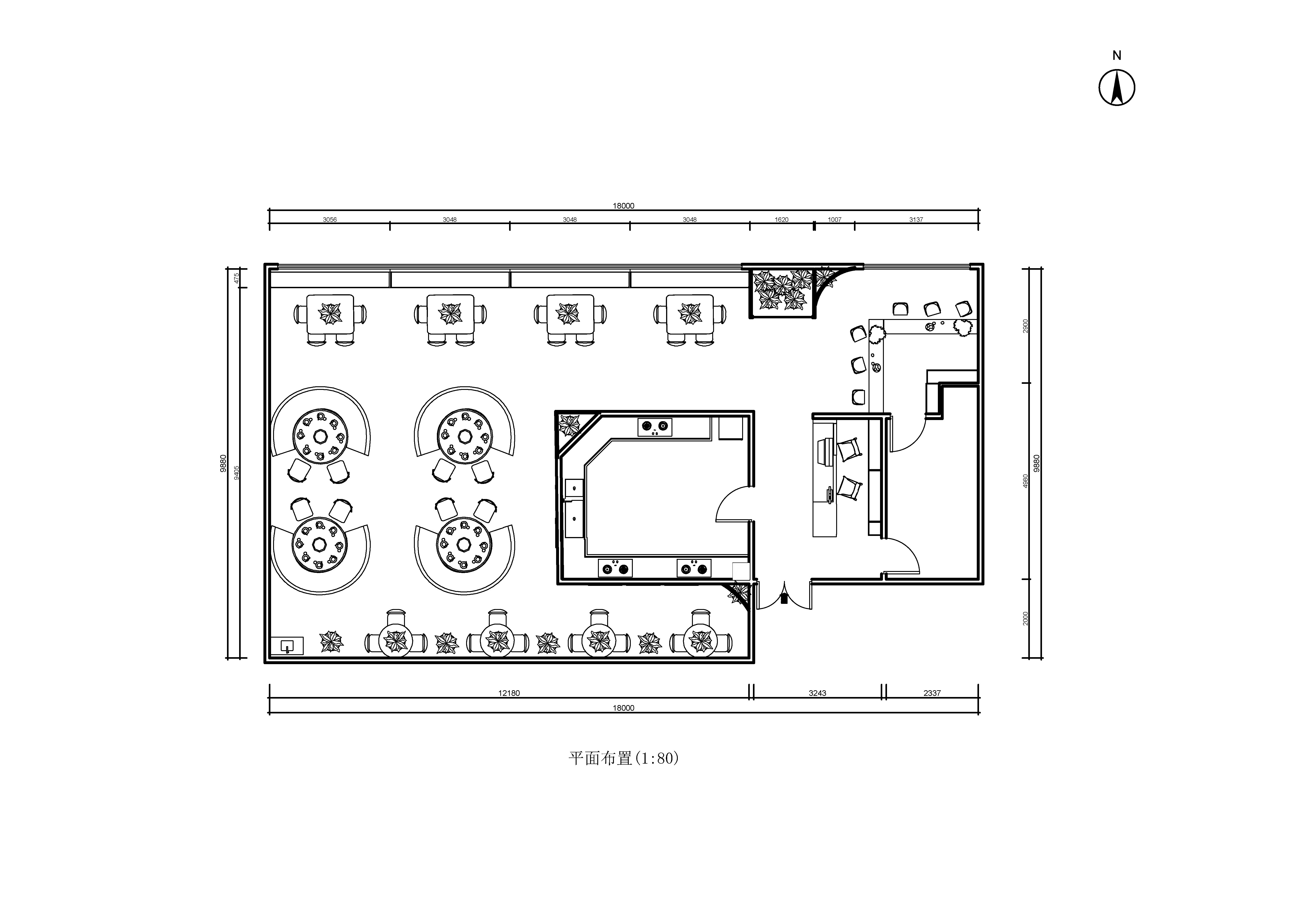
该餐厅整体面积为163平米,在设计上使用大量的现代轻奢元素,整体色调为黑灰色,辅之少量亮色。在家具选择上使用大量现代简欧风的餐桌。餐饮在吊顶装饰上也选择了极具设计感的灯具,符合餐厅整体的调性。在厨房的设计上使用大量现代简欧风的餐桌餐椅,在吊顶装饰上也选择了极具设计感的灯具,符合餐厅的整体调性。下一餐厅的设计上选择了传统的封闭式设计。厨房内部流线清晰方便食品厨房内部流线清晰,方便食品的制作。
检查。公共就餐区主要以三人到六人的用桌餐位为主。餐桌采用的简约轻奢的设计风格,多为黑色系。每个餐桌的正中间区域都搭配了符合餐厅调性的吊灯。同时,为了更好地满足食客的用餐需要,在公共就餐区旁设置了一处小面积的吧台区域,吧台设计可以最多满足六个人的就餐需要。餐厅在拐角处设计了绿色植物的透明玻璃展示柜。为餐厅点缀细节。
客服
消息
收藏
下载
最近


















