查看完整案例

收藏

下载
项目名称/ WonderGlam服装店
设计机构/ 魔戏空间设计 ® ABDdesign ®
项目地址/ 辽宁·沈阳
主要材质/ 艺术漆、石材、金属
项目面积/ 872㎡
完成时间/ 2024
项目负责/ 张博 创意设计/ GeGe
设计团队/ 卢楚婷 施幸浩
效果图表现/ 曾刚
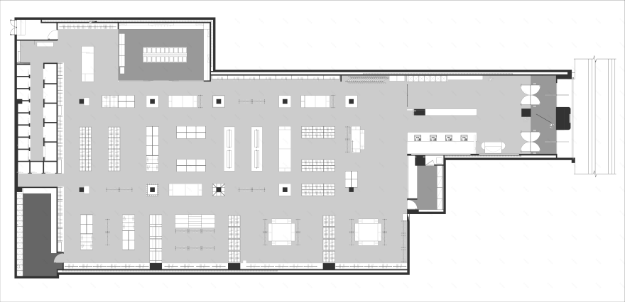
△彩平示意图
△施工前
△施工中
空间色彩
-
店铺整体以浅色作为空间底色,从米白、浅米到米棕色,层叠交织,营造宁静、舒适的氛围,暖灰色内敛、稳重,在轻盈柔和的基调上增添了一份力量感。
空间材质
-
空间之中,艺术涂料搭配海洋板组合,着力营造自然、舒适的场景印象。同时,洞石的细腻质感与天然纹理,碰撞金属的冷峻,创造一种随性与严谨交织的丰盈体验。
01
门头区域
-
门头通体采用铁锈板饰面,斑驳的表面有着与生俱来的历史厚重感,使“时间”这种无法捕捉的概念视觉化,营造独特且个性化的视觉效果。可旋转的门竖向划分比例,并分散人流、优化动线。
02
店内区域
-
铁锈板饰面从门头延续至内,又随之消失不见,营造好似时空穿越的新奇体验。入口区搭建小型山野造景,模糊了都市与自然的界限。
店内以米白色艺术涂料为基底,视觉统一触觉温润。搭配海洋板、洞石、金属等多元化材质,以独特的纹理和自然的美感,打造柔和舒适且不失格调的空间。
△入口区
既是流线自由的轻松空间,也是规整的矩形空间,多形式的陈列架与展示柜台错落有致,功能区域清晰划分,打造多元包容的生活方式买手店。
△大厅陈列区(服装)
△缝纫区
秩序之下是丰富的层次。流动质感的海洋板充满了生命力,温暖的木调柔化了空间,与粗犷裸露的承重柱冲突矛盾,却又感受到了自然的呼吸和生机。带有光泽感的不锈钢反复应用于挂衣杆、柜台以及部分墙面,轻盈冷冽的质感丰富了空间层次。
△大厅陈列区(日化)
△大厅陈列区(百货)
△大厅陈列区(化妆品)
△陈列特写
更衣室安静而私密,在走廊尽头安装有茶色镜面不锈钢,微弱映射着店内情景,人群走过的虚影与店内铺陈形成互动,为空间增添生动感。
△更衣室
- End -
.
MERCI DESIGN
客服
消息
收藏
下载
最近































