查看完整案例

收藏

下载
设计机构: 五色土(西安)空间设计有限公司
设计师:何延延
作品类别:住宅建筑
新徽派设计风格在新农村宅基地住宅建造说明:
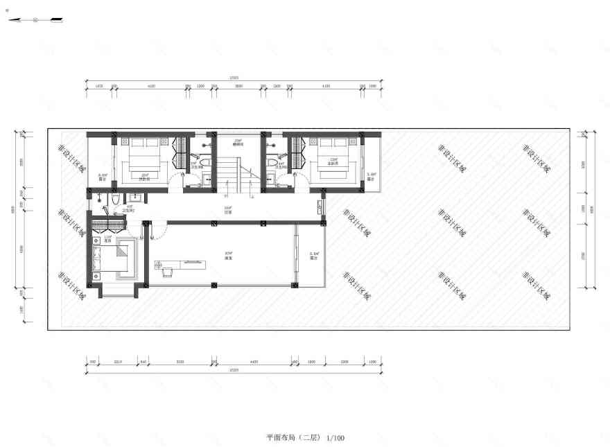
项目概况:农村宅基地自建(宅基地东西宽11.5米;南北深33米)
项目地点:西安 设计费用:5W
建筑结构:砖混二层(一二层各120㎡;前后花园150㎡院外52㎡)
人工造价:人工280元/㎡ 建筑材料:380元/㎡
客户信息:美院毕业从事教培行业,安徽人居西安;
设计理念:考虑整体拓展可能,结合考虑乡村振兴计划,项目可无限复制,打造最美乡村,魅力新农村人居空间。
功能说明: 一层(前厅,客厅,老人房套房,公用洗手间,独立餐厅,厨房,工具间) 二层(画室兼起居室/露台,公用卫生间,客房,主次卧独立套房) 本项目为西安郊县项目,原有农村住宅为红砖结构的传统人字顶柴房;因房屋老旧重新翻盖,周边空气清新,临近山脚,房屋附近有大规模农田。
项目初期本意为民宿兼住宅自用,整体风格打算以现代极简风格,框架结构呈现。在多番了解后发现并不适合作为民宿使用,功能性变成纯住宅项目,在项目总造价上业主希望控制尽量低造价,但是必须保障整体美观。
设计从初期的极简建筑风格后结合安徽籍人士对徽派建筑的亲切感,有考虑到整体经济的造价,结构确定为砖混二层结构带院落,整体风格为新徽派建筑,以确保人的乡愁得以体现,整体白色基调配以简化的马头墙元素,深色线条做檐口,整体简洁大气,传统的飞檐融入,均衡美的院墙设计手法,非对称性居中的大门!
客服
消息
收藏
下载
最近












