知末
知末
创作上传
VIP
收藏下载
登录 | 注册有礼

别墅空间初步设计

2022/07/21 18:21:17
查看完整案例
微信扫一扫
收藏
下载
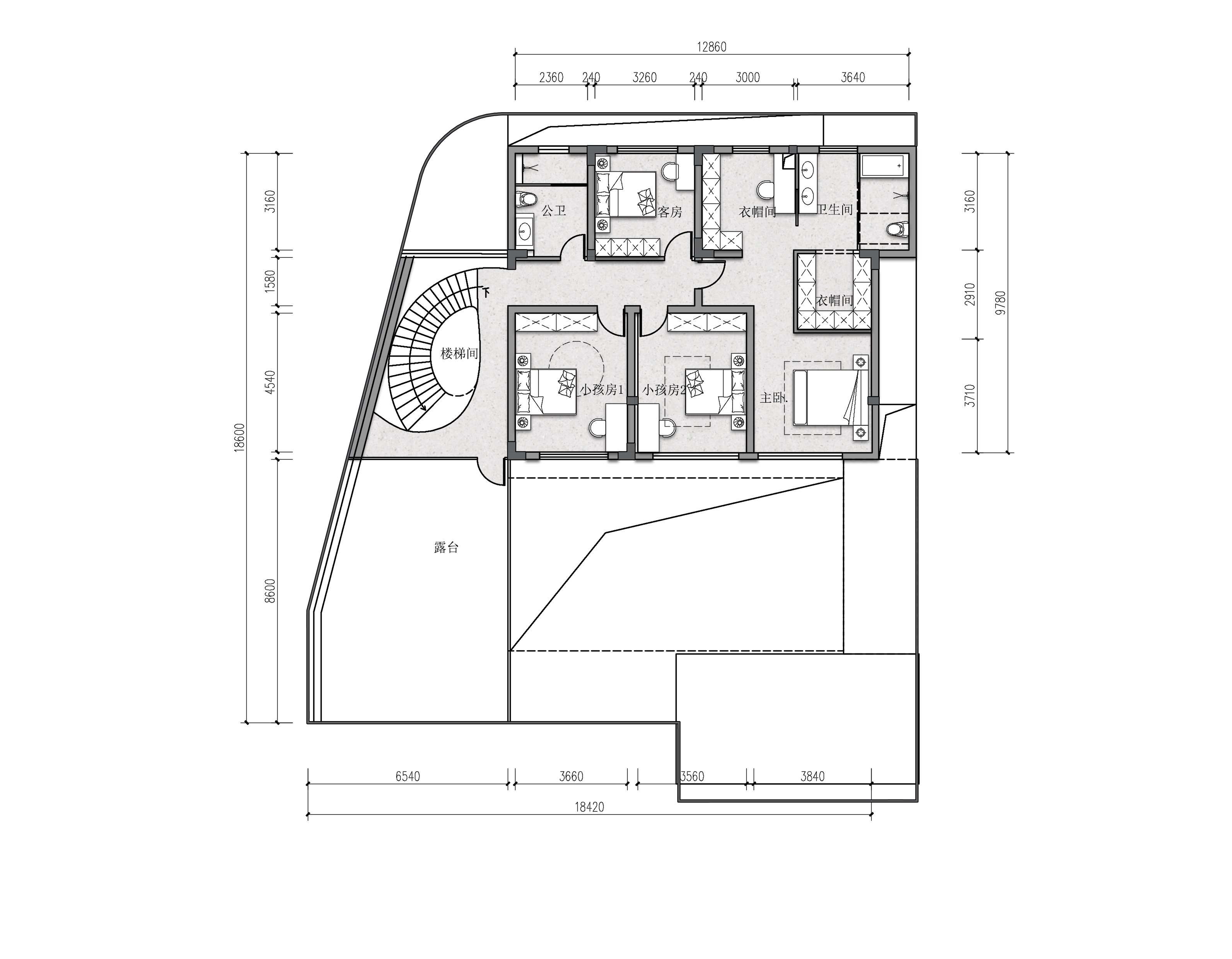
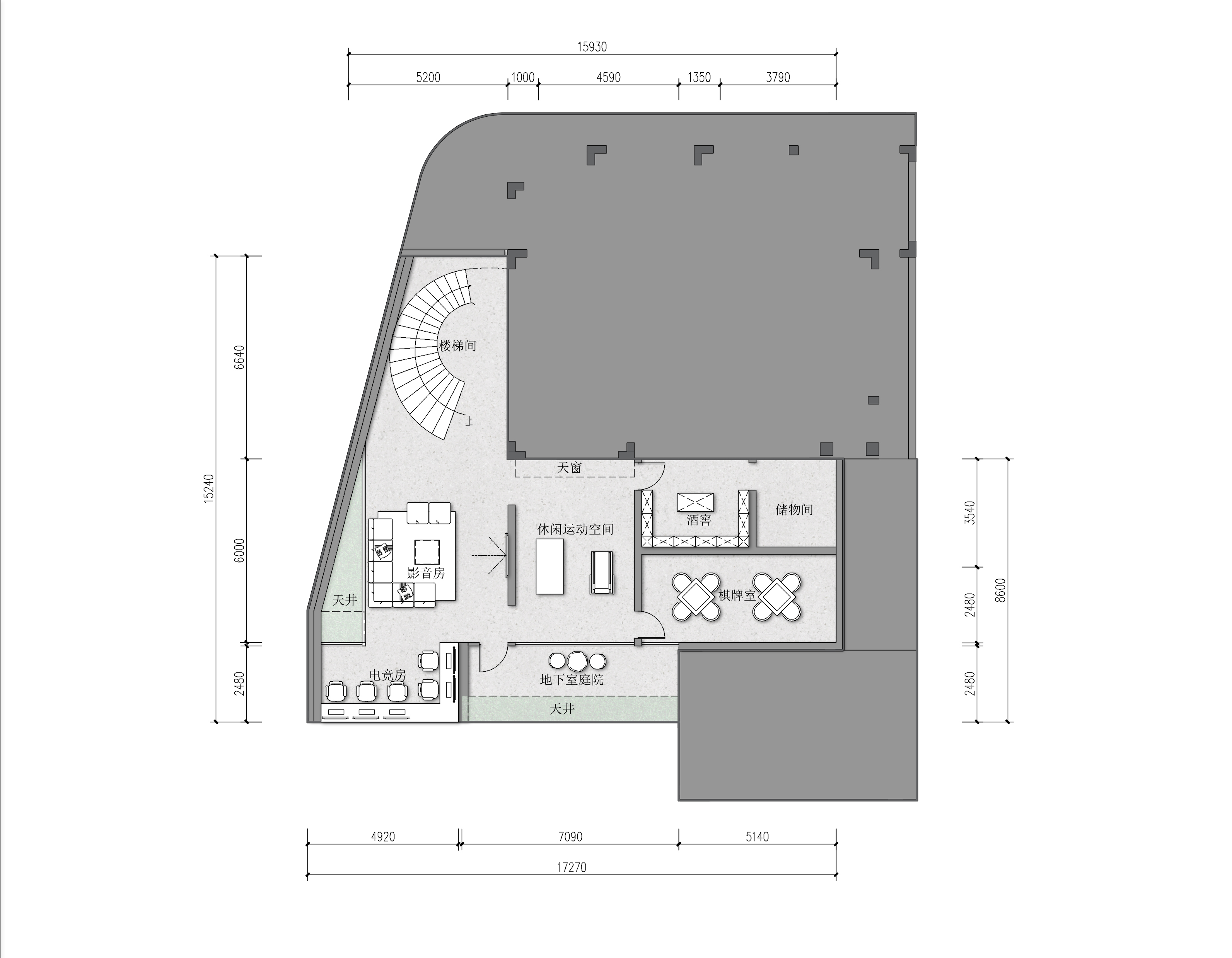
项目背景:别墅业主的需求是希望重新规划空间,并且是不是有可能增加一个地下室空间,外加庭院的设计
项目内容:从现场考察量尺——方案平面设计——空间规划——模型推敲——初步空间展示
后续:因为加建扩建原因,目前正在沟通和协商
别墅空间初步设计-3
别墅空间初步设计-4
别墅空间初步设计-5
别墅空间初步设计-6
别墅空间初步设计-7
别墅空间初步设计-8
别墅空间初步设计-9
别墅空间初步设计-10
别墅空间初步设计-11
别墅空间初步设计-12
别墅空间初步设计-13
别墅空间初步设计-14
别墅空间初步设计-15
别墅空间初步设计-16
别墅空间初步设计-17
别墅空间初步设计-18
别墅空间初步设计-19
别墅空间初步设计-20
南京喵熊网络科技有限公司 苏ICP备18050492号-4知末 © 2018—2020 . All photos and trademark graphics are copyrighted by their owners.增值电信业务经营许可证(ICP)苏B2-20201444苏公网安备 32011302321234号
客服
消息
收藏
下载
最近