查看完整案例

收藏

下载

翻译
Architects:Canoa Arquitetura
Area:516m²
Year:2023
Photographs:Ana Mello
Manufacturers:Atelier Morito Ebine,Atlas,Casa da Coifa,Construflama,Deca,Doka,Futon Company,Granitorre,Hoshizaki Macom,Hunter Douglas,Lemca,Lumini,Marcenaria Baraúna,Mekal,Mel Kawahara,Nordic Structures,Ovo,Pau Pau,Punto e Filo,REKA, +4Schüco,Stella,Tecnogran,Trimble Navigation-4
Lead Architects:Mario Moura, Victor Gurgel
Design Team:Priscilla Wazima
Structures:Inner Engenharia
Electrical And Hydraulic:Ramoska & Castellani
Lighting Design:Lux Projetos – Ricardo Heder
Landscape Design:Oficina2mais Paisagismo
Waterproofing:Proassp
Environmental Comfort:Arqio
Legalization Consultancy:GL&B Projetos - Guiomar Leitão
Exposed Concrete Consulting:Vértices – Gabriel Regino
Construction:Marcondes Ferraz Engenharia
Carpentry:Marcenaria Baraúna
City:São Paulo
Country:Brazil
Text description provided by the architects. Designed for a typical urban plot of approximately 400m², in the Jardim Paulistano neighborhood of São Paulo, Brazil, the Venceslau House project originated from an initial dissatisfaction when attempting to reconcile a relatively large program with a set of rigorous urban regulations, demanded within the conservation area of the Jardins neighborhoods. The obligation to maintain a minimum setback of 1.50m on one of the lateral boundaries suggested a longer building oriented towards one of the neighbors.
On a plot with a 12m front, the resulting open areas were thus narrow and residual, seeming incompatible with the clients' primary desire to create a large lawned backyard, a free space for the children's and family's activities. Given that the terrain was mostly flat and with neighboring buildings very close, the surroundings did not offer remarkable qualities to both the internal and external areas. In response to these conditions, the project was guided by the implementation of two reinforced concrete lateral walls, which establish a new place where the house can rely. If, on the one hand, the two parallel planes offer privacy concerning the neighbors, on the other, they also frame new perspectives.
The upper floor consists of two separate blocks, each containing two suites. Their arrangement favored the best sunlight exposure for the bedrooms: the first block is positioned transversely and opens to the front of the site, facing north. Thus, it received special treatment with retracting brise-soleils, allowing both control of direct sunlight in the winter months and ensuring privacy from the street. The second block is rotated 90° and positioned adjacently to the western boundary, therefore increasing the setback from the eastern boundary, allowing the two bedrooms to open to the comforting morning sun. This configuration allowed a more concentrated occupation of the plot, thereby ensuring more space for a sizable lawn that spans the lot's entire width.
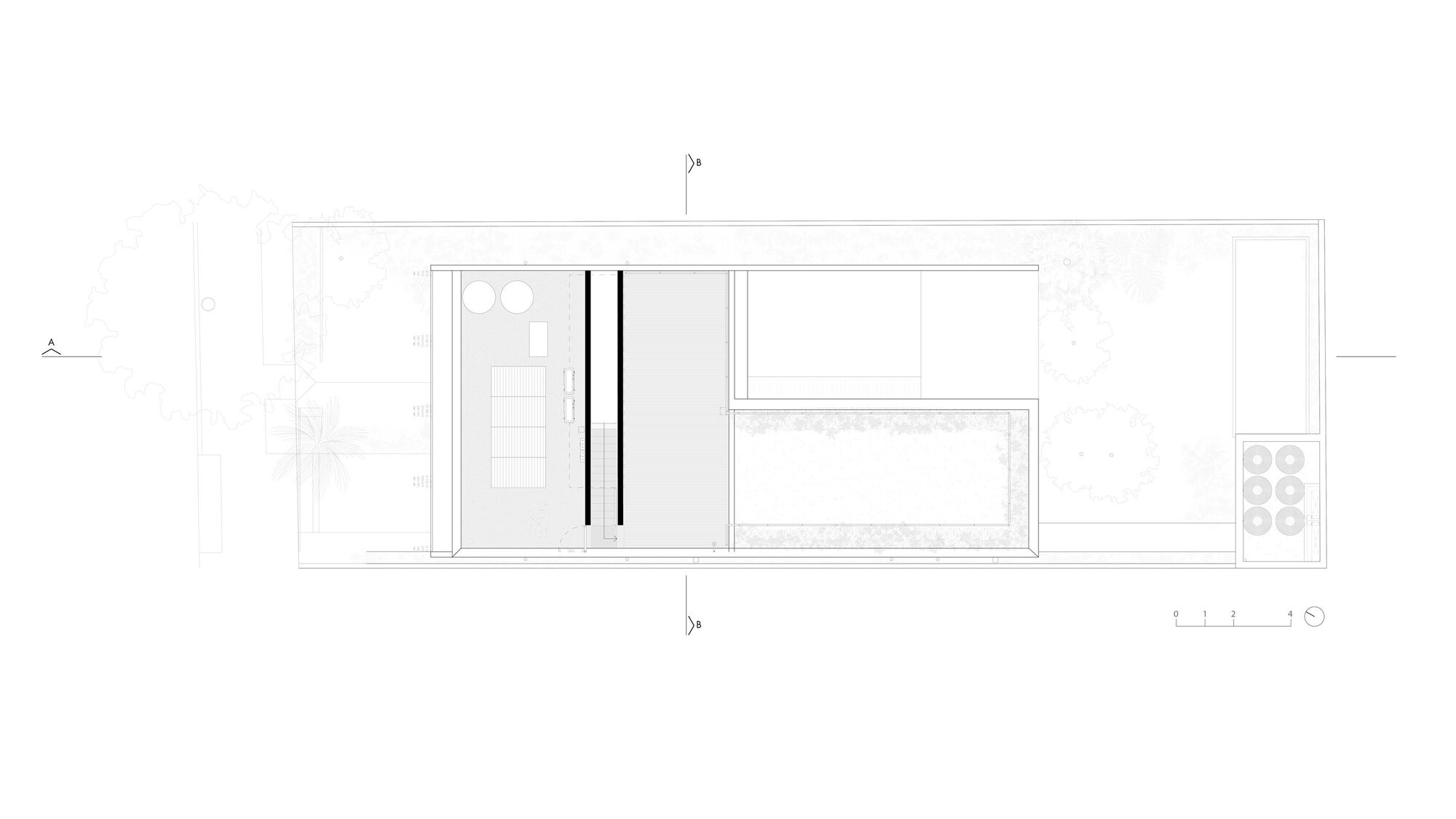
The ground floor was designed as an open area and hosts social programs: living room, dining, kitchen, and barbecue areas. The spacing between the two sets of bedrooms resulted in a double-volume space, integrating the living room with the first-floor TV room, in a richly spatial situation. It is precisely in this recess that the house's vertical circulations occur, as well as a skylight that enhances natural lighting in the central part of the floorplan. Additionally, the large glazed opening adjacent to the double-volume space, facing south, serves to bring a view of the sky and stars into the house, without the inconveniences of direct sunlight. By means of open and covered and uncovered spaces between the two blind walls, as well as using large-format aluminum and glass frames with full opening spans, the project explores varied forms of integration between "inside" and "outside," allowing various usage combinations in the transitional spaces from the interior to the garden.
The concrete walls also dictate the structural solution of the house. Each of them is supported by two pillars, spaced 15m apart, with 2.5m cantilevers in both directions. They bear the loads of the beams and slabs, which are also supported by a central line of three pillars, spaced 7.5m apart. The concrete walls, however, do not touch the ground: elevated by 1.50m, they limit the neighbors' view but allow the vigorous garden planted beside the lateral boundaries – a very delicate project by Oficina 2+ – to be enjoyed at all times from inside the house.
The concrete walls and slabs were meticulously planned, regarding both the placement of plywood panels and the concreting stages, seeking to avoid visible junctions. Carefully executed, raw concrete undresses its stigmas and gains protagonism, as a surface that cuts and frames the landscape, stimulating the gaze. The residence's technical and service facilities are placed in a basement, that opens toward a lowered garden to provide the space with natural lighting and ventilation. On the house’s roof, one finally achieves a privileged view, where the horizon extends over the Jardins neighborhood and beyond the region’s corporate buildings. On this last floor, besides a technical slab on the northern portion, a deck/solarium, and a garden were accommodated, all of which enjoy sunlight throughout the day.
Project gallery
客服
消息
收藏
下载
最近



































