查看完整案例

收藏

下载
Tivoli城堡位于卢布尔雅那Tivoli公园的高地上,通过一条由Jože Plečnik于1934年设计的宽阔林荫大道与城市相连。从市中心步行至Tivoli城堡的这条路径,一直深受当地市民和游客的喜爱。
Tivoli Castle stands on a plateau in Ljubljana’s Tivoli park and is connected to the city by a wide promenade designed by Jože Plečnik in 1934. The walk from the city to Tivolski Castle has always been popular among the city’s citizens and visitors.
▼城堡外观,exterior of the castle ©Ana Skobe
Tivoli城堡最早可追溯至15世纪。经过数百年的翻修和改建,它于19世纪建造了如今的外观。城堡的设计具有经典的对称性和空间的清晰性。建筑的入口位于中央轴线,进入后依次为前厅和楼梯。这种由前厅和楼梯组成的布局在每一层都得以重复。围绕中央轴线分布的是彼此相连的房间,现已被改建为画廊空间。中央轴线穿过楼层上的画廊空间,并在视觉上延伸至Tivoli大道,将城堡与城市相连接。
Tivoli Castle was first mentioned in the 15th century. After many centuries of renovations and alterations, it was given its present appearance in the 19th century. Its design is classically symmetrical and spatially clear. The entrance to the building is in the central axis and is followed by the vestibule and the staircase. The staircase with the vestibule is repeated on each floor. Around the central axis are arranged the interconnecting rooms, today gallery spaces. The central axis crosses the gallery spaces on the floors and visually extends onto the Tivoli promenade, connecting it to the city.
▼室内空间,indoor space ©Ana Skobe
自1986年以来,这座城堡成为国际版画艺术中心的所在地,并一直举办卢布尔雅那版画双年展。尽管城堡的画廊活动已经适应了其新的功能,但它从未经历过彻底翻新。由于部分改动,原有空间设计的清晰性有所丧失,许多历史壁画仍被多层白灰掩盖。
Since 1986, the castle has been home to the International Centre of Graphic Arts, which organises the Ljubljana Graphic Biennial. The castle has adapted to its new content through gallery activities, but has never been completely renovated. With partial interventions the clarity of the basic spatial design has been lost, and many layers of whitewash still cover the historical paintings.
▼天花板上的原始装饰,the original decoration of the ceiling ©Ana Skobe
卢布尔雅那市政府已启动城堡的渐进式修复工作,首先改善了访客接待区。项目包括三个设计干预:一楼设有带商店的信息中心,地下室新增储物柜和卫生间,以及一部电梯。这些改动虽然规模不大,但触及了城堡整体的空间结构。即使在极为有限的范围内,每一次对历史建筑的干预都揭示并挖掘出建筑的故事。现代的设计干预试图通过融入建筑叙事逻辑来体现其意义。项目首先清除了多余的元素,重新开放了空间之间的通道,并发现了掩藏在灰泥下的历史层。修复后的空间结构和壁画在自然光线映衬下显得格外生动,新增加的设计干预都从属于这些历史元素。
The Municipality of Ljubljana has started the gradual renovation of the castle by improving the reception areas for visitors. The project consists of three interventions: an information centre with a shop on the ground floor, lockers and toilets in the basement, and an elevator. The interventions are small, but they touch the whole spatial story of the castle. Even on an extremely limited scale, each intervention in the historic fabric reveals and uncovers the story of the building. Contemporary interventions try to make sense of the narrative by placing themselves in its flow. The project began with the removal of redundant elements, the reopening of passages between spaces and the discovery of old layers under layers of plaster. The restored internal structure of the spaces and the presentation of the paintings are so evocative in the light entering the building from the park that all new interventions are subordinated to them.
▼修复后的拱廊,the colonnade after renovation ©Ana Skobe
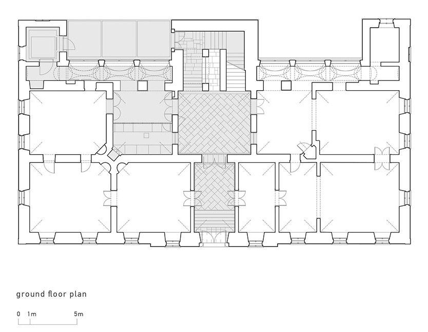
在一楼,两处入口前厅被用作接待访客的区域。经过数十年的掩盖,略微拱形的天花板上原有的历史壁画得到恢复。接待台和小商店从前厅移至一旁的房间,通过一扇历史门和墙上的新窗户与前厅相连。访客中心的设备隐藏在一面翻新的木墙后,这面木墙曾经将厨房与房间其他部分隔开。一条拱廊走廊连接接待中心和新电梯,大型窗户让访客可以欣赏公园的景色。
▼一层平面,ground floor plan ©ARP studio
On the ground floor, the two entrance lobbies are used to receive visitors. The slightly vaulted ceilings have been restored to their historic paintings after many decades. The reception desk with a small shop has been moved out of the lobby into a side room and is connected to the lobby by a historic door and a new window in the wall. The visitor centre equipment is hidden behind a refurbished wooden wall that once divided the kitchen from the rest of the room. An arcaded corridor connects the reception centre to the new lift, and large windows give visitors a view of the park.
▼商店,store ©Ana Skobe
在地下室,新增了访客服务区,包括储物柜和卫生间。在改动前,地下室是关闭的,通过这次干预,空间得以开放。来自不同历史时期的拱券在材料上与墙面统一,形成了一个单一的内部空间。在这个空间中插入了一种完全独立的新结构,与墙壁和拱券相分离。插入结构的外立面采用拉丝金属材质,意外地反射出历史结构。
▼地下室平面,basement floor plan ©ARP studio
In the basement there are new service areas, with wardrobe lockers and toilets for visitors. The basement was closed before the intervention, but the intervention has opened up the space. The arches from different periods have been materially unified with the walls to form a single internal volume. A completely independent element with new programmes has been inserted into it, which is detached from both the walls and the vaults. The façade of the inserted volume is made of brushed metal, which unexpectedly reflects the historical structures.
▼地下室新增储物柜,wardrobe lockers in the basement ©Ana Skobe
▼来自不同历史时期的拱券,The arches from different periods ©Ana Skobe
所有新增元素均遵循当代设计逻辑,在空间上和材料上保持独立,同时被置于建筑的统一主空间内。类似的设计逻辑也应用于电梯,其隐藏在建筑西立面的一处扩展中。这个高度技术化的元素占据了南侧扩展的整个体量,却并未改变建筑的空间逻辑或外立面设计。在施工过程中移除的壁画现在陈列在一楼拱廊走廊,毗邻发现它们的房间。电梯的增设使所有房间终于对行动不便人士完全开放。经过修缮的空间现已向访客开放。
All ne interventions follow the logic of contemporary elements, which are spatially and materially independent and are placed in a unified primary volume of the building. A similar logic is applied to the elevator, which is hidden in one of the extensions on the west façade of the building. This highly technical element occupies the entire volume of the southern extension and does not alter the spatial logic of the building or its façade. The paintings removed during construction are now on display in the arcade corridor on the ground floor, in the immediate vicinity of the room where they were discovered. The lift finally allows all the rooms to be accessible to people with reduced mobility. The renovated spaces are already welcoming visitors.
▼出口门,The door at the exists ©Ana Skobe
▼剖面,section ©ARP studio
Architects: ARP studio
Area: 185 m²
Year: 2024
Photographs: Ana Skobe
Lead Architects: Matjaž Bolčina, Ernest Milčinović, Urška Bertok Herman, Jan Žonta
Design Team: ARP Studio
City: Ljubljana
Country: Slovenia
客服
消息
收藏
下载
最近





















