查看完整案例

收藏

下载
10月15日,位于杭州市拱墅区东教路539号的上塘·蔡马大运河幸福家园正式启用,今后将面向周边广大党员群众开放,打造24小时“不打烊”的“幸福家、梦想家、品质家”。
上塘·蔡马大运河幸福家园是拱墅区“现代社区建设标志性成果”5大重点打造项目之一。今年,属地上塘街道以主题教育为契机,围绕“此心安处是吾乡”的“家”文化核心理念,聚焦全龄段居民群众的多元化需求,发挥“连心、共享、前沿”三大枢纽效应,推进融合“致趣、青创、乐邻、追梦、悦享、智慧、便民”七大场景于一体的上塘·蔡马大运河幸福家园实景建设。
今后,由浙大城市学院法学院、杭州青少年活动中心、浙江街舞联盟及大运河青年创新创业发展中心以及相关部门等10余家成员单位组成的“幸福联盟”将携手街道,提供餐饮、运动、文娱活动、课程教学、就业创业培训、法律援助等丰富多彩的集成服务、活动。
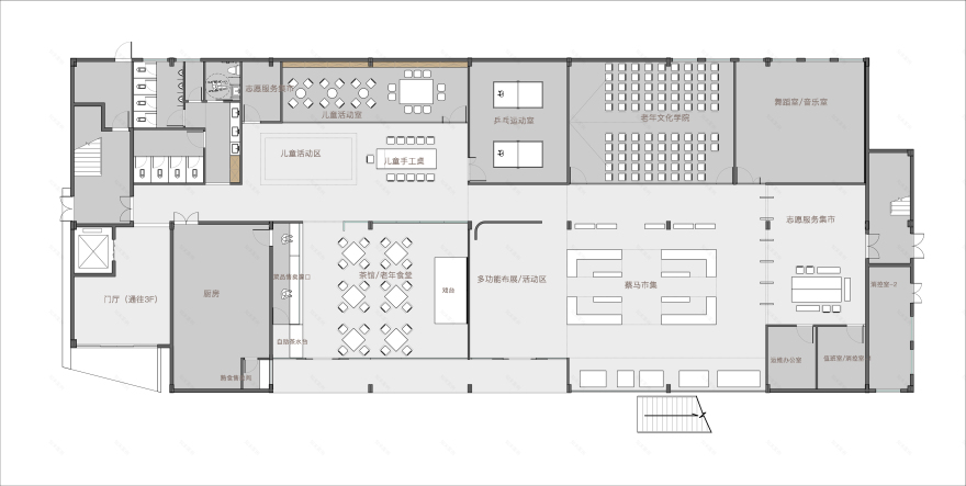
“上塘·蔡马大运河幸福家园”前身为老年公寓,全新打造后,主体建筑共3层,面积约3000平方米,室外空间2600平方米,包括休闲活动广场和嵌入式体育场地,是拱墅区体量较大的大运河幸福家园。周边有浙大城市学院、浙江工程师学院、浙江树人大学等高等院校及运河跨境电商园等商务楼宇,居民出行有地铁3、5号线,交通便利。
作为全新打造的大运河幸福家园,今年以来,上塘街道在集成化配置服务功能、全方位盘活服务力量、无缝式衔接服务要素等方面下足了功夫,这里党建、文化、一站式办事服务、志愿服务等各项体验一应俱全,并引入解忧主题小屋、亲子活动、公益理发等服务功能,进一步嵌入“一老一小”场景,增加服务市集、社区食堂(百姓茶馆)、美刻生活学院、学生自习、协商议事、悦动等空间。全面启用后,将最大限度发挥服务倍增效应,惠及周边万余户居民、青年学生及百家企业单位,让不同年龄段的人群都能在这个大运河畔“不打烊”的家园里找到属于自己的惬意一角。
区位图
建筑改造构思
平面布置图
一层平面布置图
二层平面布置图
三层平面布置图
重要区域效果图
1F蔡马市集
1F蔡马市集
1F茶室/食堂
1F茶室/食堂
2F水吧区域
2F水吧区域
2F路演区
2F办公区
2F舞蹈室
3F服务区
3F服务区
项目实景
客服
消息
收藏
下载
最近



























































