查看完整案例

收藏

下载
01一份特别的任务书
A Special Design Brief
X 美术馆由两位 90 后创立,以年轻视角聚焦新生代艺术家及多元文化。新馆选址在北京新晋「网红园区」朗园 Station 里的一座老仓库,任务书要求,新馆空间既要满足正常展览需求,也要具备举办各类活动的灵活性和便于视觉传播的「场景感」。除展厅外,馆内还要设置可独立对外经营的艺术商店、咖啡店及餐厅。创始人对新馆建筑的定位是「一处很酷的、能容纳各种可能性的综合生活方式场地(lifestyle space)」。
X Museum was founded by two young collectors born in the 1990s, focusing specifically on new generation of artists and multiculturalism from a young perspective. The site for its new museum is an old warehouse located in Langyuan Station, an “Internet celebrity campus” filled with creative professionals, boutique stores and trendy restaurants. The design brief requires the new museum space should not only fulfill art exhibition needs, but also have the flexibility to hold various events and create “Instagrammable” spatial scenarios for social media publicity. Besides exhibition galleries, the brief also listed three commercial programs as major public spaces within the musuem that can be independently operated regardless of the museum opening hours: a gift shop, a café and a restaurant. The founders’ expectation for the new museum is “a cool, comprehensive lifestyle place to embrace diverse possibilities.
▼美术馆外观保留历次改造痕迹,The facade of X Museum keeps traces of previous renovations © 刘松恺
馆方在任务书中体现的强烈介入当下、探索未来的意愿颇为特别。过去三十年来,随着人们获取信息渠道的多元化,美术馆行业早已将自身定位从「对观众单向输出」变为「与观众双向互动」,美术馆建筑也从严肃自矜向生动开放转变。X 美术馆新馆的选址和定位显然希望在此基础上更进一步,把艺术机构推入更为日常的大众休闲文化生活和网络传播行为之中。这种对「时兴」的无保留拥抱,让项目在设计伊始便带上一抹波普式的批判气质。
X Museums’ strong willingness to embrace contemporary lifestyle and explore the future is quite special. In the past 30 years, with the diversification of the way people access to new information, museums have already changed their relationship with the visitors from “one-way education” to “two-way interaction”. The architecture of art museums has also changed from serious, self-contained “white box” stereotype to more inclusive and open spaces providing visitors with unique spatial experiences. Clearly, X Museum’s careful selection of its location and vision is trying to interweave art institutions further into the daily life of the mass public and social media popularity. This unreserved embrace of “Trend” renders the project with a Pop-style critical touch since the beginning of the design process.
▼外立面设计令美术馆融入园区的潮流氛围,The “Frames” and their contents integrate the museum into the trendy context© 杨天周
02 一栋历经改造的老仓库 A Renovated Old Warehouse 馆址所在的红砖建筑原为北京纺织仓库的十号库房,始建于 1960 年代,用于储藏棉花等计划经济时代的战略物资。此后几经修葺,至 2018 年时遭遇大改,原建筑几近拆光,仅留下红砖外墙。该次改造中,外立面窗洞均被封堵,库内新建起拥有巨大桁架采光屋面的钢结构「房中房」,并利用新老墙体间的夹层作为设备管线空腔。「房中房」内又新建一座混凝土架空平台作为功能空间,通过两道连桥与一条新建户外疏散坡道连接。
The red brick building where the museum is located was originally the No. 10 warehouse of the Beijing Textile Warehouse. It was built in the 1960s and was used to store cotton and other strategic supplies during the planned economy era. Small changes and renovations took place along the time until 2018, when the site underwent major changes. The original building was almost demolished, leaving only the red brick exterior facade with window openings filled by new bricks. Within this remained facade, a huge steel structure with a truss skylight roof was erected. The cavity between the old and new walls was used for mechanical conduits and pipelines. A new concrete platform was built in the middle of the new steel structure as functional space, connecting to a new outdoor egress ramp by two bridges.
▼北京纺织仓库旧照,Old photo of Beijing Textile Warehouse © 朗园 STATION
▼2018 年改造后的基地,Site after renovation in 2018© 不也设计工作室
我们介入项目时,面对的便是上述被大刀阔斧改造、混杂着不同时代痕迹的基地,而整个园区里还有大量更为激进的更新案例。一方面,所剩无几的原始建筑减轻了我们面对工业遗存时的历史保护压力;另一方面,从成本、可持续性和诚实性角度出发,我们又希望能尽量保留过往历次改造的成果。
When we got involved in the project, we were faced with the above-mentioned site that had been drastically renovated and mixed with traces from different times, and there are many even more radical renewal cases in Langyuan Station. On the one hand, the minimal remains of the original building reduced our pressure on historical preservation when dealing with such an industrial relic renovation project; on the other hand, however, we didn’t want to blindly ignore what had already been done to the site. From the perspective of budget, sustainability, and honest respect to history, we hope to keep the results of previous renovations along the way as much as possible.
▼室内概览,interior overview© 刘松恺
03 造谷 Valley Making 我们的设计从剖面开始。前次改造导致基地立面无窗、仅以极具纪念性的桁架天窗采光,再结合仓库的线性体量和端部出入口,我们很自然地联想到「山谷」意向。因占满室内的混凝土平台不符合展厅层高要求,还阻挡了一层的自然采光及访客感知仓库尺度,我们决定将其拆除,并保留其余过往改造成果,然后贴室内两侧长边墙面设置新的展厅等功能体块,将仓库中央留成一条通高的线性空间——「谷」。「谷」既是主要动线路径,也可用作展览空间。这样既能让一、二层同时利用天光,直观呈现出 13 米净高的冲击力,也方便各展厅独立管理,还可继续利用前次改造遗留的管线空腔解决新体块内的机电需求。
The design started from section. The prior renovation resulted in the monumental new truss skylight roof to be the only natural light source, plus the linear massing and short-end main entrance location of the warehouse, we naturally associated the site with the idea of a “valley”. Since the concrete platform that occupied the entire interior did not meet the ceiling height requirements of exhibition galleries and blocked the skylight to the first floor as well as visitors’ perception of the actual scale of the site, we decided to dismantle it and keep the rest of the past renovation remnants. The programed volumes required by the museum’s design brief were arranged along the two long side walls, leaving a narrow skylit space-the “Valley”-in the middle as both a main circulation path and an exhibition space. These sectional spatial arrangements allow both the two floors to have access to the skylight, and take advantage of the powerful visual impact of the 13-meter-high floor to ceiling height. Meanwhile, the mechanical cavity from the last renovation can be kept for use by the new programmed volumes, and the “Valley” creates possibility for each exhibition gallery to be managed independently.
▼设计策略剖面示意,Sectional-Design-Strategy© 不也设计工作室
设计之初,我们本想参考仓库堆垛,将新体块设计为一群堆叠的独立盒子,然而随着任务书在设计过程中调整,盒子面积逐步增加,相互挤压、融合,最终不得不完全连成一体。我们觉得这个过程颇有地质变迁的意味,恰与「谷」的概念呼应,于是在维持剖面策略不变的前提下,「放任」盒子的形式独立性退化,最后仅由残存在平面上的几处暧昧斜墙与凹凸变化暗示。
▼AI(DALL·E)生成的仓库堆垛早期意向图,Early cargo stacking concept image created by AI (DALL·E)© 不也设计工作室
▼平面深化过程,逐渐融合的独立体块,Plan develop process showing the merging process of the independent volumes© 不也设计工作室
The programmed volumes were originally designed as independent boxes stacked together, referring to the warehouse cargo stacking. However, as the design brief was adjusted during the design process, the area needed for each program gradually increased, resulting in the boxes squeezing and merging with each other, and ultimately had to be completely connected into one. We find this merging process is quite similar to geological changes that echoes the “Valley” concept.
▼前厅「广池」令访客一览天光下的「山石」,The Lobby named “The Pool” provides visitors an overall view of the “Rocks” under the sky light© 刘松恺
▼「谷口」第一个展厅体量「仰山」以丰富的洞口与外界连通,The gallery volume named “The Mount Up” connects to the “Valley” with various openings© 杨天周
▼「谷口」位置集中布置了咖啡厅、礼品店及前言墙,作为进「谷」前的过渡空间,The “Valley Entry” with the Intro wall, cafe and gift shop is a buffer space before entering the “Valley”© 杨天周
这样,「谷」两侧的体量就成为由诸多原本各自独立的片段连缀而成的有机而复杂的「山石」,它们平等、同构,既有差异又混同一体。建成后的室内空间没有一个易于捕捉的整体形象或代表性角度,却又因所有片段在材料与形式上的同质性,仍能呈现出某一种浑然的空间体验。
Therefore, while maintaining the sectional strategy unchanged, we “allowed” the formal independency of the boxes to degrade to only hinted by a few subtly tilted walls. Thus, the programed volumes on both sides of the “Valley” became continuous intriguing “mountain rocks” composed of many originally independent fragments. There is no spatial hierarchy among these isomorphic forms, they are different yet mixed into one. It’s not easy for visitors to capture an overall image or representative angle of the museum space, but the homogeneity of materials and forms of the linked fragments can still present a certain vaguely unified spatial experience.
▼天光下照,「谷」两侧体量如同峭壁,The soaring volumes on both sides of the “Valley” are like cliffs under skylight© 杨天周
▼连缀的同构体量既有差异又混同一体。空间难以捕捉整体形象,却能呈现出浑然气质,The linked fragments are different yet mixed into one© 刘松恺
▼「落九天」体量垂直叠加展厅与办公区,成为「山系主峰」,The “Peak” volume stacks staff office on top of a gallery hall, is the visual focus of the museum “mountains”© 刘松恺
▼「谷尾」小空地既可用于展览,也是上楼前的过渡空间,The small open space at the “Valley End” is both an exhibition spcae and a buffer zone before going upstairs© 杨天周
▼自连桥望向谷底、二层展厅及展示平台,View of the “Valley”, the Exhibition Terraces and a 2F Gallery from a bridge© 刘松恺
「谷」与「山石」的对仗把室内又分出了「外」、「内」两层,自然隐喻也贯穿在游走体验中:开阔的通高前厅用于展出大型装置及举办活动,成为访客进「谷」前需穿越的「湖面」;三号展厅上方叠加办公区,是体量最高的「主峰」,也是动线枢纽;六扇镀锌钢板移门悬于大型仓库专用轨道,最高达到 8 米,如同垂挂的「瀑布」。
The binary division of the “Valley” and the “Mountain Rocks” creates a new spatial layering of “outside” and “inside” within the interior, and metaphorically juxtapose the experience that visitors will have in X Museum to one would experiencing in a real valley in the nature – not unlike the metaphorical narrative adopted by traditional Chinese gardens and paintings: the lobby, a double-height open atrium for events and large installations, is the “lake” that one have to cross to enter the “Valley”; the staff office on top of Gallery No.3, as the highest volume in the whole museum, is the “peak” of the “mountains”; six galvanized steel sliding doors – the highest being 8 meters tall – hanging on special warehouse gate tracks, are “waterfalls”.
▼「仰山」体量内部丰富的高度变化、采光方式及空间形式为策展提供灵活性,The diverse heights, lighting conditions and spatial forms inside the “Mount Up” provides curation flexibility© 刘松恺
▼挑高 8 米的「醍醐」展厅被漫射天光照亮,View of the 8-meter tall, sky-lit “Enlighten Gallery”© 刘松恺
▼「醍醐」展厅内的挑高空间用于展出大型装置,The “Enlighten Gallery” exhibited large installation© 杨天周
▼镀锌钢板移门悬挂于仓库专用轨道,一人即可轻易推动,实现场地灵活分合,The galvanized steel sliding doors hanging on special warehouse gate tracks can be moved by one person easily© 刘松恺
▼8.5 米高的镀锌板移门如同瀑布悬挂于洞口,The 8.5m tall galvanized sliding door hangs like a waterfall infront of a gallery opening© 杨天周
▼透过电梯所在「山洞」望向「谷尾」的阶梯,View of the stair at the “Valley End” through the “Cave” where the elevator is located© 刘松恺
▼「谷尾」空地中通向二层的阶梯,View of the stair in the open space of the “Valley End”© 杨天周
▼餐厅二层与美术馆「栈道」间以折叠玻璃门连接,内部设有天光展墙,方便活动接待或作为特别展厅使用,The 2nd floor of the restaurant with sky-lit exhibition wall is connected to the museum by glass folding doors© 刘松恺
进「谷」后,访客通过一系列洞口、阶梯、连桥,在「谷」与「山」间往复穿梭,虽在室内,宛如游于户外——或两壁夹身、折复通幽,或临崖俯瞰、企台远眺,时而委身窟穴、时而信步栈道。
▼X 美术馆内部空间示意,Spatial Diagram of the X Museum interior© 不也设计工作室
After entering the “Valley”, visitors will shuttle back and forth between the “valley” and the “mountain” via a series of apertures, stairs and bridges. Although meandering in an interior space, the spatial experience is like that of an outdoor environment.
▼通向「问天」展厅的连桥横跨「山谷」,View of the bridge connecting to the “Sky Frame Gallery”© 杨天周
▼「问天」展厅天花洞口无厚度的边缘处理拉近了屋面桁架与观者的视觉距离,The razor-thin edge of the ceiling aperture shortens the visual distance between the visitors and the roof truss© 刘松恺
▼「压顶」展厅的下凸天花将访客视线导向两侧天光展墙,The ”Overhead Gallery“’s convex ceiling guides visitors’ eye to the sky-lit exhibition walls © X 美术馆
▼「醍醐」展厅的天花引入北侧漫射光,墙面小窗则可按需引入戏剧性的西侧直射光,The ”Enlighten Gallery“’s ceiling introduces diffused light while its wall aperture brings in dramatic direct light© 杨天周
▼二层的展示平台、展厅、连桥与矮墙共同构成丰富的空间层次,Terraces,galleries, bridges and low walls on 2nd floor create rich spatial layers.© 杨天周
▼右侧体量为前次改造遗留的连接户外坡道的楼梯,新建展示平台矮墙特意为其留出缺口,供街道行人望入馆内,The white volume is a staircase preserved from last renovation linking to outdoor ramp.© 刘松恺
▼「前山」体量二层的展示平台,View of the exhibition terrace in the “Mount Front” volume© 杨天周
▼错综嶙峋的体量与不见首尾的通路引人探索,The jagged volumes and endless paths attract visitors to explore© 刘松恺
▼傍晚时分「谷」中灯晕洗亮墙面,The wall-washing lights in the “Valley” dim up when the dusk falls.© 刘松恺
04悬框
Hanging Frames
▼外立面形式参考:个体群像,Facade references:the collective individuals© 不也设计工作室
于是,我们在外立面设置了 13 个大「画框」与 3 个「展龛」,供馆方展示各类布告、平面艺术及装置作品,也将街道变成美术馆与行人互动的户外展陈空间。成本优化后得以实施的 8 个「画框」集中在街角,其中位于首层的 1 个作为大型展品及车辆出入口移门,其余 7 个则为 LED 屏、内倾镜面凹龛以及金属拉伸网。3 个「展龛」中,较小的两个一凹一凸穿透红砖立面,较大的一个则架在建筑阳角处的红砖墙上方,由两面映射天空的镜面与一面 LED 屏组成,内凹顶角中悬浮着一个巨大的金色「X」雕塑以及它的三个镜像。这个略带超现实主义色彩的装置,既是美术馆标识,也是我们对园区诸多卡通化立面雕塑的戏仿(parody)回应。
▼朗园 Station 内部分卡通化的外立面装饰雕塑,Some of the many cartoonish decorative facade sculptures in the Langyuan Station campus© 不也设计工作室
Therefore, we set up 13 “Frames” and 3 “Exhibition Niches” on the exterior facade to display signs, banners, graphic arts and installations, turning the street into an “outdoor gallery” for the museum to externalize its content and interact with pedestrians. The 8 “Frames” that were eventually implemented after several rounds of value engineering are concentrated on the most populated street corner of the facade. The one “Frame” on the ground floor is used as a sliding gate for vehicles and large art works to enter the building, while the rest 7 “Frames” contain LED screens, slanted mirror niches and expanded metal mesh. As for the “Exhibition Niches”, there are one protruding out and one carved into the facade, while the third and largest one being cantilevered above the southwest corner of the remaining red brick wall, consisting of two mirroring side surfaces and a LED screen ceiling. It holds a huge golden X sign as well as three mirrored reflections of the X in its inside corner. This slightly surrealist installation is both the major sign of the museum and a parody response to the many cartoonish decorative facade sculptures in the Langyuan Station campus.
▼西立面的「画框」、「展龛」及主入口玻璃幕墙,The “Frames”, “Niches” and main entrance glass curtain wall on the western facade.© 刘松恺
▼首层作为大型展品及车辆出入口移门的「画框」亦是前厅取景框,The ”Frame“ as sliding gate for the vehicle and logistic entrance is also a viewing aperture of the Lobby© 刘松恺
▼外立面的「画框」将街道变为户外展陈空间,The facade “Frames” turn the street into an outdoor exhibition space© 杨天周
▼外立面悬框系统在保留历次改造痕迹的基础上满足园方使用及形象要求,The “Frames” retain traces of previous renovations while meeting museum’s functional and public image demands© 杨天周
对于基地唯一的工业遗存红砖墙,我们则通过首层门窗的特别构造做了克制回应:门窗以幕墙做法罩在红砖墙外、玻璃面积大过洞口,从室外看,局部砖墙就如同博物馆中被玻璃罩保护的展品,默默向路人提示着场地的过往历史。
As for the red brick facade-the only original industrial relic remained on site, we responded in a subtle way by attaching a new layer of glass facade outside of the first-floor brick wall as windows and doors. This layer of glass covers the openings as well as part of the brick wall, transforming the original facade into an exhibit protected in glass showcase for the pedestrians walking by, silently reminding them of the site’s past history.
▼原有红砖墙犹如被玻璃罩保护的展品,The original brick wall is protected as an exhibit in glass showcase© 不也设计工作室
05 每个人与一群人的空间
A space for each and all
X 美术馆丰富的空间形态与多样的动线路径,带来旷奥嶙峋、变而不繁的空间体验,既为策布展及艺术家创作提供了灵活度,也满足了馆方举办各类活动的可能性。新馆启用后,我们持续跟踪建筑的使用及网络传播情况,往往讶异于某个空间以令人意想不到的方式被利用或「打卡」。
The rich forms and diverse paths of X Museum offer an ever-changing yet concise spatial experience, which provides flexibility for curators and artists, as well as possibilities for different kinds of events. Since the opening of the new building, we have been tracking the daily use status and social media exposure of the museum, and are often surprised by how creatively the curation team use the galleries and the visitors interact with certain spaces.
▼馆方及艺术家因应空间特点进行策展及创作,The museum and artists curates and create works in dialogue with the space © X 美术馆
▼美术馆空间用于举办各类活动,Various events held in the museum space © X 美术馆
错综的「连缀片段」和动线通路让「自上而下」的设计成为一种松而不散的框架,能允许甚至激发使用者「自下而上」的创造性互动,让每位观众每次来访都可以根据当下心境找到独属的「自在一隅」,又不至割裂对整体空间的连贯感受。这种平衡或许是今天人们同时追求个体独立与社群共识的纠结心态的时代写照。
由此,在我们的理想中,X 美术馆的真实空间形象也无法体现在某张具体照片里或某位具体访客的印象中,而应是由所有访客差异化的个体参观体验叠合出的边界模糊的交集。
▼不同访客差异化的个体印象聚合成美术馆的理想空间形象,The congregation of all visitors’ personal impressions as an ideal spatial image of the museum© 不也设计工作室 Studio NOR
The intricacy of the isomorphic “linked fragments” and the dynamic circulation makes our “top-down” design into a loosely structured framework allowing and even inspiring users’ spontaneous “bottom-up” interaction. This grants each visitor to find their own “favored space” according to the different state of mind each time they visit, while not feeling segregated from the overall space. This balance may also be a reflection of the entangled mentality of people trying to pursue individual independence and collective consensus at the same time in today’s society. Therefore, our ideal spatial image of the X Museum cannot be captured in a specific photo or reflected in a specific visitor’s impression, but should be the overlaid, fuzzy-edged intersection of layers of visitors’ personal experiences superimposed together.
▼无性别厕所也以「个体群像」作为设计出发点,意外成为馆内打卡地,The unisex restroom also reflects the idea of “Collective individuals”© 刘松恺
走下严肃高阁的美术馆用略显欢腾的姿态奋力吸引大众、挤入日常、探索边界,这件事其实再严肃不过。今天的实体美术馆应以什么形象出现在年轻一代大众面前?X 美术馆通过为访客提供一种具有暧昧抽离感与纪念性的生活场景,试图作答。
Stepping down from the serious aloof altar, a museum is trying to attract the public, squeezing into people’s daily life, and exploring the future boundaries in a rather exuberant manner – this could not be more serious. What kind of spatial image should a physical art museum present to the younger generations? The architectural design of X Museum attempts to answer this question by offering an intimate daily life scene with an ambiguous sense of detachment and monumentality.
▼楼梯在庞大的「山石」与「天穹」体量中引入近人尺度的细节,The stair provides human scale between the visitors and the architectural volumes behind© 刘松恺
▼X 美术馆外立面的超现实气质为访客带来具有抽离感与纪念性的生活场景,X Museum’s surrealist look offers an intimate daily life scene with a sense of detachment and monumentality © 杨天周
▼首层平面图,F1 Plan© 不也设计工作室
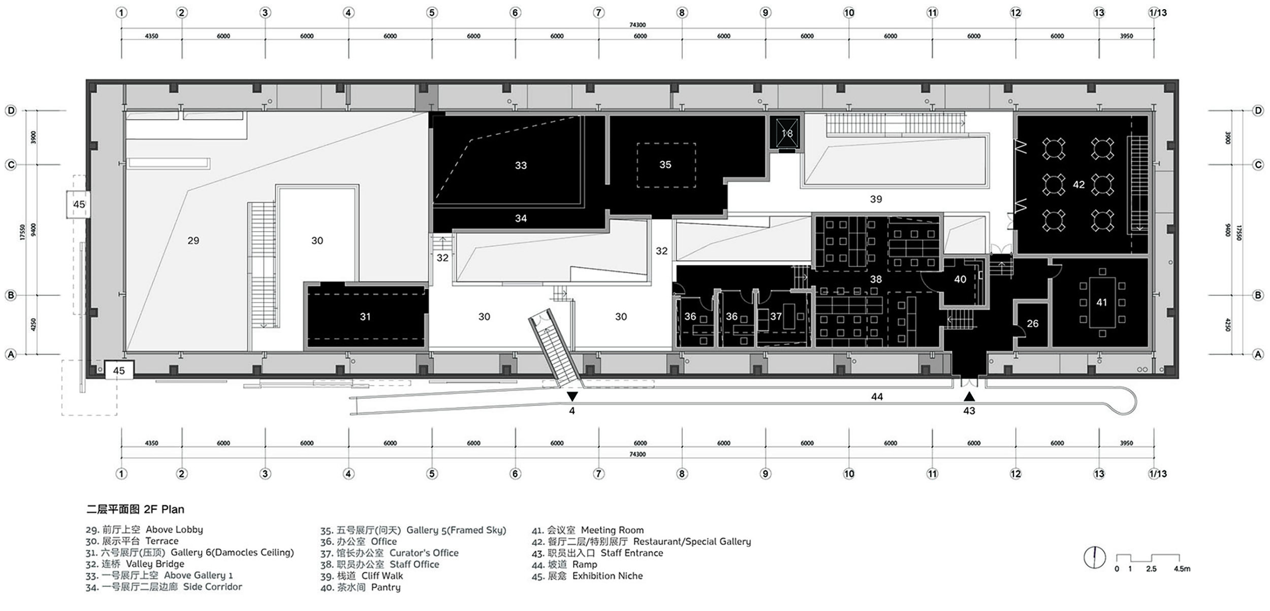
▼二层平面图,F2 Plan© 不也设计工作室
▼剖面图,Section© 不也设计工作室
▼墙身详图,Detail Drawing © 不也设计工作室
项目名称:X 美术馆
设计方:不也设计工作室
项目设计 & 完成年份:2022-2023
主创及设计团队:姜伯源、王静雯、杨硕、何子杰、甘锦、丘容千、闫辰霄、郑亦宁
项目地址:中国 北京
建筑面积:3000 平方米
摄影版权:刘松恺、扬天周
施工单位:上海华懋建筑装饰工程有限公司
照明:不热独立灯光设计
施工图:深圳市和域城建筑设计有限公司建筑、上海呈煜空间设计有限公司
客户:X 美术馆
客服
消息
收藏
下载
最近


























































