查看完整案例

收藏

下载
倘嵌他人之胜,有一线相通,非为间绝,借景偏宜——园冶
“If embedding the beauty of others, there is a thread of connection, not separation; borrowing the scenery is especially fitting.” – The Craft of Gardens (Yuan Ye)
© 姚宇凡
YORU 是在静酩原址上进行升级改造的日法融合餐厅,与隔壁的植庭寿司共享由七月合作社设计的庭院景观,如室通过对景观界面重新梳理,将场所的优势发挥到最大。
YORU is a Japanese-French fusion restaurant upgraded from the previous Jing Ming site. It shares the courtyard landscape designed by July Design Group with the adjacent Zhiting Sushi. Through reorganization of the landscape interface, Ruhaus Studio maximizes the site’s advantages.
▼室内概览,Interior overall view© 吕晓斌
观景 Scenery 我们打开了北向原始的幛子窗,利用原始项目的高差及帘幕对视线和框景进行控制,使顾客从内部往外看时规避停车场汽车的同时却能享受其上的绿植;而当顾客从外往内看时,视线也能够越过刚好被布帘遮蔽的就餐区卡座,看到中心的吧台及明厨的操作。通过层层的视线控制,让并不大的空间有了更多侧层次以及相对开放的气息。
We opened the north-facing shoji windows, utilizing the existing height difference and curtains to control sightlines and framed views. This allows customers inside to avoid the view of the parking lot cars while enjoying the greenery above. Meanwhile, when looking in from outside, the sightlines are designed to bypass the dining booth area subtly concealed by curtains, offering a glimpse of the central bar and open kitchen operations. Through layered sightline control, the relatively small space gains added depth and a sense of openness.
▼庭院,The courtyard © 吕晓斌
包厢区则被设计成伸入庭院的玻璃亭子,被庭院的景观包裹环绕,绿意和阳光得以渗透到餐厅内部。
The private dining area is designed as a glass pavilion extending into the courtyard, enveloped by the courtyard’s landscape. The greenery and sunlight seamlessly penetrate into the restaurant’s interior.
▼庭院入口,Entrance of the courtyard© 吕晓斌
▼庭院看包厢,Looking at the private room from the courtyard© 吕晓斌
通过与景观和阳光相融的空间,我们的身体得以感知大自然节奏分明的呼吸,从而在空间中触摸到日系法餐的精髓—— “四季变换感”,即日本饮食文化中「不时不食」的精神。
Through the space that integrates with the landscape and sunlight, our bodies can sense the distinct rhythm of nature’s breath, thereby touching the essence of Japanese-French cuisine—the “feeling of seasonal change.” This embodies the spirit of “shun,” the Japanese culinary philosophy of “eating in harmony with the seasons.”
▼入口一瞥,Entrance view© 吕晓斌
▼入口木门与卡座,Entrance wooden door and booth area© 吕晓斌
功能 Function 由于是改造项目,我们选择基本保持原始的厨房格局,在鸟山的空置区域内加设了属于 YORU 的粗加工和清洁区,同时将油烟重的操作均在后厨完成以保证前场的视觉呈现。电箱及消防均没有大的移位,从而保证了在 YORU 装修期间,鸟山和植庭的正常营业。将原洗手间的过道进行了适度的收窄,部分空间让给酒窖,以满足新餐厅更多的出餐需求。
As this is a renovation project, we chose to largely maintain the existing kitchen layout. In the vacant area of the “TSUTA” space, we added a rough processing and cleaning area dedicated to YORU. At the same time, all heavy cooking processes involving smoke are carried out in the back kitchen to ensure the visual presentation of the front dining area remains unaffected. The electrical panel and fire safety systems were not significantly relocated, ensuring that during the renovation of YORU, both TSUTA and Zhiting Sushi could continue their normal operations. The corridor of the previous restroom was moderately narrowed, with part of the space allocated to the wine cellar to accommodate the new restaurant’s increased service needs.
▼室内看庭院景观,Indoor courtyard view © 吕晓斌
▼酒窖酒柜,Wine cellar cabinet © 吕晓斌
▼卡座,Booth area© 吕晓斌
▼备餐区,Food preparationarea© 吕晓斌
▼备餐台,Food preparation table © 吕晓斌
链接 Connections 包厢与靠窗的餐区拥有绝佳的景致,位于视觉中心的 U 型板前餐区则享有与双主厨近距离交流的极致体验——下陷的厨房设计,让主厨的视线与客人坐下时的高度相平,双方可以更轻松自如地交流。
The private dining rooms and the window-side dining area offer stunning views, while the U-shaped counter dining area at the visual center provides an unparalleled experience of close interaction with the two chefs. The sunken kitchen design aligns the chefs’ line of sight with the height of the seated guests, allowing for more effortless and natural communication between the two parties.
▼板前区,The counter area© 吕晓斌
▼板前就餐区,The counter dining area© 吕晓斌
▼板前区望向入口,Looking at the entrance from the counter area© 吕晓斌
▼板前区看包厢,View from the counter dining area towards theprivate dining room© 吕晓斌
▼包厢看板前区,View from the private dining room towards the counter dining area© 吕晓斌
▼包厢,The private dining room© 吕晓斌
静谧 Serene 空间做了大量的留白,布帘像一个时间过滤器,让植物与光线得以慢慢弥漫到项目中,从而打造一个可以静静度过时光的非现世(non-temporal)的场地。我们选择使用更温润的材料去铺陈整个空间,以期规避工业制成品带来的疏离感,重新唤醒人们的感官。空间中大部分使用的木材是甲方收藏已超过 10 年的老木头,用老木头木心做的台面成为吧台最有分量的语言,时间的打磨会让它日渐温润,慢慢留存住岁月的痕迹。将日式法餐「回归食材本质」的烹饪哲学贯彻到空间的塑造中。
The space incorporates a lot of negative space, with the curtains acting as a time filter, allowing plants and light to slowly permeate into the space. This creates a non-temporal environment, a place where one can quietly spend time away from the rush of the world.
We chose to use warmer, more tactile materials to layout the entire space, aiming to avoid the sense of alienation brought by industrial products and to reawaken the senses. Most of the wood used in the space is over 10 years old, collected by the client, with countertops made from the heartwood of these aged trees becoming the most significant feature of the bar. The passage of time will gradually smooth and enrich the wood, allowing it to slowly retain the marks of the years.
We have integrated the Japanese-French culinary philosophy of “returning to the essence of ingredients” into the design of the space.
▼包厢细节,The private dining room details© 吕晓斌
▼吧台与庭院,Bar and courtyard© 吕晓斌
▼吧台细节,Bar details© 吕晓斌
▼材料细节,Material details© 吕晓斌
▼服务柜,Service cabinet © 吕晓斌
艺术 Art 石头顶灯由如室设计,体物制作完成。
The stone pendant art lights were designed by Ruhaus Studio and crafted by TIWU WORKS.
▼石头灯,Stonependant art lights© 吕晓斌
▼雕塑,sculpture© 吕晓斌
▼logo,logo © 吕晓斌
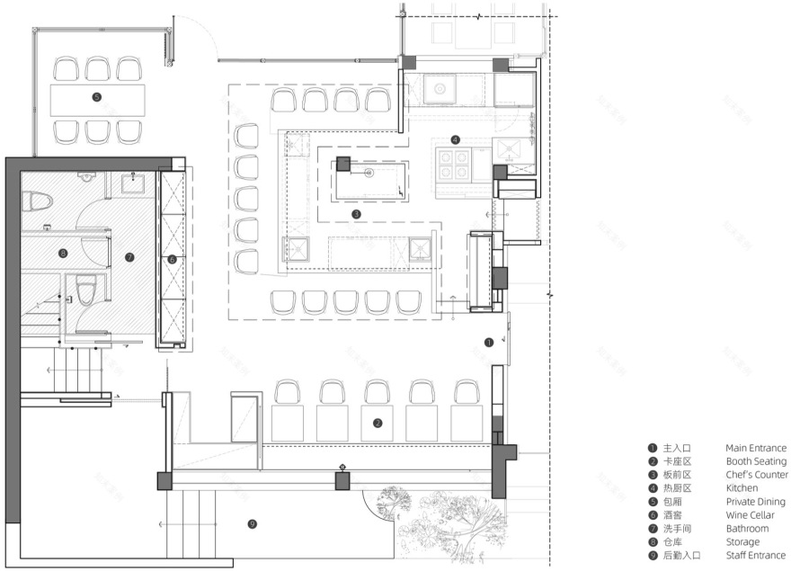
▼平面图,plan© Ruhaus Studio
▼剖透视,sectional perspective ©Ruhaus Studio
项目名称:YORU 静酩日法餐酒馆(华侨城店)
项目类型:餐饮
客户:YORU
项目内容: 室内设计/道具设计
完成年份:2024
项目地址:广东省深圳市南山区深南大道 9001-3 号
建筑面积:95㎡
室内设计团队:王艺儒,朱丹丹,梁晓东,黄骏科,彭小健
景观设计:七月合作社
甲方负责人 Tom Ma,仇工
摄影版权:吕晓斌
Project Name: YORU
Project Type: Restaurant
Client: YORU
Design Year:2024
Project location:,Shennan Avenue No.9001-3,Nanshan District,Shenzhen,Guangdong
Gross Built Area: 95㎡
Lead Architects: Yiru Wang,Dandan Zhu,
Design Team: Xiaodong Liang, Junke Huang, Xiaojian Peng
Landscape Design: July Design Group
Client Representative: Tom Ma, Engineer Qiu
Photo Credit: Xiaobin Lv
Video Credit: Yufan Yao
客服
消息
收藏
下载
最近



































