查看完整案例

收藏

下载
MIR 办公楼旨在为私人投资者提供一栋空间可以灵活出租的办公大楼。该建筑位于保加利亚首都索非亚市历史中心的高密度区域。该地区建筑风格多样,以 20 世纪初至 20 世纪中期的建筑为主。
The project aims to provide an office building with flexible spaces for rent for a private investor. The building plot is located in a high density area in the historical center of the city of Sofia. The area is heterogeneous with buildings predominantly from the beginning to the middle of the 20th century and a variety of architectural styles.
▼项目概览,Overview © Assen Emilov
碎片化的城市形象由时间镌刻的“锈痕”统一起来,赋予了环境有机而温暖的特征。同时,由于 MIR 办公楼所在地块靠近古罗马城市 Serdika,因此建设前需对该地块进行考古调查,并最终发现了一座古罗马晚期古墓的遗迹。随后,设计团队将其纳入了项目中。
The fragmented image of the city is united by the “patina”, the trace that time leaves and gives the organic and warm character of the environment. Meanwhile, the location, which is near to the ancient Roman city of Serdika, requires an archeological investigation of the plot. In the course of the archaeological research, the remains of a late antique tomb were discovered, which were subsequently integrated into the project.
▼时间镌刻的“锈痕”,The trace that time leaves © Assen Emilov
在该背景下,设计团队的目标是通过新建筑的体量和材质来保护城市的 DNA,同时寻找一种符合项目最初计划的现代设计方法。
In this context, the aim is to contribute with the volumes and materiality of the new building to preserve the DNA of the urban environment, while at the same time looking for a contemporary approach that meets the project program.
▼建筑物体量,Volumes of the building © Assen Emilov
▼延续文脉的材质,Materials that perpetuate the city’s history© Assen Emilov
▼与周边建筑的关系,Relationship to neighbouring buildings © Assen Emilov
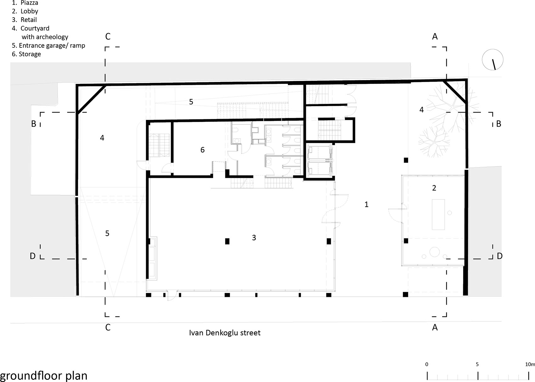
建筑外立面是由裸露的混凝土和大型铝框窗户组成的整体网格。由于设计团队设想建造一栋带地下车库的办公楼,并进行丰富的景观设计,因此 MIR 办公楼按照“外立面与核心”的原则灵活设计,以便于空间出租。站在大楼的最高层规划的玻璃凉亭中,人们可以俯瞰建筑屋顶和屋顶花园。该凉亭由 MIR 办公楼内的各办公室共用,作为会议和休闲场所。MIR 办公楼的地下两层空间被设计为停车场。
The facades of the building are a monolithic grid of exposed concrete and large-scale windows with aluminum frames. The program envisages an office building with an underground garage and the possibility of rich landscaping. The offices are designed flexibly on the “shell and core” principle for renting. On the highest level, a glass pavilion with a view over the surrounding roofs and a landscaped roof garden is planned. The pavilion is intended to be shared by the offices as a place for meetings, conferences and recreation. Two underground levels are dedicated for parking.
▼外立面设计,Facades design © Assen Emilov
▼室内设计,Interior design © Assen Emilov
▼明亮的室内办公空间,Bright office space© Assen Emilov
▼通往屋顶花园的通道,The way to the roof garden © Assen Emilov
▼屋顶花园内的凉亭,Pavilion in the roof garden © Assen Emilov
▼屋顶花园,Roof garden© Assen Emilov
MIR 办公楼所在的地块与周边建筑的三道防火墙相邻,办公楼朝北的临街面长达 38 米。根据该地区的城市规划规则和周边封闭式街区的要求,MIR 办公楼必须与那三道防火墙相连。相比于邻近建筑,MIR 办公楼的临街立面会显得建筑物的尺度过大。为此,设计团队寻求一种既能“打破”长立面,又不损害项目方案的解决办法,并尝试为功能性、建筑美学和城市环境创造更多的价值。最终,建筑面向西侧防火墙的“层叠露台”设计实现了建筑立面的视觉“打破”,并将西侧防火墙作为一个用于垂直景观设计的附加立面。
The plot on which the building is located is bordered by three firewalls of neighboring buildings and the front to the street with a length of 38m has a northern orientation. According to the town planning rules for that area and the requirements for closed perimeter block, the building must be attached to the three firewalls. The long facade front to the street would appear overscaled compared to the neighboring buildings. In this regard, a solution was sought that would “break” the long front without harming the project program, but on the contrary, to create additional value for the functions, architecture and environment. The facade is interrupted by “cascading terraces” towards the western firewall, which in turn becomes an additional facade intended for vertical landscaping.
▼层叠露台,Cascading terraces © Assen Emilov
▼从街道看层叠露台,View of cascading terraces from the street © Assen Emilov
▼垂直景观附加立面,Vertical Landscape Additional Elevation © Assen Emilov
层叠的露台作为一种桥梁将主体建筑与防火墙连接起来,不同的露台的布置相互偏移,这使立面的“打破”被视为建筑向外的开放,同时也让更多的光线从南面照射到街道空间。
The terraces, which connect the main volume with the firewall as a kind of bridges, are arranged offset from each other, which allows the interruption of the facade to be perceived as a kind of “opening”, through which additional light penetrates from the south to the street space.
▼桥梁般的露台空间,Bridge-like terrace © Assen Emilov
通往建筑的主要通道是可以灵活转化公共或私密场景的露天广场。这里是建筑街景的自然延伸,并通向一个内部花园。该花园如同一个悬挂在车库上方的大花盆,里面种植着树木,并露出了一座在考古调查中发现的古罗马晚期坟墓遗址。这个广场也是一个交流空间,可直接连接各楼层的电梯、大堂和底层的零售廊。
The main approach to the building is over a large passage – a public / private piazza, which is a natural extension of the streetscape to the building and leads to an inner green courtyard. The garden is constructed as a large plant pot hanging over the garage with trees and there is exposed a late antique roman tomb discovered during the archeological investigations. The piazza is also a communication space with direct links to the elevators for the floors, the lobby and a retail gallery on the ground floor.
▼建筑主入口,Main entrance of the building © Assen Emilov
▼内部花园,The inner green courtyard © Assen Emilov
▼内部花园旁的共享空间,Shared space near the inner green courtyard© Assen Emilov
▼便捷的室内动线,Convenient interior circulation © Assen Emilov
▼区位图,Location plan © bureau XII
▼总平面图,Site plan © bureau XII
▼底层平面图,Groundfloor plan © bureau XII
▼二层平面图,Level 2 plan © bureau XII
▼屋顶凉亭平面图,Roof pavilion plan © bureau XII
▼剖面 A-A,Section A-A © bureau XII
▼剖面 B-B,SectionB-B © bureau XII
Location: 6. Ivan Denkoglu str., Sofia, Bulgaria
Plot Area: 826 m2
Gross Building Area: 3950 m2
Project Start: 2017
Completed: 2023
Architects: bureau XII
Lead architects: Peter Torniov, Milena Filcheva
Collaborators: Mira Kolarova, Atanas Bonev, Velislava Papazova, Ivan Peev
Structural engineer: Bureau Mihov & Petkov
Photographer: Assen Emilov
客服
消息
收藏
下载
最近
































