查看完整案例

收藏

下载

翻译
Architects:KIENTRUC O
Area:413m²
Year:2006
Photographs:Oki Hiroyuki
Manufacturers:Daikin,Dulux ICI Paint,Philip
Principle Architect:Dam Vu, An Ni Le
Design Team:Viet Nguyen, Tai Lam, Phuong Tran
City:Ho Chi Minh City
Country:Vietnam
"When one is presented in a spatial setting which is fully and equally conditioned by the unraveling intensity acting between the physical and its opposite, their mind becomes stimulated and awakened."
THU House is a modern home capped with an over-spanning timber roof to provide cover for a cluster of living functions below. Besides the primary residential program, it also serves as a meeting place, encouraging artistic residents from diverse disciplines to engage in exchange and interactions. The building's geometric configuration represents one's ongoing dialogues and desires for nature by emphasizing the concept of 'Open,' which symbolizes both a percolation and a continuation of spatial exchange between the living world and its spiritual one.
"A carefully curated and framed setting can change one's worldview, just as an atmosphere can help sublimate an idea"
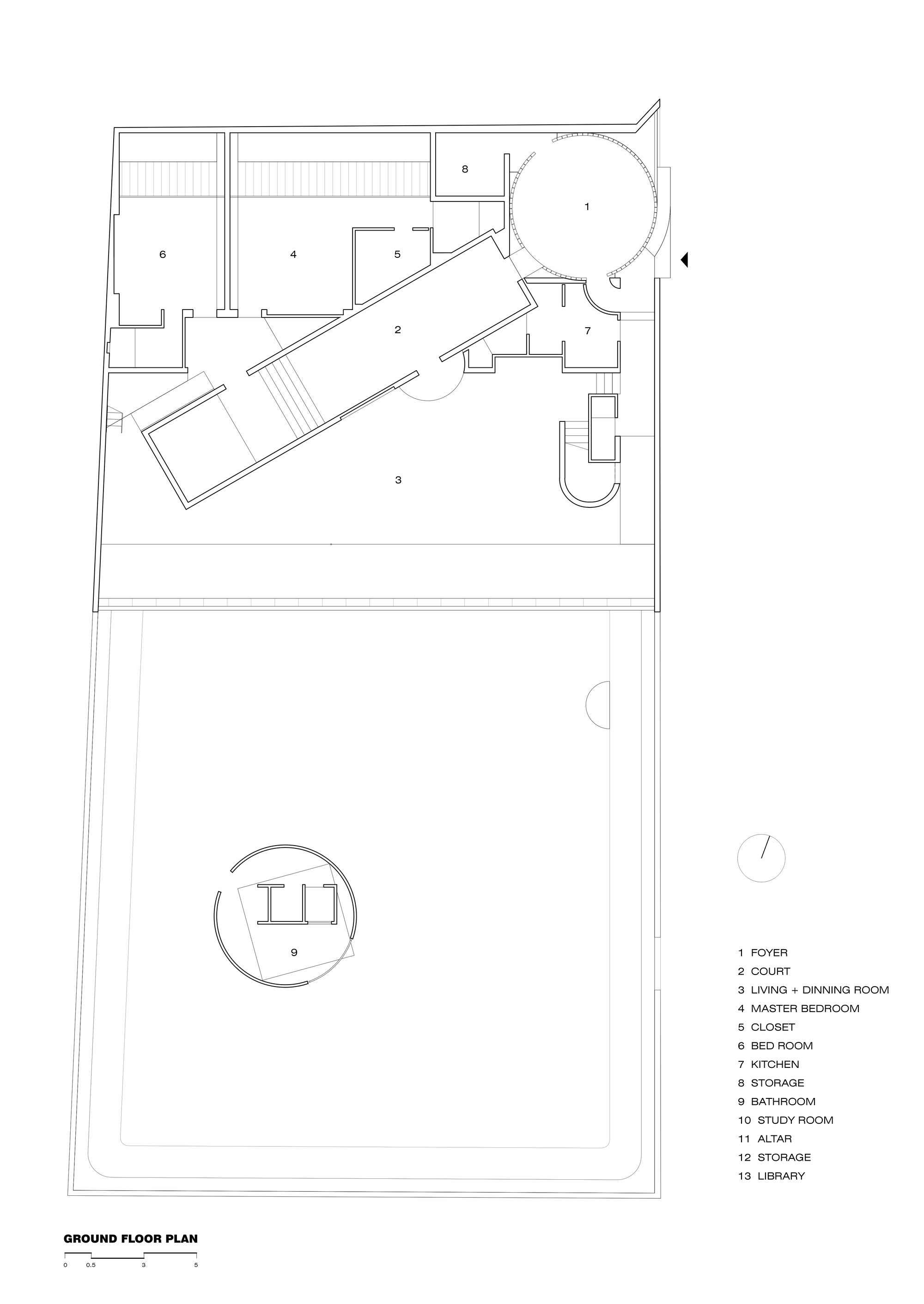
Enhancing the ability to experience and contemplate - The house spatial experience is facilitated by rearranging the core functions to its immediate peripheral spaces, which in turn unconventionally defines the center as a buffering zone, if not, the in-between space that aims to enhance the resident ability to perceive changes in their environment throughout the day. It is the kind of an atmosphere that is relational to Vietnamese living habits, fueled by intimate daily activities that always take place under the tropics sun, and cooling breezes. In the case of visual appreciation, when simple geometry is used to define the contemplative spaces, the strength of its experience is enhanced respectively.
A square courtyard, with its surfaces animated by the dappling light broken up through the tree's canopies, and its space aromatically infused by the scent of tropical fruit trees and herbal bushes, found its presence at the center of the house's living spaces. This atmospheric concoction has instilled the house's spatial quality with the multifaceted nuances of the humid tropics.
Juxtapositionally, on the other side of the living space, a large patch of light is contained within the long rectangular geometry, whose top is finished with the poetic presence of a single beam holding up the large timber roof. Its shadow moves according to the position of the sun furthering the peaceful tranquility of this place.
The architecture of the house utilized construction techniques known to local craftsman, from bricklayers with improved cement plastering techniques, to carpenters and their oversized timber waffle structure, to decorative ironworkers for thin door frame profiles, and lastly roofers for their expertise in thatched roof construction.
The poetic encounter, whether exposed individually or between residents, can take place for a few hours or the course of multiple days in the form of artistic residency. In essence, the scents and the house's atmospheric quality will awaken the visitor's senses and invigorate them to be more aware of the environment that is changing every day.
Project gallery
客服
消息
收藏
下载
最近




































