查看完整案例

收藏

下载

翻译
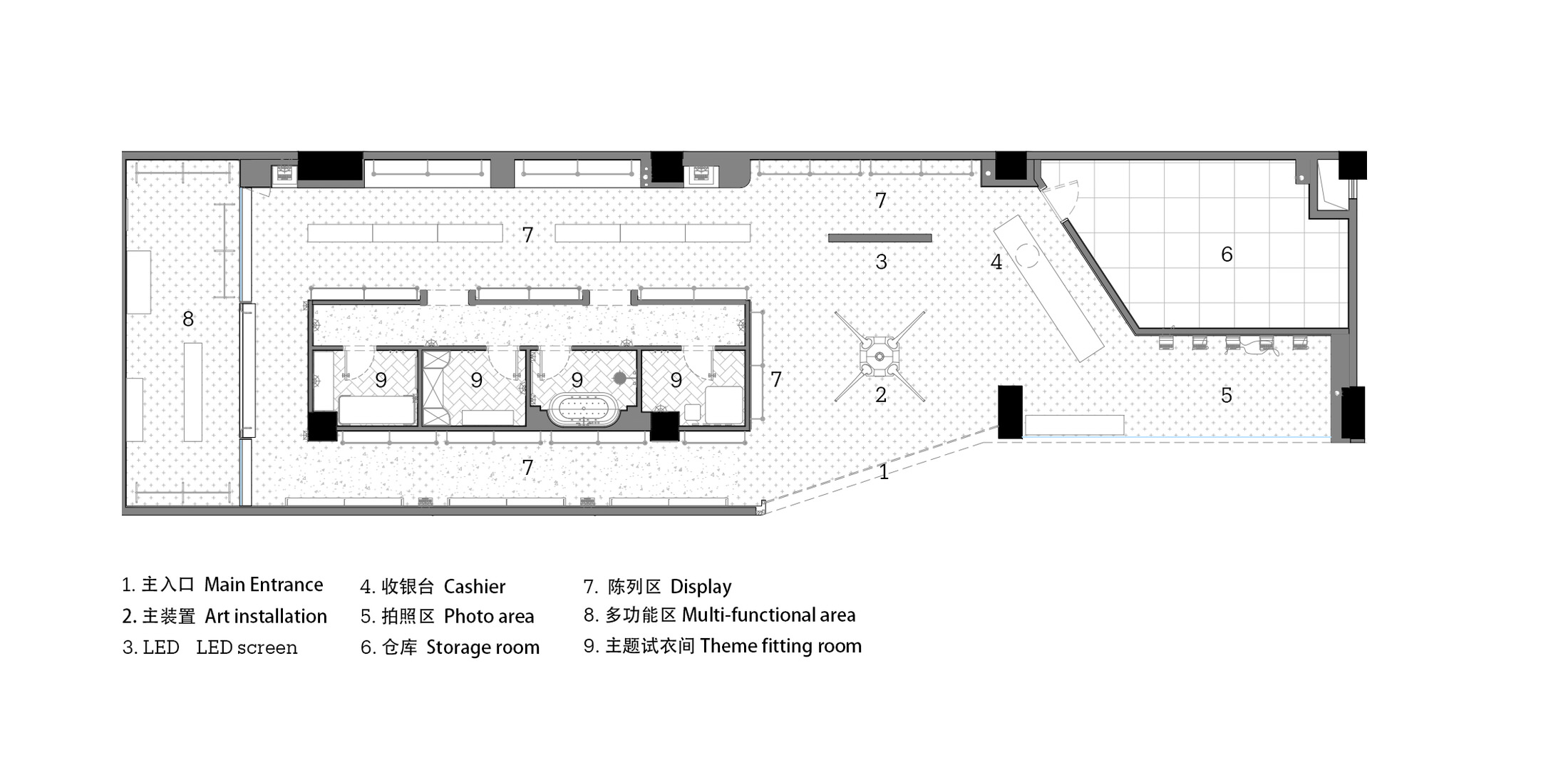
In Chengdu’s vibrant Cosmo, a fresh fashion narrative unfolds inside Run To The Future’s inaugural Chinese store. One Fine Day Studio & Partners has designed a 248-square-meter retail space that’s equal parts nostalgic time capsule and forward-looking fashion laboratory.
The journey begins with British artist Matt Hope’s striking Escape Detector installation—a crystalline, green-lit creation that sets the stage for this temporal adventure. It’s a magnificent sculpture that embodies the brand’s ethos of breaking free from convention, merging retro-industrial aesthetics with contemporary tech in the most surprising ways.
Moving through the space feels like navigating a curated dream sequence. The designers have orchestrated a series of zones that read like chapters in a cyberpunk novel.
The particular genius in how they’ve reimagined fitting rooms as theatrical sets—each one tells its own story, from a vintage bedroom complete with metal furniture to a mysterious bathroom featuring an old-school bathtub and mosaic tiles.
“We wanted to create more than just a retail space,” explains lead architect Junpeng Li. “It’s a platform for self-expression where fashion, art, and personal identity converge.”
The attention to detail is nothing short of extraordinary. Cherry wood details and grass-like carpets guide visitors through the space, while walls adorned with typewriters create unexpected poetry—spitting out glitch-art “Run” symbols that scatter across the floor. It’s these thoughtful touches that elevate the entire experience from mere retail to retail theatre.
Perhaps the most brilliant stroke is the chic office area that runs along the corridor. Houndstooth-fabric archive walls and burl wood shelving create a rhythmic progression that feels both nostalgic and contemporary. The whole setup reads like a meticulously composed film set where every prop has been considered.
Run To The Future debut is an artistic experiment in retail design that perfectly captures the rebellious spirit of a generation eager to break free from convention. By looking back to the experimental energy of the 1980s, this space manages to paint an exciting picture of fashion retail’s future.
[Images courtesy of One Fine Day Studio. Photography by Yuuuunstudio.]
客服
消息
收藏
下载
最近







































