查看完整案例

收藏

下载
在冲绳古宇利岛,Jo Nagasaka / Schemata 事务所设计了一个供游客放松、欣赏美丽海景的度假空间。项目由独立别墅组成,适合家庭或几人小团体入住。每栋别墅均强调隐私设计,避免邻居噪音的干扰。场地分为两部分:一部分是沿道路分布的狭长地块,地形起伏不平;另一部分是梯形地块,具有一定的高低差。建筑师计划在这些狭窄且不规则的场地上建造一系列别墅,但发现重复建造相同形状的建筑并不实际。为了避免逐栋单独设计的低效,建筑师开发了一种更高效的设计方案,利用两个标准化平面组合成倒 V 形单元。
On Kouri Island, Okinawa, we designed a place for visitors to relax and enjoy a beautiful sea view. It consists of freestanding villas for families and groups of several people, all designed to allow guests to stay in privacy without worrying about the noise of adjoining guests. The premises are divided into two areas: one is a long, narrow site along the road, with an undulating topography; the other is a trapezoidal site, with a difference in elevation. The plan was to build a series of villas on these narrow and distorted sites, but repeating buildings of the same shape there seemed difficult. Considering the inefficiency of making different plans for the individual buildings, we developed a more efficient design method using an inverted V-shaped unit combining two standardized plans.
▼项目鸟瞰,Ariel view of the project©Schemata Architects
▼建筑鸟瞰,Ariel view of the building©Schemata Architects
倒 V 形单元的开口根据海景方向和场地形状灵活调整,每个单元的布局都经过精心设计。利用场地的不规则性,设计将这些单元以不同方式排列,并配以独特形状的屋顶,创造出一组外观独特的别墅。在倒 V 形的开口区域,设置了一个视野最佳的半户外空间,用作餐厅,配有餐桌和小型泳池。每个单元的两侧分别设置为带厨房的卧室和面向大海的浴室卧室。通过无缝连接厨房、餐桌、浴室和泳池,实现了简洁而功能性强的平面布局。
▼场地平面,site plan©Jo Nagasaka /Schemata Architects
The openings of the V-shape are adjusted and each unit is positioned according to the direction of the sea view and the site shape. Taking advantage of the distortion of the site, we created a group of villas with distinct appearances by arranging these units differently and covering them with uniquely shaped roofs. We also provided a semi-outdoor space with the best view in the opening of the V that serves as a dining area with a dining table and a small swimming pool. The two parts of each unit respectively function as a bedroom with the kitchen and the bedroom with the bathroom facing the sea. The simple and functional plan was achieved by seamlessly connecting the kitchen, dining table, bathroom, and swimming pool.
▼建筑街景,street view of the building©Ju Yeon Lee
▼建筑外观,exterior of the building©Ju Yeon Lee
在这里,客人可以在晨光中于餐桌享用早餐;当气温升高时,可以跳入泳池降温;天气稍凉时,则可以在餐桌旁悠闲地阅读或饮酒。傍晚,客人可以欣赏海面上美丽的夕阳倒影;感到寒意时,可以泡个热水澡放松。客人还可以在厨房烹饪美食,在餐厅享用晚餐。当夜深困意袭来时,他们可以移步至后方的卧室安然入睡。倒 V 形的设计让客人在室内与户外之间自由切换,享受无缝衔接的惬意时光。
Here, guests can have breakfast at the dining table under the morning sun, and when it gets too hot, take a dip in the pool to cool down. When it cools down again, they can enjoy leisurely time, reading a book or having a drink at the dining table. In the evening, they can enjoy the beautiful sunset reflected on the sea and then take a bath when it gets chilly. They can cook in the kitchen and enjoy dinner in the dining room. When they start to feel sleepy, they can go to the bedroom at the back for a good night’s rest. The inverted V-shaped spaces allow guests to spend a seamless and leisurely time as they move between indoors and outdoors.
▼客厅区域,living room ©Ju Yeon Lee
▼卧室区域,bedroom ©Ju Yeon Lee
▼卧室局部,bedroom ©Ju Yeon Lee
▼浴室区域,bathroom©Ju Yeon Lee
▼露台,terrace©Ju Yeon Lee
▼露台泳池,pool in the terrace©Ju Yeon Lee
▼阳台,balcony ©Ju Yeon Lee
建筑师将这些建筑视为一种新型的冲绳别墅,充分展现半户外生活的乐趣。为了让客人更好地体验冲绳文化,建筑师与当地建筑公司 Shinyo 合作完成建筑,并尽可能使用冲绳本地制造的家具。此外,还与多位冲绳艺术家展开合作。尤其是在 Luft(Nami Makishi 和 Chinako Okeda)的引荐下,与当地团队(包括 Yuria 木工坊、Hachiman 瓦厂和 Ryuko 建设)合作,他们使用冲绳木材、琉球砖和石灰石等本地材料,全程参与从设计到生产的每个环节。冲绳植被来自 Harvest High!的专家 Hiroki Iwamura 则帮助将场地与周围自然环境和谐融合。
We regarded these buildings as a new Okinawan villa capitalizing on enjoying semi-outdoor living. Aiming to create a place where guests could experience Okinawan culture, we worked with an Okinawan construction company, Shinyo, for the buildings and used as much Okinawan-made furniture as possible. We also collaborated with many Okinawan artists. In particular, Luft (Nami Makishi and Chinako Okeda) introduced us to local teams (including Yuria Wood Workshop, Hachiman Tile Factory, and Ryuko Construction) that process local materials such as Okinawan wood, Ryukyu bricks and limestone and worked with us throughout all stages from design to production. Hiroki Iwamura of Harvest High!, an expert on the vegetation of Okinawa, also helped to harmonise the site with the surrounding natural environment.
▼细部,detail©Ju Yeon Lee
在 Luft 的引荐下,冲绳艺术家 Rie Tanji 创作了一幅二维艺术作品,其图案灵感来源于墙纸的纹理。Luft 还精选了一些关于冲绳的书籍进行展示。在美食方面,冲绳知名厨师来自 Denkyo 的 Takashi Ueta 从菜单到菜品呈现提供全面指导,为项目注入了全新的冲绳风味。
Rie Tanji, an artist living in Okinawa who was introduced to us by Luft, created a two-dimensional artwork comprising a pattern inspired by uneven texture of wallpaper. Luft also selected and displayed books about Okinawa. For the food, Takashi Ueta of Denkyo, a leading chef of Okinawa, supervised everything from the menu to the presentation of dishes, adding a new Okinawan flavor to the project.
▼装饰细部,decoration detail©Ju Yeon Lee
Jo Nagasaka 对冲绳的印象是深绿色与湛蓝色的海洋、自然风化的木材,以及点缀其中的朱红色物件。中央的餐桌是一张带木纹的圆形红桌,可根据需要自由移动。为了搭配便携式餐桌,我们选择了便携式照明。在总照明设计师 Kaoru Mende 领导的 LPA 的指导下,建筑师与 Toki Corporation 合作开发了一款带稍高反射罩的庭院灯。此外,总平面设计与标识设计由 NDC 的 Yoshiaki Irobe 负责完成。
My impression of Okinawa is of deep green and blue sea, naturally weathered wood, and the presence of vermillion-colored objects here and there. The dining table in the center is a round red table featuring wood grain, which can be moved around as needed. We decided to use portable lighting in the dining area to accompany the portable table. Under the supervision of LPA (led by Kaoru Mende), who undertook the overall lighting design, we collaborated with Toki Corporation to develop the Yard Lamp with a slightly higher reflector. Yoshiaki Irobe of NDC undertook the overall graphic design, including the signage design.
▼夜景,night view©Ju Yeon Lee
▼场地区位,site location©Jo Nagasaka /Schemata Architects
▼轴测图,axonometric©Jo Nagasaka /Schemata Architects
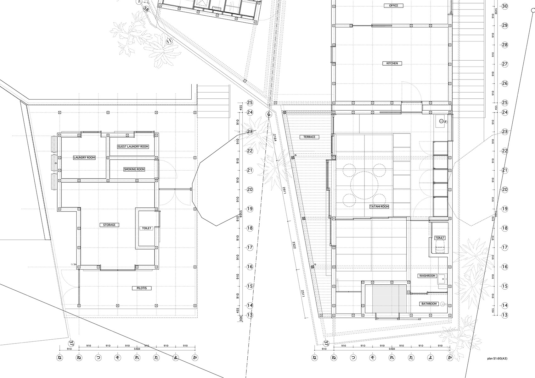
▼平面图,plan©Jo Nagasaka /Schemata Architects
▼剖面图,section©Jo Nagasaka /Schemata Architects
Title:YAWN YARD Kouri Island
Architects: Jo Nagasaka / Schemata Architects
Project team: Shu Hattori, Keisuke Masuda, Ou Ueno, Sho Komiyama
Location:Kouri Nishihara,Nakijin-son,Kunigami-gun,Okinawa
Usage:Hotel
Construction:Shinyo
Collaboration:
NCN(Structural Design)
Akana Equipment Design(Equipment Design)
Nami Makishi,Chikako Okeda/Luft(Furniture Design Collaboration)
Kaoru Mende/LPA(Lighting Design)
Yoshiaki Irobe/NDC(Art Direction,signage planning)
Hiroki Iwamura/harvest high!(Landscape)
Rie Tanji(Sculptor)
Takashi Ueta/Denkyo(Food Design)
Junya Akeyama/GOODTIME(Project Direction)
Yuria Wood Workshop(Furniture Manufacturing)
Hachiman Tile Factory(Red Tile)
Ryuko Construction(Ryukyu Limestone)
TOKI Corporation(Portable Lamp)
Number of stories:1 Floor
Total floor area: 921.85㎡
Type of structure: Wooden(SE construction method)
Completion: 8/2024
Opening: 9/2024
Photo: Ju Yeon Lee /Schemata Architects
客服
消息
收藏
下载
最近





















































