查看完整案例

收藏

下载
项目坐落于苏州市吴中区苏州湾大剧院沿湖步道侧,此区域乃环太湖骑行爱好者的必经之路,业主作为骑行爱好者,怀揣已久的骑行驿站梦想在此落地生根。该驿站不仅是骑行途中的休憩港湾,更兼具公路车维护与爱好者聚会组织的多元功能,深度融入并服务于骑行文化圈。
▼沿街立面
▼沿街立面夜景
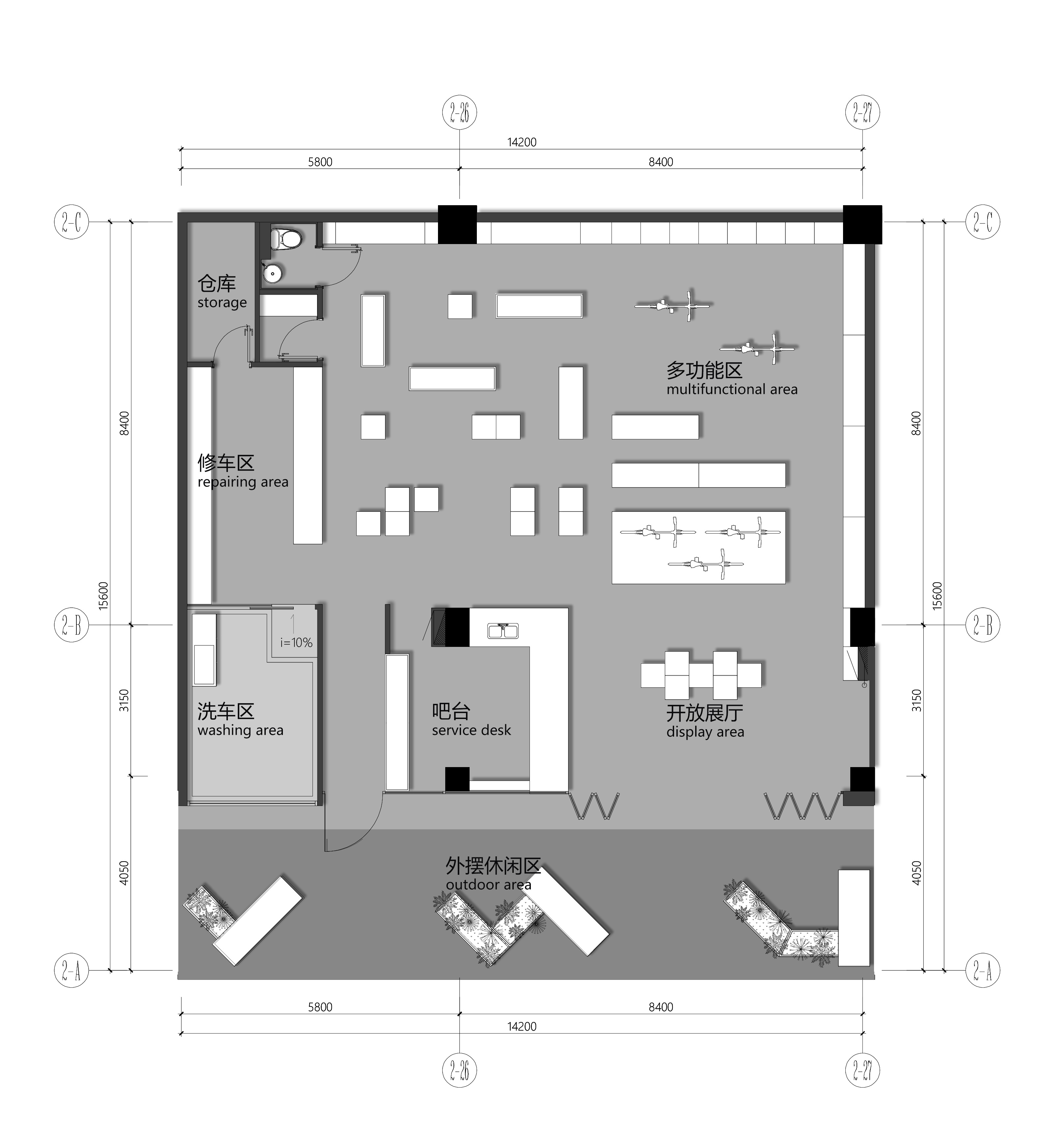
空间共分两大主要区域,一侧主要为自行车维护空间,另一侧则是顾客休息空间,兼具咖啡吧台。泾渭分明的空间特质以按照时序排列的方式满足目标客户的需求:人与车都应获得休息。
▼与大剧院的关系
俱乐部对于设计的要求相当直接,即是:“工业风”。基于这个要求,我们必须回答我们眼中的工业风是什么。对工业的理解:精准,工业化是一种强调效率与标准化的组织形式,我们认为工业风不能抛弃这一典型特征。因此我们选择以高度的模数化来呈现我们眼中的工业风设计。得益于完善的工业配套,我们得以很轻易地预制出标准化、规范化的家具。
▼平面图
▼轴测图
▼室内外空间融合
▼室内吧台
▼外摆休闲区
精细梳理人与车动线,将车相关功能集约一侧,规划简洁流畅的人行动线及人 + 车复合动线。以此为基在平面布以网格,精准规范功能区与家具尺度,构建高效有序空间秩序,确保服务流程无缝衔接、便捷高效,于有序中提升使用体验。
▼自行车室内展示区
预制道具主导下,金属材料以高强度、耐久性及可塑性脱颖而出,担当构建骨架重任,塑造硬朗质感与先锋氛围;桦木板凭温暖质感与自然纹理中和工业冷硬,为空间注入温馨亲和气息,共同奠定风格主调。
定调灰色与原木色搭配,灰色微水泥覆墙面,沉稳低调,结构柱与设备层深色涂料强化层次对比,桦木板原木色穿插调和,色彩协同构建平和舒缓视觉场域,强化整体感与风格辨识度,凸显工业风简约质朴魅力。
所有家具统一使用30mm*30mm铝型材与18mm桦木板,并以500mm为模数。以500*500*450的矮桌为基本单元,创造了数个形态功能各异的搁架单元。模数化保障互换组合性,用户可按需自由拼搭,赋予家具多元功能与动态适应性,契合多元场景需求,提高使用灵活性与资源利用率。3D 模拟锁定钢丝地台安装位,激光切割开孔预制加工,现场精准组装;顶部金属网装置借现场金属丝牵拉定位,依托网格滑轨预留调整余裕,实现展示效果最优化与安装便捷性统一,展现工业化预制装配高效精准优势。
▼活动与多功能展区照片
▼修车活动
于苏州湾之畔,Hors Categorie 骑行俱乐部望湖而开,是环湖骑行长卷的起始。设计以模数化精算为墨,精准勾勒机车修护区高效之轮廓与休憩区闲适之情境。金属坚毅为骨,桦木温婉作裳,共谱工业与自然和谐交响。空间布局依循功能动线,灵动谱写秩序篇章;微水泥灰调配色,于光影摩挲间,晕染静谧诗意。预制家具与装置恰似创意积木,灵活多变,解锁多元功能妙境。
项目信息
项目名称:Hors Categorie自行车骑行俱乐部
设计方:平介设计
公司
网站:
项目设计:2024.5-2024.7
完成年份:2024
项目策划:金梦圆,蒋亦渺
设计团队:沈新龙,张莹,杨楠,张楚悦
项目地址:江苏省苏州市吴江区苏州湾大剧院底层西侧
建筑面积:170㎡
摄影版权:王尚,陆向炜
客户:Hors Categorie骑行
俱乐部
材料:海洋板,铝型材,微水泥
客服
消息
收藏
下载
最近
























