查看完整案例

收藏

下载
河内的Cultra Taproom项目为杭大街上一座百年殖民地风格的房子注入了新的活力,将河内珍贵的建筑遗产与现代活力融为一体。河内的老房子,有着狭窄的小巷和庭院,不仅仅是建筑;它们是这座城市历史和几代人成长空间的怀旧象征。对于新主人来说,这段丰富的历史是他们将青春活力与过去永恒优雅融为一体的愿景的基础。
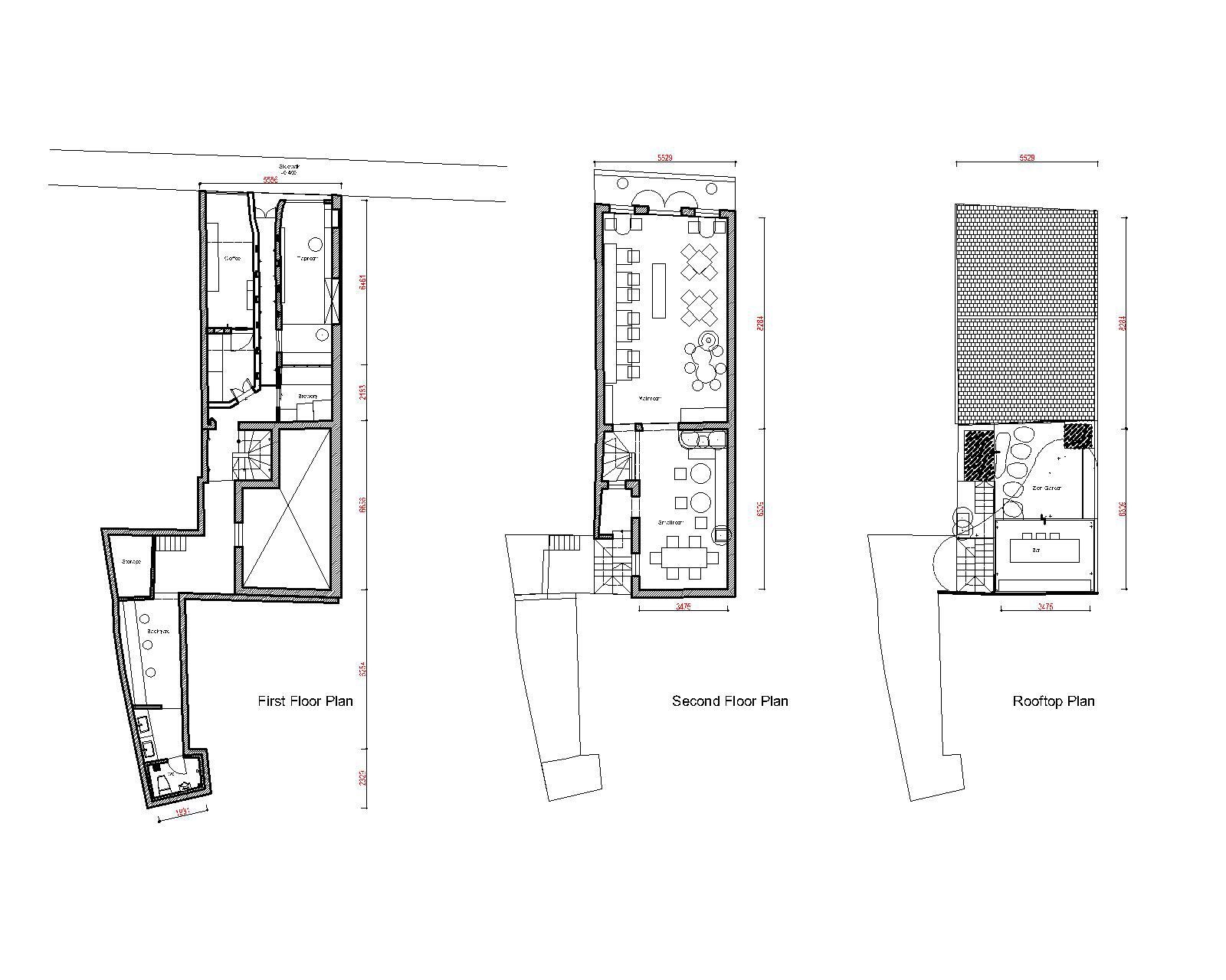
这座建筑建于100多年前的法国殖民时代,随着时间的推移发生了重大变化。在经历了历史动荡和多次所有权转移之后,这座建筑已经恶化。由于补贴期的影响,公共区域已经缩小,维护不善,波纹金属屋顶、铁栅栏和临时地板下隐藏着美丽的建筑细节。一条狭窄的小巷穿过一楼的中心,只有大约60厘米宽,将建筑的立面分为两个不同的部分。鉴于建筑的共同所有权,这条小巷无法拆除,这对连接内部空间和创造建筑焦点提出了挑战。
设计纲要呼吁打造一个多功能空间,在体现河内文化精髓的同时,提供多样化的功能:餐厅、商店、咖啡馆、酒吧、厨房和各种辅助区域。建筑师的目标是保护建筑的历史魅力,同时满足当代使用的需求。因此,该项目采用了恢复和现代适应的双重方法。
该建筑的前立面分为两部分。上部经过精心修复,保留了原始设计,包括复杂的细节、砖砌和自然绿化。标志性的阳台和窗户是河内建筑身份的象征,在保持原有魅力的同时得到了复兴。相比之下,一楼被狭窄的小巷隔开,被重新设计。这条小巷被一种新的设计所软化,为Cultra的康普茶产品创造了一个诱人的展示空间。由此产生的小巷和更广阔空间之间的规模对比为游客增添了惊喜和发现的元素,唤起了河内老街长期以来的亲密小巷和庭院。
空间之间的流动经过精心规划,以增强从内部到外部的连通性,无缝地引导游客穿过建筑。旧木地板和砖块经过修复和保存,保留了其原始的纹理和情感吸引力。原有的木制楼梯已经倒塌,取而代之的是一个由反映建筑历史和现代元素的材料制成的新楼梯,作为建筑的中心特征。该区域也是建筑不同部分之间的采光井和流通点。
一个独特的特点是小屋顶酒吧,在那里,原始的屋顶瓦片被修复,并被精心挑选的新瓦片所取代,与旧瓦片融为一体,保留了建筑的怀旧感。照明系统经过精心布局,以增强屋顶的美学吸引力,而上方的新玻璃和不锈钢天窗则增添了极简主义的现代气息。引入了一个天窗,在古老的风化墙壁中引入自然光,大自然在建筑内扎根。该设计融合了当代材料和元素,反映了新主人的年轻精神,同时尊重了历史背景。
这个项目代表了过去和现在的美丽融合,是一个在单一建筑空间中体现的不同社会发展时期的旅程。这是现代生活如何与传统共存的一个例子,创造了一个充满活力、多功能的环境,以庆祝河内建筑身份的丰富性。
项目设计:Idee architects
项目面积: 100m²
项目年份:2024
项目摄影:Trieu Chien
首席建筑师:Tran Ngoc Linh
Lead Team: Vu Thi Thanh Tam
项目成市: Hanoi
项目国家: Vietnam
客服
消息
收藏
下载
最近






















