查看完整案例

收藏

下载
01 项目背景:“三河一山”绿道的驿站群
Project background: Rest stations of “Three Rivers and One Mountain” greenway
西汉文学家司马相如曾在《上林赋》中用“荡荡乎八川分流,相背而异态”描绘出八条河流萦绕长安的壮丽,并有了后世流传的“八水绕长安”之美誉。随着西安城市的高速发展,“八水”一度面临水量锐减、污染严重的问题,政府也为此展开数年的治水工作,并在治水取得一定成效后,规划建设出一条集骑行、步行、观光、休闲等多功能于一体的慢行系统——“三河一山”环线绿道,反哺给市民日常之用。可惜的是大部分驿站在建设完成后并未得到充分利用,甚至出现长期闲置的状态。
Sima Xiangru, a writer of Western Han Dynasty, once used “Eight rivers flow in opposite directions and in different shapes” in “Shanglin Fu” to describe the magnificence of eight rivers lingering around Chang’an, and it has the reputation of “Eight Rivers Surrounding Chang’an” passed down from generation to generation. With the rapid development of Xi’an, the “Eight Rivers” once faced the problem of sharp decline in water volume and serious pollution. The government also carried out water control work for several years. After achieving certain results in water control, it planned and built a slow-moving system integrating cycling, walking, sightseeing, leisure and other functions-the “Three Rivers and One Mountain” ring line greenway, which feeds back to the daily use of citizens. Unfortunately, most of the post stations were not fully utilized after the construction was completed, and even remained idle for a long time.
▼鸟瞰,aerial view© 孔锦权
02 项目位置:自然环抱的静谧之所
Project location: A quiet place surrounded by nature
本项目正是在上述背景下的再利用,改造对象名为“锦堤驿”,位于国家级湿地公园试点区——浐灞生态区,同时也是欧亚经济论坛永久会址所在地。“锦堤驿”在欧亚大道彩虹桥的北侧,西面毗邻灞河东路及灞河主河道,由于此处是灞河与浐河的河道交汇处,水面最为开阔,是大家傍晚以后休闲聚会、打卡拍照的人气场所和年轻时尚汇聚之地。“锦堤驿”与灞河东路之间被 7 米高差的草坡和 4 米宽的骑行步道相隔离,成为相对僻静之所。其东面紧邻一个较大的湖面景观,是生态区结合灞河泄洪支流所打造的生态湿地,为驿站的景观品质加分不少。
This project is a reuse project under the above background. The renovation object is called “Jindiyi”, which is located in the national wetland park pilot area – Chanba Ecological Zone, and is also the permanent venue of the Eurasian Economic Forum. “Jindiyi” is on the north side of the Rainbow Bridge of Eurasia Avenue, and is adjacent to Bahe East Road and the main river of Bahe River on the west. Since this is the intersection of the Bahe River and Chanhe River, the water surface is the most open. It is a popular place for leisure gatherings, check-in and taking photos after dusk, and a gathering place for young fashion. “Jindiyi” is separated from Bahe East Road by a grass slope with a height difference of 7 meters and a 4-meter wide cycling trail, making it a relatively secluded place. To the east, it is adjacent to a larger lake landscape, which is an ecological wetland created by the ecological zone combined with the flood discharge tributary of Bahe River, which adds a lot to the landscape quality of the station.
▼夕阳下的鸟瞰,aerial view at sunset© 孔锦权
▼夜景鸟瞰,aerial view at night© 孔锦权
03 驿站现状:空间闲置,消极浪费
Current status of the station: idle space, passive waste
“锦堤驿”的原状呈 T 字形体量构成,钢筋混凝土框架结构,白色金属铝板外皮。其中,南北朝向的体量只有一层高,由开敞环形外廊包裹出一个矩形盒子,盒子南侧部分是公共卫生间,北侧部分闲置。环形外廊极少有人使用,仅东侧较大的临水平台时有人聚集。建筑屋面是一个可上人的大露台,风景绝佳,但缺乏遮阳避雨措施,平日基本无人问津。东西朝向的体量有两层,亦是外廊包裹室内空间的构成关系,空间全部闲置。楼梯的位置及方向也不理想,西侧主要人流动线需要穿越一层和二层大部分空间,被严重拉长。通过观察,这个驿站除去周边居民因散步或运动会偶尔使用公共卫生间外,基本无人来访,造成了空间资源的消极浪费。
▼原状鸟瞰,original state aerial view© 垣建筑设计工作室
▼内部空间原状 Original state of the interior space©垣建筑设计工作室
The original state of “Jindi Post Station” is a T-shaped volume, with a reinforced concrete frame structure and a white metal aluminum plate outer skin. Among them, the volume facing north and south is only one floor high, and a rectangular box is wrapped by an open circular corridor. The south side of the box is a public toilet, and the north side is idle. The circular corridor is rarely used, and people gather only on the larger waterfront platform on the east side. The roof of the building is a large terrace with excellent scenery, but there is a lack of sunshade and rain shelter measures, so it is basically unattended on weekdays. The volume facing east and west has two floors, which is also the structural relationship of the corridor wrapping the indoor space, and the space is completely idle. The location and direction of the stairs are also not ideal. The main flow line on the west side needs to pass through most of the space on the first and second floors, which is seriously elongated. Through observation, this post station is basically unattended except for the occasional use of public toilets by surrounding residents for walks or sports meetings, resulting in a passive waste of space resources.
▼建筑外观与湖景,building exterior and lake view© 孔锦权
▼俯瞰,top view© 孔锦权
04大家的风景:驿站的修补术
Everyone’s scenery: the repair of station
从增量时代到存量时代,建筑学在面对越来越多既有建筑改造更新的时候,急需反思建筑的社会价值与人文特征,通过重塑生机勃勃的场所环境,来修补人与人、人与自然之间的关系。2023 年,我们与业主已经合作完成了西安城市运动公园内一处公共服务设施的改造更新,取名为“大家的庭院”。“锦堤驿”的改造更新是第二次合作,在设计之初就达成了更新共识:摆脱追求豪华的、流行的、内向的、风格化的餐饮运作逻辑,继续创造在地化的、外向的、自由自在的开放空间,并通过改造产生混合的餐饮模式来满足公众的多元需求,同时最大化嫁接周围优美的环境资源。景区管委会的要求是尽可能保持现状建筑的风貌,色彩需以现状金属板的白色为主基调,公共卫生间需维持现状继续对外服务。
▼分析图 renovation diagram©垣建筑设计工作室
From the incremental era to the stock era, when facing more and more existing buildings, architecture urgently needs to reflect on the social value and humanistic characteristics of architecture, and repair the relationship between people and nature by reshaping the vibrant place environment.
In 2023, we have cooperated with the owner to complete the renovation and renewal of a public service facility in Xi’an City Sports Park, named “Everyone’s Courtyard”. The renovation and renewal of “Jindiyi” is the second cooperation. At the beginning of the design, we reached a consensus on the renewal: get rid of the pursuit of luxurious, popular, introverted, and stylized catering operation logic, continue to create localized, extroverted, free and open spaces, and generate mixed catering models through transformation to meet the diverse needs of the public, while maximizing the grafting of the surrounding beautiful environmental resources.
The requirements of the scenic area management committee are to maintain the style of the existing buildings as much as possible, the color should be based on the white of the existing metal plates, and the public toilets should maintain the status quo and continue to serve the outside world.
▼从骑行跑道看建筑,view of this building from cycling track© 孔锦权
▼树林中的轻盈构架,lightweight structure in the woods© 孔锦权
▼夜景,night view© 孔锦权
▼轻盈松弛的构架,light and loose structure© 孔锦权
理清条件和目标后,我们提出了以下改造策略:
第一,维持一层公共卫生间的对外功能属性,在其南侧封闭出相对隐蔽集约的厨房等服务空间,并通过高侧窗来解决采光和通风问题;
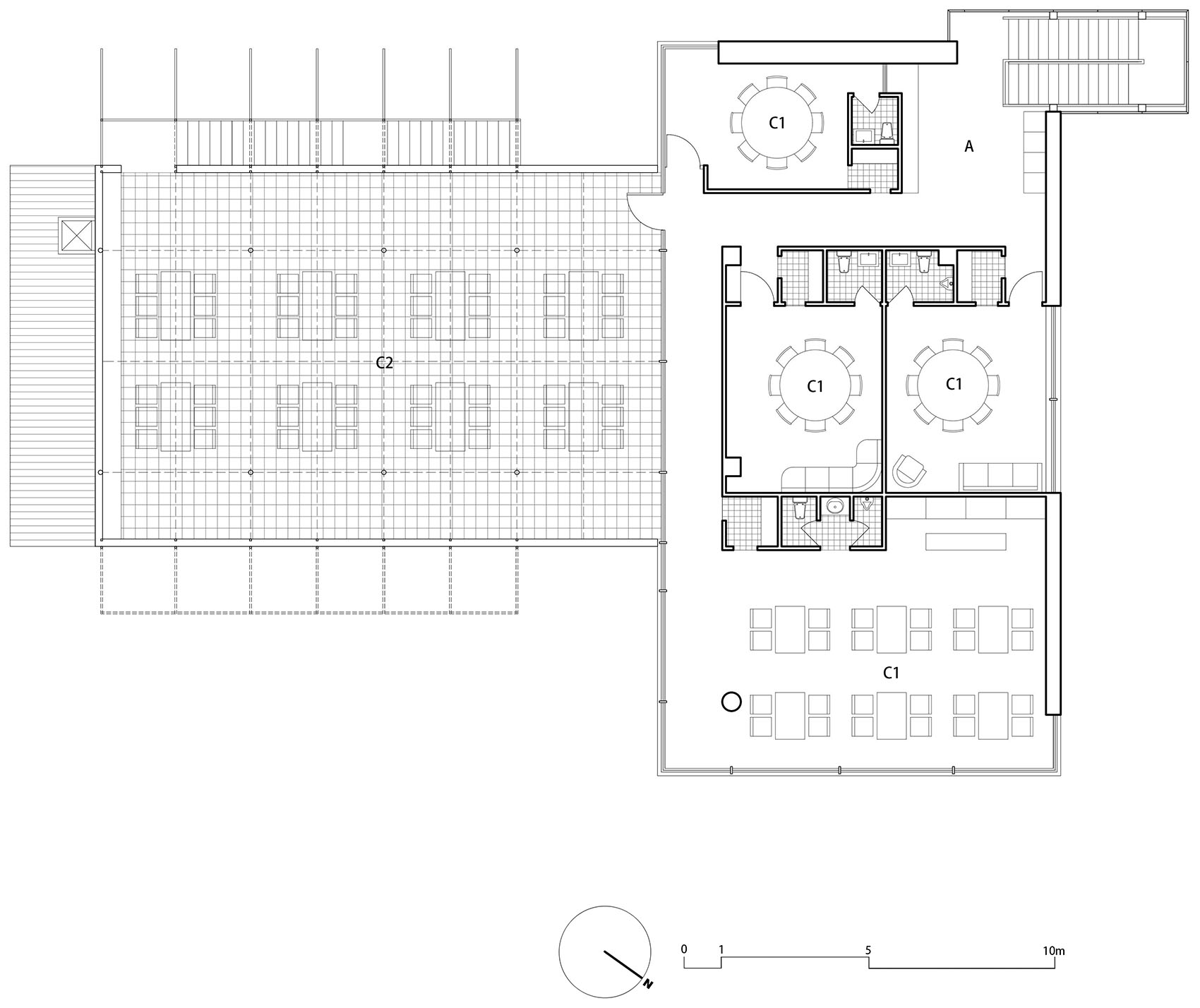
第二,除去不可动的结构,一层空间的气候边界全部采用落地玻璃,以保证内外空间最大化的融通。东侧区域借助场地高差及原有挡土墙,形成阶梯状的室外露台餐饮,满足人们与湖水景观的亲密接触。北侧区域单独拓展出一个被自然包裹的咖啡饮品区,满足非餐食客群的休憩之需。西侧区域则作为主入口,衔接灞河东路方向的主要人流。在入口和大堂区域我们重新设计了两部楼梯,一部可满足人们直上屋顶大露台,另一部经由大堂便捷地到达二层空间。如此,建筑的新动线既衔接了主要人流方向又产生多选择的有效分流,同时保证了被服务空间的完整性;
第三,二层室内空间占据出两个错位的包间体量(每个包间都获得不同方向的优质景观),来满足部分家庭聚会的私密性需求。剩余空间则被限定为曲折的公共体验路径,衔接起最东侧的餐饮空间与南侧的屋顶大露台;
第四,在二层大露台上部我们增设了一个钢结构的双坡大屋顶,以获得被遮蔽保护、但又向四面风景开放的大空间。双坡屋顶被拆解为三个高低错落的部分,既保证了通风又让光线可漫反射进入。八颗钢柱子与已有的混凝土梁柱对位设置,弱分割了露台空间。向外悬挑出的屋顶构架和预留植物攀爬所设置的垂直构架一同削弱了建筑的体量感,加之阳光板的运用与光线的柔和进入,让屋顶产生强烈的漂浮感,使建筑整体呈现出松弛轻盈的姿态和氛围。
▼露台的半透明屋架,semi-transparent roof frame of terrace© 孔锦权
▼树影婆娑的半透明楼梯空间,translucent staircase space with swaying tree shadows© 孔锦权
05小结
Summary
回溯这次改造工作,依然希望通过对场地环境和设计条件的深刻理解,形成有效的借用与转化。从结果来看,基本实现了在地化日常生活场景在一个闲置建筑中的重塑,大家在这个自由开放的空间里共同享受到了与周围风景之间的密切联系,从而在身心愉悦的轻松氛围下扩展出多元可能,这些也将成为我们持续关注与记录的内容。
Looking back on this renovation work, we still hope to achieve effective borrowing and transformation through a deep understanding of the site environment and design conditions. From the results, the reconstruction of localized daily life scenes in an idle building has been basically achieved. Everyone enjoys the close connection with the surrounding scenery in this free and open space, thereby expanding multiple possibilities in a relaxed atmosphere of physical and mental pleasure. These will also become the content of our continuous attention and recorsd.
▼被自然环抱的一层室内空间,first-floor indoor space surrounded by nature© 孔锦权
▼被自然环抱的二层室内空间,the second-floor interior space surrounded by nature© 孔锦权
▼模型,model©垣建筑设计工作室
▼一层平面图,1F plan©垣建筑设计工作室
▼二层平面图,2F plan©垣建筑设计工作室
▼剖面图, sectiona©垣建筑设计工作室
项目名称:垣建筑新作 / 大家的风景——“锦堤驿”的改造更新
项目类型:既有建筑的改造更新
设计方:垣建筑设计工作室(西安建筑科技大学建筑学院)
项目设计:2023.12-2024.04
完成年份:2024.08
主创建筑师:王毛真、吴瑞
设计团队:刘泽宪、侯兰欣、刘蓓、王岚、汪鹏飞、全俊龙
技术顾问:白翌尧
结构顾问:胡晓劼
软装:黄蕾、赵倩
项目地址:中国陕西省西安市浐灞生态区灞河东路
建筑面积:626㎡
摄影版权:孔锦权
室内施工:西安寓成建设工程有限公司
钢结构施工: 陕西雄峰实业集团有限公司
客户:西安大隐餐饮管理有限公司
材料:钢、铝板、玻璃、塑木
Project name:Everyone’s scenery–the renovation of “Jindi Station”
Project type:Architecture
Design:Wall Architects of XAUAT
Design year:2023.12-2024.05
Completion Year:2024.08
Leader designer:Maozhen Wang,Rui Wu
Team:Zexian Liu,Lanxin Hou, Bei Liu,Lan Wang,Pengfei Wang,Junlong Quan
Technical Consultants: Yiyao Bai
Structural Structural engineer:Xiaojie Hu
Interior decoration designer:Lei Huang,Qian Zhao
Project location:Bahe East Road, Chanba Ecological District, Xi ‘an City,Shaanxi Province, China
Gross built area: 626㎡
Photo credit: Jinquan Kong
Interior construction team:Xi ‘an Yucheng Construction Engineering Co., LTD
Steel structure construction team:Shaanxi Xiongfeng Industrial Group Co., LTD
Clients:Xi ‘an Dayin Catering Management Co., LTD
Materials:Steel, aluminum, glass, plastic wood
客服
消息
收藏
下载
最近



































