查看完整案例

收藏

下载
该项目由波尔图大学(University of Porto)发起,由 Crea 团队负责设计,位于坎波阿莱格庄园(Quinta do Campo Alegre)的大学体育场内。项目旨在修复和扩建 CDUP 的看台及总部建筑,原建筑于 1953 年落成。经过长时间的修复和疫情期间的中断,这一建筑群现已重新向公众开放。设计的任务是翻新现有的看台建筑,同时将 CDUP 的新建筑融入整体设计。整个项目以创建一个统一的整体为理念,因为建筑不能脱离其环境背景,而必须与时间和场地保持紧密联系。
The project for the rehabilitation and extension of the grandstand and headquarters of CDUP was promoted by the University of Porto and developed by Crea, within the University Stadium context, located in the Quinta do Campo Alegre, and inaugurated in 1953. It was a long process, with a pandemic in between, and has recently re-opened to the community.
We were challenged to renovate the existing grandstand building, as well as to integrate the new buildings for the CDUP, and it was this spirit of designing a cohesive whole that inspired the project, also because architecture should not and cannot break with the context, and must be relational in time.
▼项目鸟瞰,Ariel view of the project©Fernando Guerra
▼看台鸟瞰,Ariel view of the stand©Fernando Guerra
▼体育馆鸟瞰,Ariel view of the gym©Fernando Guerra
原有看台建筑以理性主义风格为特色,这体现在其临街立面的简洁与对称构图中。建筑以严格的对称布局呈现,柱廊形成的入口标志性地划分了从街道到体育场内部的过渡空间。入口区域的花岗岩浮雕尤为引人注目,其图案灵感来源于古典神话和早期奥林匹克运动的意象。
▼场地平面,site floor plan©CREA architects
▼灵感来源,inspiration
©CREA architects
The existing grandstand building, of rationalist inspiration, reflected in the composition and sobriety of the elevation to the access road, arranged in strict symmetry and with a composition defined by a metric of pillars that converge in the porticoed entrance – a loggia over the street that marks the passage to the interior of the stadium. The chiseled bas-reliefs in granite mural stand out, with motifs that refer to the imagery of classical antiquity mythology and the ancient original games.
▼看台建筑,grandstand building©Fernando Guerra
在翻新过程中,不仅对结构进行了修复,还重新设计了内部空间,新增了为运动场地服务的配套设施,这些区域通过面向街道的中央柱廊入口进入。而观众则通过看台顶部的楼梯进入场地。屋顶的重新设计显著增加了覆盖区域,为建筑增添了更多实用功能。
Alongside with the structural refurbishment, the interior space was redesigned to include the support areas for the playing fields, with its access made through the central portico open to the street. The access for the spectators is made through the staircases at the top of the grandstand, and we promoted a significant increase in the covered area by redesigning the roof.
▼看台屋顶,grandstand roof©Fernando Guerra
▼看台内部配套服务设施
service infrastructure under the grandstand roof©Fernando Guerra
沿着现有看台的纵向轴线,建筑师设计了两座新建筑,用于容纳 CDUP 的总部和学生支持功能。这些新建筑包括办公空间、会议室、社交区域及多功能设施。在设计中,借鉴了现有建筑的韵律和比例,同时打破了原有看台的严格对称性,以更加流畅和动感的形式重新诠释了空间。
On the longitudinal alignment of the existing grandstand we designed two new buildings, which absorb the program of the CDUP headquarters and support for university students, including work offices, meeting and social rooms and multipurpose facilities. In attentive relation with the pre-existing volume and composition, their design was contaminated by the grandstand metric, but it frees itself from that rigorous symmetry, reinterpreted in a more fluid and dynamic movement.
▼入口区域的花岗岩浮雕,the chiseled bas-reliefs in granite mural©Fernando Guerra
▼更衣室区域,changing area©Fernando Guerra
▼更衣室外走廊,the corridor along the changing room©Fernando Guerra
新建筑在东侧通过宽敞的开窗面向运动场开放。混凝土立面上的柱子排列形成阳台和大面积窗景,将绿茵场自然地框入室内视野,进一步延续了建筑的动态构图。原有看台建筑的简朴风格也被延续到新建筑中,新建筑以简约为核心设计理念。立面使用了染色混凝土,并延伸到室内,与建筑空间融为一体。
▼新体育馆平面,new gym plan©CREA architects
To the east, the buildings open out generously onto the playing fields, inscribing the same compositional dynamics in the arrangement of the concrete pillars of the facade, which either create balconies or large planes framing the lawn. There is a certain austerity evident in the grandstand, that was also borrowed for the synthetic approach we are looking for in the new buildings: the pigmented concrete of the façades also invades the interior.
▼新建筑鸟瞰,Ariel view of the new building©Fernando Guerra
▼形成阳台和大面积窗景,create balconies or large planes framing the lawn©Fernando Guerra
▼混凝土立柱,concrete pillar©Fernando Guerra
▼将绿茵场自然地框入室内视野,introduce the fields scene into the indoor space©Fernando Guerra
陶土色的天花板和地面为建筑空间注入了一种鲜明的活力,与看台建筑的沉稳氛围以及周围树木的自然景观形成了鲜明对比。
And it is the same terracotta-colored material of the ceilings and ground floor, introducing a vibrancy that contrasts with the grandstand sobriety, and with the tree tops of the surroundings.
▼陶土色的天花板和地面为,terracotta-colored material of the ceilings and ground floor ©Fernando Guerra
▼陶土色的天花板和地面为
terracotta-colored material of the ceilings and ground floor ©Fernando Guerra
▼楼梯空间,staircase space©Fernando Guerra
▼傍晚景色,at dusk©Fernando Guerra
▼场地平面,site plan©CREA architects
▼看台立面,grandstand elevation©CREA architects
▼新体育馆立面,new gym elevation©CREA architects
▼新体育馆剖面,new gym section©CREA architects
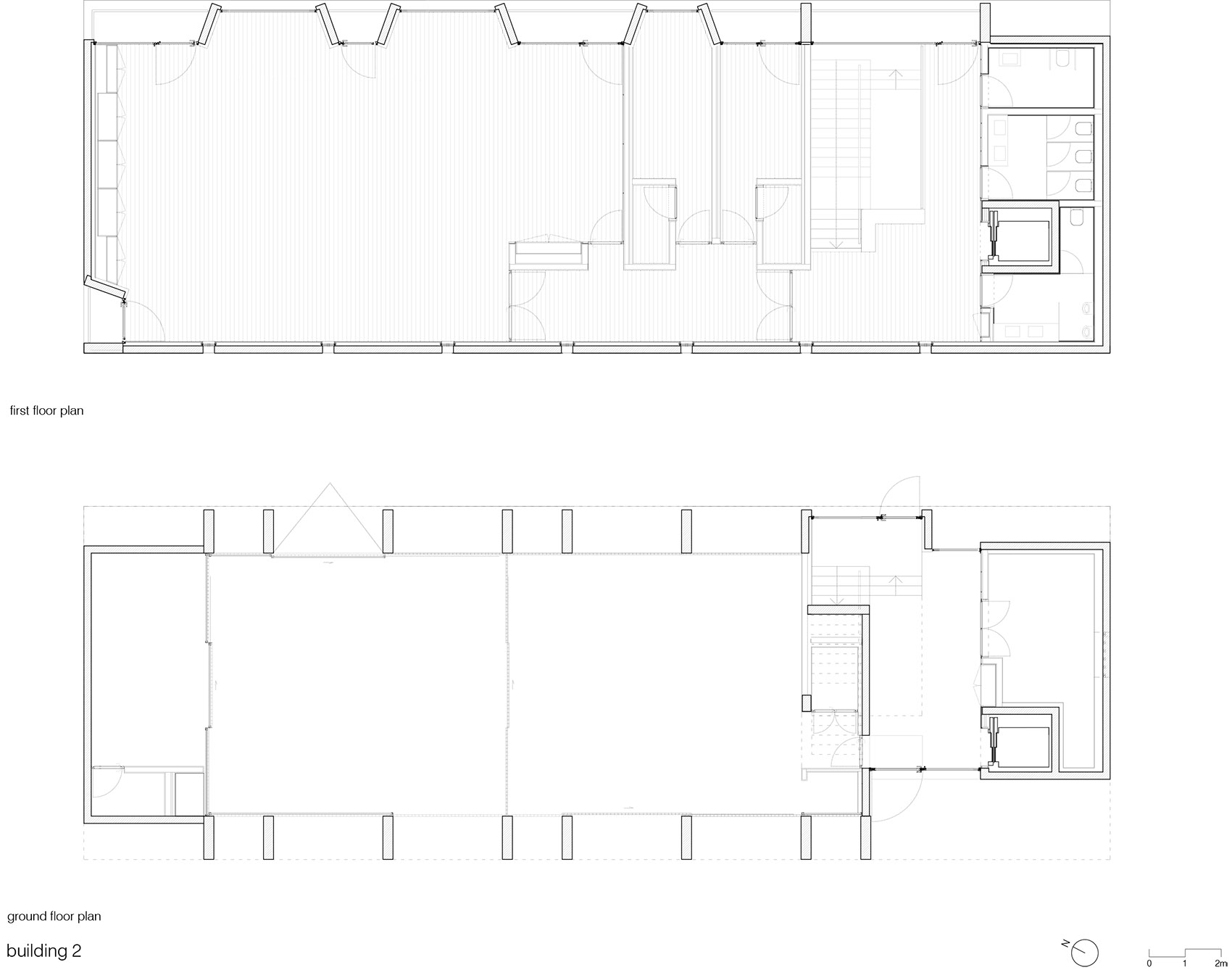
▼看台平面,grandstand plan©CREA architects
▼看台立面,grandstand elevation©CREA architects
▼看台剖面,grandstand section©CREA architects
Autor: André Camelo, Crea Arquitetos
Date of design: 2019 – 2021
Date of construction 2021 – 2024
Address: Rua das Estrelas
Location: Porto, Portugal
Client University of Porto
Collaborators Bruno Soares, Rita Correia, Teresa Osório
Structural Engineer Armando Vale
Electrical Engineer Luís Oliveira
Mechanical Engineering João Pedro Sousa
Constructor Camacho Engenharia, S. A.
客服
消息
收藏
下载
最近




































































