查看完整案例

收藏

下载
©Cody James
对每一个涉猎20世纪现代建筑的人而言,流水别墅都是一个耳熟能详的经典。作为建筑大师弗兰克·劳埃德·赖特(Frank Lloyd Wright)在其职业生涯晚期留下的代表作之一,这座建立于瀑布之上的别墅不仅实现了有机理念与现代材料技术的融合,更是人与自然和谐相处的物质及精神体现。
历经近90年的时光后,摄影师Cody James用镜头记录了整修后的流水别墅,通过细腻的影像展现更为全面的空间设计。
©Cody James
流水别墅
Fallingwater House
美国·宾夕法尼亚州
流水别墅由百货巨头Edgar J. Kaufmann, Sr.于1935年委托赖特为其家人建造,彼时他的儿子参加了赖特组织的塔里埃森培训项目,并在学期间与67岁的建筑大师结识,促成了这个足以代表其晚年职业生涯的经典作品。
©Cody James
Kaufmann一家买下的场地位于Bear Run自然保护区内,约为30英尺(约9.14m)高的瀑布与跌落的岩石景观构成了最主要的视觉资源。在这个项目中,赖特延续其自下而上的设计思路,从场地本身的地形特性出发,将别墅的居住空间与瀑布本身融为一体,创造了人与自然的和谐关系。
©Cody James
远观这座非集中式的现代建筑建筑,穿插在林冠间的水平屋顶和垂直交错的砌体无疑是其最鲜明的形式语言,与赖特早期的草原风格相比,流水别墅不仅凭借抽象几何的水平板片突破了结构技术与美学观念的传统桎梏,同时通过分散流动的空间消解了建筑的体积感,给人带来直观的视觉冲击。
©Cody James
别墅的内空间体现了流动有机的设计理念,赖特利用面向溪流的角窗和刻意压低的天花板强调外部景观的存在,非连续性的片墙使不同功能的空间通过结构性的进退关系和谐相融,借助渗透性的感知体验实现建筑与环境的对话与延伸。
©Cody James
位于别墅一层的客厅与起居室是内部的社交区域,赖特将温暖的壁炉与建筑最高的结构体块相结合,强调其中心地位。此外,客厅一侧还设有向下延伸的台阶,昏暗紧凑的通道以底部的瀑布景观为终点,通过欲扬先抑的空间序列诠释建筑与自然的呼应关系。
©Cody James
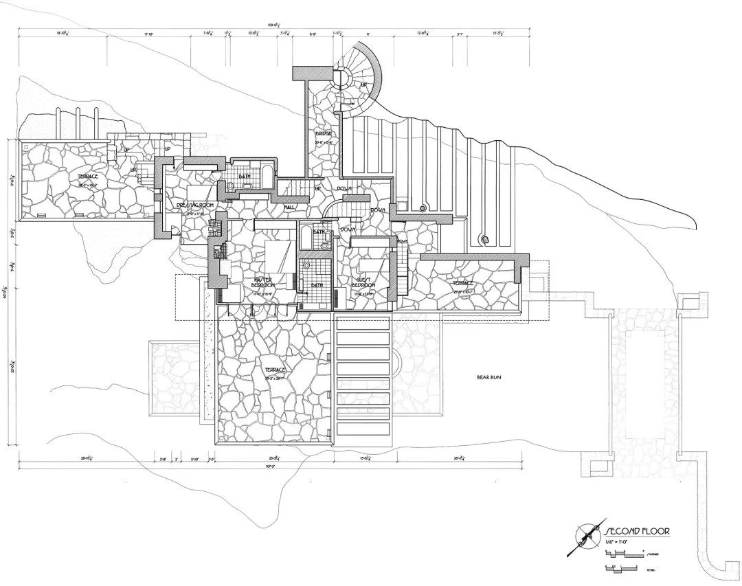
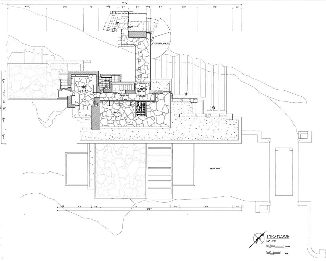
别墅的上层空间容纳了家庭成员的书房、卧室以及额外准备的客房,依山就势的灵活布局满足了独立私密的生活需求。其中二层的卧室分别与不同朝向的大型露台相接,巧借自然之景形成隔断与延伸,营造有机的沉浸式体验。
©Cody James
别墅的大型悬挑结构是营造其特殊氛围的重要表达元素,为了保证抗拉强度,赖特与工程师Mendel Glickman和William Wesley Peters共同合作,首次在他的设计中使用了大量的钢筋混凝土作为承重材料。虽然别墅后续因结构问题需要不断进行维护,但现代材料与有机理念的完美结合依然是当今建筑界的学习典范。
©Cody James
策划:Ne
iWai
编辑: YouChuan
校对:YueQiu
排版:
NingBai
客服
消息
收藏
下载
最近


















































































