查看完整案例

收藏

下载
▲吃山藏宝图 ©未见筑 Yummyhill Hostel Treasure Map © Welive
走进吃山,仿佛回到十几年前的自己,那个兜里没几两银子,身体却永远在路上的设计师。
Walking into Yummyhill Hostel feels like returning to your younger self from over a decade ago — the designer who had little money in their pocket but always stayed on the move.
所谓青年,就是无论身处什么样的境地,都会想要走出去看看这个世界丰富多彩的样子,充满了好奇与能量的生命。
Being young means having an insatiable curiosity and energy to explore the colorful diversity of the world, no matter the circumstances.
▲吃山轴测图 ©未见筑 Axonometric Diagram of Yummyhill Hostel © Welive
项目背景
Project Background
/
吃山 02 救赎,是吃山文化青年旅店的第二家店,位于重庆市渝中区两路口中华广场 3 楼,这里是重庆的老城区,出门有地铁站和皇冠大扶梯,也有菜市场和各种餐馆,是一个充满烟火气的地方。
Yummyhill Hostel 02: Redemption is the second branch of the Yummyhill Hostel Cultural Youth Hostel. It is located on the 3rd floor of Zhonghua Plaza in Lianglukou, Yuzhong District, Chongqing, an old part of the city. With a subway station, the Crown Grand Escalator, a food market, and numerous restaurants nearby, it’s a lively area full of local charm.
▲吃山区位分析图 ©未见筑 Location Analysis Diagram © Welive
▲菜园坝立交 ©吃山 Caiyuanba Interchange © Yummyhill Hostel
吃山主理人老白,自称吃山的 FLOYD,不喜欢没有灵魂的游客景点,喜欢艺术和旅行,提倡环保和平权,是一个正直又淳朴的 90 后。2023 年,随着疫情阴霾的消散,吃山 01 也得以在“那段时间”中活了下来,吃山 02 以“救赎”为理念开始了品牌新的旅程。
The host of Yummyhill Hostel, Lao Bai, calls himself the FLOYD of Yummyhill Hostel. Lao Bai dislikes soulless tourist attractions, loves art and travel, and advocates for environmental protection and equality. As a principled and honest millennial, Lao Bai led Yummyhill Hostel 01 through the challenges of the pandemic. With the dawn of 2023, Yummyhill Hostel 02 embarks on a new journey under the theme of “redemption.”
▲吃山插画 ©Meei Illustration of Yummyhill Hostel © Meei
设计理念 Design Concept
/
“吃好睡好,就是救赎”
Eat well, sleep well—this is redemption.
无论是我们自己还是他人,在人生路上总会经历低沉的“那段时间”,都需要在那之后重拾对生活的热情。
In life, we all go through challenging periods and need to reignite our passion for living afterward. Youth hostels serve as temporary havens for young travelers, offering a place to rest, heal, and recharge.
青年旅店是身体永远在路上的青年人短暂停留驻足休憩的空间场所,在这里可以以睡眠治愈身体,以音乐来抒发情感,以插画来记录当下,以交流来认识朋友,以美食来庆祝生活,在短暂的停留后让身体和灵魂再次充满好奇与能量。
At Yummyhill Hostel, visitors can heal their bodies through sleep, express their emotions through music, capture moments through illustration, make friends through conversations, and celebrate life with food. These experiences replenish curiosity and energy for their onward journey.
▲吃山草图 ©未见筑 Sketch of Yummyhill Hostel © Welive
这是一个既依附与城市又独立其中的精神花园,拥有自己的文化理念与价值观。不同于城市的喧嚣与复杂,这里安静又简单,让生活品质回归最基础的吃好睡好,让陌生人之间建立友谊,让环保与平权的观念深入人心,鼓励每一个年轻人脱离低级趣味,忘记烦恼减少焦虑,简单的关注自己做好自己。
Yummyhill Hostel is a spiritual garden within the city, rooted in its culture and values. Unlike the city’s chaos and complexity, this place is quiet and simple, emphasizing the basics of “eating well and sleeping well.” It fosters friendships among strangers, instills eco-friendly and equitable ideals, and encourages young people to focus on self-improvement and positivity.
▲吃山黑板墙©未见筑 Blackboard Wall at Yummyhill Hostel © Welive
空间模式
Space Mode
/
“猫与人,人与人,人与自我”
Cats and people, people and people, people and themselves.
人与人的关系是青旅的核心与灵魂,陌生人之间需要舒适又充满可能性的距离感,不同的独立功能单元也需要创造既能安静独处又便于自由交流的场所氛围。
Human connections are the heart and soul of a youth hostel. The space is designed to balance comfortable distances between strangers with areas conducive to solitude and lively interactions.
▲花园阳台 ©宛芹 Garden Balcony © Wanqin
▲冥想室小猫 ©宛芹 Meditation Room Cat © Wanqin
整个旅店的空间分为两个大的部分,公共区域和居住区域,分别对应青年旅店最重要的交流与睡觉功能。
The hostel is divided into two main areas: public spaces and private accommodations, addressing the core needs of interaction and rest in a youth hostel.
▲功能大分区图 ©未见筑 Function Zoning Diagram © Welive
在吃山 02 的公区设计中,我们摒弃了“用墙体划分空间”的模式,转而采用了“以空间划分空间”的模式。通过巧妙地利用不同的空间形态、材质、光线等元素,创造出既相互独立又和谐统一的多个子空间,从而赋予整个空间更加丰富的层次感和体验感。
Instead of defining spaces with walls, the design of Yummyhill Hostel 02 creates zones through spatial forms, materials, and lighting. This approach produces rich layers and enhanced experiences.
▲平面黑白图 ©未见筑 Black and White Floor Plan © Weilive
▲吃山公区 ©宛芹 Yummyhill Hostel Public Area © Wan Qin
居住区域以最高效的一个回型走廊进行串联,以满足经营逻辑下对房间类型、床位数量、消防疏散等技术指标的要求。
The residential area is efficiently connected by a single loop-shaped corridor, designed to meet operational requirements for room types, bed capacity, fire evacuation, and other technical specifications.
▲吃山动线图 ©未见筑 Yummyhill Hostel Circulation Diagram © Weilive
▲吃山走廊 ©吃山 Yummyhill Hostel Corridor © Yummyhill Hostel
场所营造 Place Making
/
中央厨房+商业厨房、拼餐区+深夜食堂、三角游戏桌+独立游戏屋、洗衣房、男女晾晒区、自习区、化妆间、行李间…… 功能齐备的公共配套空间让经济性十足的青旅充满了无比富足的精神性与情绪价值。
The hostel integrates a wide range of communal spaces, including a central kitchen, commercial kitchen, shared dining area, late-night canteen, triangular game tables, an independent game room, laundry room, male and female drying zones, study areas, a makeup room, luggage room, and more. These features bring not only practical functionality but also spiritual richness and emotional value to this economic yet abundant youth hostel.
在国内,选择入住青旅的旅客往往怀揣着社交的初衷。为此,我们巧妙地利用空间布局来促进社交互动,在公共区域的设计上,特意融入了能够自然引导人们聚集的元素。
In China, travelers often choose hostels with the intention of socializing. To cater to this, the space layout is designed to foster interactions, with public areas incorporating elements that naturally encourage gatherings.
▲功能轴测图-公区 ©未见筑 Functional Axonometric Diagram – Public Area © Welive
01 玄关大堂
01 Entrance Lobby
从一个老建筑架空层幽暗的巷道进入电梯,上三楼,开门便是吃山大堂。天空中一个巨大的圆形发光源让整个接待空间明亮通透,与建筑外部环境形成强烈反差,照亮旅途劳顿的心灵。
Visitors enter the lobby after navigating a dark alley in the suspended space of an old building and taking an elevator to the third floor. The bright lobby, illuminated by a massive circular light source, contrasts sharply with the external environment, symbolizing the warmth and comfort of arriving after a journey.
三角形几何体量堆叠的前台对应着圆形天空,以“牙”的形态欢迎四方旅客。洗衣房位于大堂右侧,让大堂充满生活气息。
A triangular geometric reception counter mirrors the circular light above, embodying the concept of welcoming guests from all directions with a motif resembling “teeth.” The laundry room, located to the right, infuses a sense of life into the lobby.
▲“希望之光与吃山的牙 —— 契合品牌主题,救赎与厨房”
▲”Hope Light and Yummyhill Hostel’s Teeth – Aligning with the Brand Theme of Redemption and Kitchens” ©宛芹
▲“FLOYD 之窗——主理人想为年轻人带来更多当代艺术思想的美好愿望”©未见筑
▲”Floyd Window – An Artistic Tribute to Young Aspirations”©Welive
▲“大堂洗衣房—— 进之的生活氛围”©宛芹
▲”Lobby Laundry Room – Infusing Life’s Atmosphere”©Wan Qin
▲“自助行李间——服务安全与便利”©宛芹
▲”Self-Service Luggage Room – Safety and Convenience in Service” ©Wan Qin
02 中央厨房
02 Central Kitchen
▲“The Big Chef —— 大厨的创意工作室”©未见筑 The Chef’s Creative Studio”©Weilive
中央厨房是吃山的核心空间,采用开放式吧台设计,邀请每位旅客见证食物的诞生。吧台后,大厨们施展厨艺;吧台前,旅客们围坐交流。不仅是品尝美食,更是感受这份独特的氛围。与邻座的陌生人因美食而结缘,人与人之间的距离,因味蕾的共鸣而拉近。
The central kitchen, the heart of Yummyhill Hostel, adopts an open bar counter design, inviting travelers to witness the creation of food. Behind the counter, chefs showcase their culinary skills; in front, guests gather and converse. The space merges the enjoyment of gastronomy with a unique ambiance, enabling strangers to connect through shared culinary experiences.
▲图片来源自网络 Image source: Internet
木质元素与不锈钢操作台的巧妙结合,既营造舒适氛围,又不失现代气息。开放式长条吧台的设计,可以容纳 18 位食客近距离观赏大厨的精湛技艺,同时也提供了一个绝佳的交流平台。
Wooden elements blend seamlessly with stainless steel countertops, achieving a balance of comfort and modernity. The open bar, accommodating 18 diners, not only offers a close view of the chefs’ craft but also creates an excellent socializing platform.
▲中央厨房 ©宛芹 Central Kitchen©Wan Qin
▲部分公区 ©宛芹 Partial Public Area ©Wanqin
▲吃山菜品 ©吃山 Chishan Cuisine ©Chishan
03 拼餐区
03 Shared Dining Area
除了具有仪式感的中央厨房,能够欣赏到长江夜景的拼餐区是另一个温暖用餐的地方。被壁炉和书架围合的空间,设有公共冰箱供旅客放置自己的食物,自助贩卖啤酒柜,还有悬吊的电视,可以与新认识的朋友一起分享美食,观看激动人心的比赛。
Another cozy dining space is the shared dining area, offering stunning views of the Yangtze River. Enclosed by fireplaces and bookshelves, it features public refrigerators, self-service beer vending machines, and suspended televisions for enjoying meals and games with newfound friends.
▲“拼餐区——属于美食与社交的场所” ©宛芹
▲”Shared Dining Area — A Place for Food and Social Interaction” © Wan Qin
无论是设计成长条形的开放式中央厨房,还是配置大桌的共享用餐区,我们都旨在打破传统一人一桌的独立用餐模式,转而鼓励在大桌上与素未谋面的旅客共进餐食。这样的设计巧妙地将人际交往融入每日不可或缺的三餐之中,让每一次用餐都成为一次增进了解、促进交流的契机。
Whether it’s the long, open-format central kitchen or the communal dining area with large tables, the design aims to break away from the traditional one-person-per-table dining mode. Instead, it encourages travelers to share meals at large tables with strangers. This design seamlessly integrates social interaction into daily meals, turning each meal into an opportunity to foster understanding and exchange.
▲©吃山©Yummyhill
04 休闲娱乐区
04 Recreational Area
三角游戏桌在吃山大厅的中央位置,可容纳 12 个人一起使用,桌面配备不同插孔的插座,为电脑学习和手机游戏提供源源不断的能量。一侧的原木墙上有四块软木板,上面贴满了来自不同地方的旅客写下关于自己和吃山的故事。另一侧的自助酒水吧台则满足了夜晚微醺的精神需求。
The triangular game table, located in the center of the Yummyhill Hostel lobby, can accommodate up to 12 people simultaneously. It is equipped with sockets for various devices, providing continuous energy for computers and smartphones. One side of the wooden wall features four corkboards filled with stories written by travelers from different places about themselves and Yummyhill Hostel. On the other side, a self-service beverage bar caters to evening leisure needs.
▲“多功能三角游戏桌”©吃山
▲”Multi-functional Triangular Game Table” © Yummyhill Hostel
▲“自助酒水吧台”©宛芹 “Self-Service Beverage Bar” © Wan Qin
在靠近长江的一端打开一个内阳台,为完全独立的旅店创造一个亲近户外的空间,植物与懒人沙发随意放置,营造出一种悠然自得的休憩氛围。在这片宁静而开阔的空间里,你可以随意找个静谧的角落,任由思绪漫无边际地游走,享受片刻的放空与发呆;在这里,每个人都能找到属于自己的小小舒适圈,让心灵得以真正的放松。阳台中段旁是一个拥有专属隔音设计的独立游戏屋,尽情玩耍,肆意欢笑,无需担心影响到其他旅客。
At the end facing the Yangtze River, a semi-open balcony creates an intimate outdoor space for this independent hostel. Plants and beanbag chairs are placed freely, fostering a laid-back atmosphere. In this quiet and open space, guests can find a serene corner to let their thoughts wander and enjoy a moment of relaxation and daydreaming. Here, everyone can discover their personal comfort zone for true mental relaxation. In the middle section of the balcony is a soundproof independent game room, allowing guests to play and laugh freely without worrying about disturbing others.
▲“花园阳台”©宛芹 “Garden Balcony” © Wan Qin
▲“独立游戏屋”©吃山 “Independent Game Room” © Yummyhill Hostel
05 冥想室
05 Meditation Room
一个锥状黑色块悬浮在休息区中央,救赎之塔塔尖向下,不去祈求上天的恩赐,而是鼓励凡事靠自己向下救赎的态度,本着吃好睡好就是救赎的初衷,为旅客提供一个私密独处的空间,可以静下心来与自我对话,也可以透过十字架观察外面的人与风景。
A black cone-shaped block is suspended in the center of the lounge area, symbolizing the “Tower of Redemption.” Its tip points downward, encouraging a self-reliant approach rather than seeking blessings from above. Reflecting the philosophy that good food and restful sleep bring redemption, this private space allows travelers to introspect and observe the world through a cross-shaped opening.
▲“救赎之塔” ©宛芹 “Tower of Redemption” © Wan Qin
▲©宛芹 ©Wan Qin
▲冥想室内 ©吃山 Meditation Room Interior © Yummyhill Hostel
06 自习区
06 Study Area
在吃山你可以向外观,将自己打开与人交流,也能包容向内求,与内心对话。自习区以木制板作为隔离,每个人都有相对独立的小空间。
At Yummyhill Hostel, you can look outward to connect with others or turn inward to communicate with yourself. The study area, designed with wooden partitions, provides each individual with a relatively private space.
▲“安静独处的学习空间”©吃山 “Quiet and Private Study Spaces” © Yummyhill Hostel
07 专属化妆间
07 Exclusive Makeup Room
打破传统的公共卫生间泛化的用户需求观念,我们为女性旅客设计了独立的化妆间,配备了免费使用的吹风机,以满足日常打理发型的需要,还细心准备了棉签和化妆棉,这一空间不仅是对女性日常梳妆需求的回应,更是对她们平等权利的肯定。
Breaking traditional notions of public restroom design, an independent makeup room has been created for female travelers. It includes complimentary hairdryers to meet daily grooming needs and thoughtfully provides cotton swabs and makeup pads. This space not only addresses the daily needs of women but also affirms their equal rights with respect and attention.
▲“女性尊重 — 跨一步的设计体现平等”©吃山
▲”Respect for Women — Thoughtful Design for Equality” © Yummyhill Hostel
▲化妆间 ©吃山 Makeup Room © Yummyhill Hostel
08 各种房间——不同的居住空间与细节
08 Various Rooms — Diverse Accommodation and Details
▲功能轴测图-非公区 ©未见筑 Functional Axonometric Diagram – Non-public Area ©Welive
在房间设计上,我们并未一味追求空间利用率的极致,而是将旅客的舒适体验放在首位。在确保每位旅客都能享受到宽敞与自在的同时,我们精心规划了多种不同人数的房间配置。每一种房型都旨在满足不同旅客的需求与偏好。旅行不仅是身体的迁徙,更是心灵的放松与探索,因此,在房间的布局与装饰上,我们力求营造出一个既私密又开放的居住空间,让每一位旅客都能在这里找到属于自己的小天地。
In room design, the focus is not solely on maximizing space utilization but on prioritizing guest comfort. Various room types are carefully planned to accommodate different travelers’ needs and preferences, ensuring spaciousness and ease. Beyond physical migration, travel is also about mental relaxation and exploration. Thus, the room layouts and decorations aim to create a space that is both private and open, allowing each guest to find their haven for rest and discovery.
▲“女生主题房——梦境”©宛芹 “Women’s Themed Room — Dreamscape” © Wan Qin
▲©吃山
▲女生 4 人间 ©宛芹 Women’s Four-Bed©Wan Qin
▲“男生主题房——时空隧道”©宛芹 “Men’s Themed Room — Time Tunnel” © Wan Qin
▲“标准四人间、六人间、十人间”©宛芹 Standard Four-Bed, Six-Bed, and Ten-Bed Rooms © Wan Qin
▲©吃山
▲“独立床位房” ©宛芹 “Independent Bed Units” © Wan Qin
细部设计
Detail Design
/
▲细部设计 ©未见筑 Detail Design©Welive
对于旅店设计,每一个细节都承载着提升旅客体验的重任。如找到最适合自己睡觉习惯的枕头更换区;四人间可以走到上铺而不是爬上去的楼梯踏步;独立床位专属新风口;走廊的鞋柜与换鞋座位;带有充电插座的储物隔间;男女分区的晾晒间;当代艺术家的作品等等。这些细节设计,虽然看似微不足道,却共同构成了一个温馨、舒适且充满乐趣的住宿环境,它们在旅客心中汇成两个字“体贴”。
Every detail in the hostel is designed to enhance the guest experience. Examples include a pillow exchange area to suit different sleeping preferences, stair-like steps leading to upper bunks in four-person rooms, individual ventilation outlets for independent beds, hallway shoe cabinets with seating, storage compartments with charging ports, gender-separated drying areas, and works by contemporary artists.Though seemingly minor, these details collectively create a warm, comfortable, and enjoyable lodging environment that guests would describe in one word: “thoughtful.”
Project Drawings
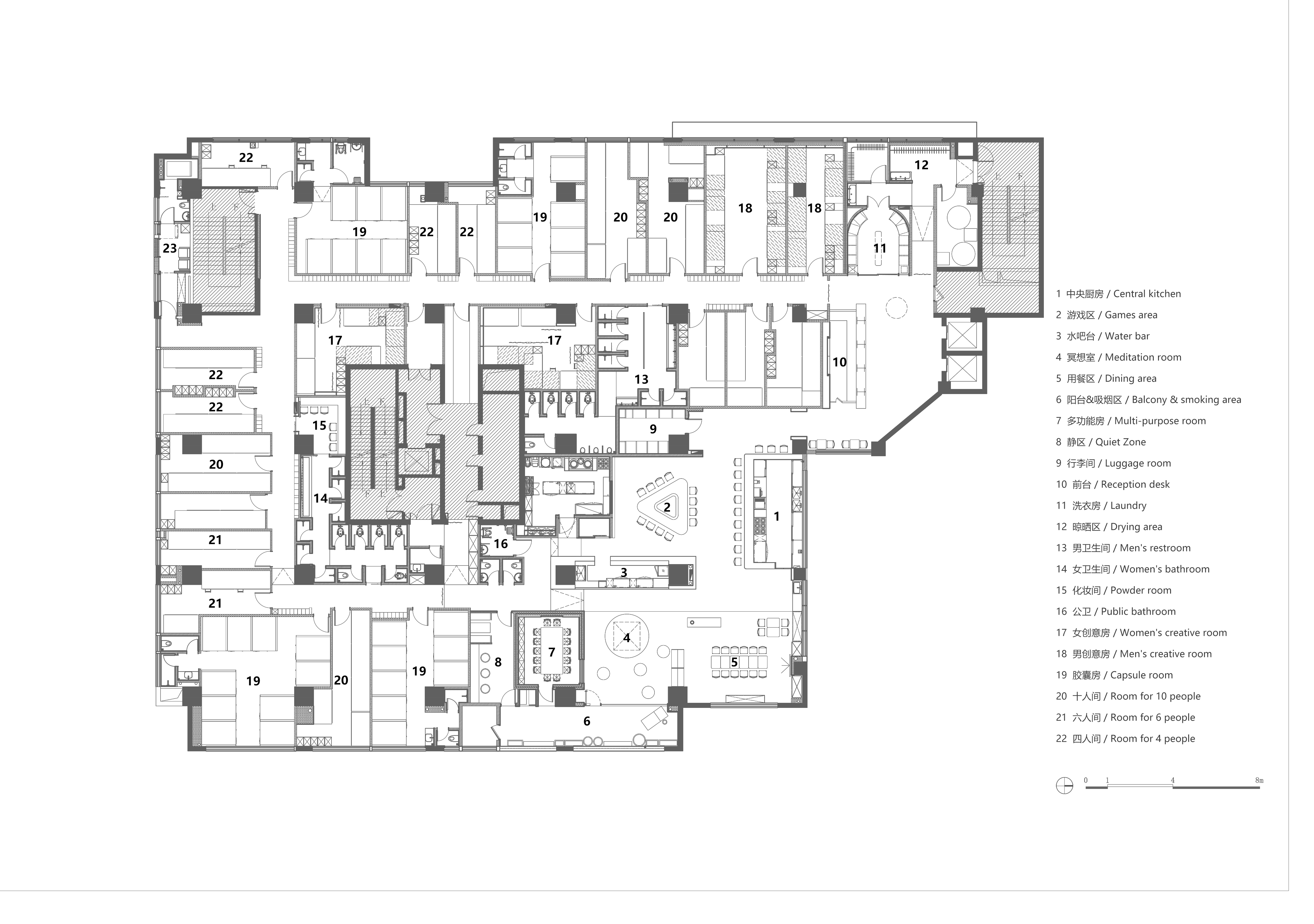
▲平面图 ©未见筑 Flat Plan ©Welive
▲轴测图 ©未见筑 Axonometric Diagram©Welive
▲中央厨房立面 ©未见筑 Central Kitchen Elevation©Welive
▲冥想室剖面 ©未见筑 Meditation Room Section©Welive
项目信息——
PROJECT INFO
项目名称:吃山 02 救赎青年旅店
项目地点:重庆市渝中区两路口
主创设计师:李未韬、李博
设计团队:邓林、张智睿、张照鑫
室内施工图设计:重庆索引几何装饰工程设计有限公司
插画师:meei
灯光设计:袁有无
VI 设计:香蕉黑洞(重庆)品牌设计有限公司
摄影:宛芹
施工单位:重庆市凡花饰景装饰工程有限公司
设计时间:2023 年
竣工时间:2024 年
室内面积:1700sqm
Project Name: Yummyhill Hostel 02 Redemption Youth Hostel
Location: Lianglukou, Yuzhong District, Chongqing, China
Lead Designers: Li Weitao, Li Bo
Design Team: Deng Lin, Zhang Zhirui, Zhang Zhaoxin
Interior Construction Drawing Design: Chongqing Index Geometry Decoration Engineering Design Co., Ltd.
Illustrator: Meei
Lighting Design: Yuan Youwu
VI Design: Banana Black Hole (Chongqing) Brand Design Co., Ltd.
Photography: Wan Qin
Construction Team: Chongqing Fanhuashijing Decoration Engineering Co., Ltd.
Design Period: 2023
Completion Date: 2024
Interior Area: 1700 sqm
客服
消息
收藏
下载
最近























































