查看完整案例

收藏

下载
该私人客户的需求是为Řevnice小学的学生们设计一座体育馆,既供课后运动俱乐部使用,也能服务整个城市社区。体育馆的选址位于原网球场所在的地块,地处新校区附属建筑和Lidový dům(社区会馆)之间。这个布局形成了一个校园综合体,包括体育馆和毗邻的田径跑道。
The private client’s brief was to design a sports hall for the pupils of the Řevnice elementary school, for after-school sports clubs, and for use by the entire city community. The designated site for the hall was the area of former tennis courts, situated on a plot between the new school annex and the Lidový dům (Community House). This resulted in the creation of a school campus with a hall and a neighboring athletic track within the school grounds.
▼项目概览,overview of the project ©Alex Shoots Buildings
▼项目外观,exterior of the project ©Alex Shoots Buildings
体育馆的外部尺寸为45x25x10米,需要巧妙地安置在Školní街这一以住宅为主的密集区域内,尽量减少对周边环境的影响。为此,设计采用了圆角结构,大幅降低了建筑在视觉上的体量感。此外,周围的建筑多配有附属结构、阳台和凉亭,这些元素在视觉上“分解”了建筑的整体体量,使其更自然地融入环境。
▼草图,sketch ©Grido architekti
The structure of the hall, with minimal external dimensions of 45x25x10 meters, needed to be placed within a dense, predominantly residential area on Školní Street in such a way as to minimize disruption. For this reason, rounded corners were chosen, which significantly reduced the perceived volume. Additionally, most buildings in the vicinity feature annexes, loggias, and pergolas, which visually “dissolve” their mass into the surrounding space.
▼设计采用了圆角结构,rounded corners were chosen ©Alex Shoots Buildings
▼使建筑更自然地融入环境,
visually “dissolve” the building into the surrounding space ©Alex Shoots Buildings
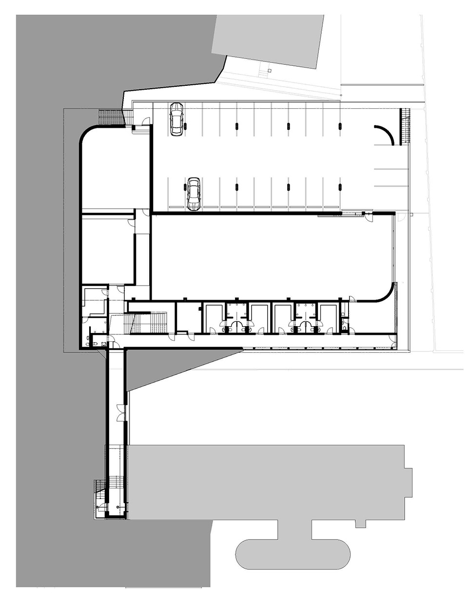
体育馆的街道入口由服务翼楼的位置决定。服务翼楼位于体育馆东侧,不仅避免遮挡小学低年级教室的视线,还拉开了体育馆与学校的距离,满足卫生和安全标准的要求。这种布局还优化了连接走廊的长度。服务翼楼内设置了所有更衣室、俱乐部室和锅炉房。入口区域通过一座宽敞的阶梯式座位与外部连接,同时提供了眺望Brdy山的美景。整个空间设计没有采用悬挂式天花板,而是将技术设备直接暴露在上方。
▼剖透视,perspective section ©Grido architekti
The entrance to the hall from the street is defined by the placement of the service wing. This wing is positioned to the east of the hall to avoid obstructing the views from the lower-grade classrooms of the elementary school, and at the same time, it pushes the hall further away from the school to meet hygiene standards. This placement also benefits the length of the connecting corridor. At this level, all the locker rooms, along with a clubroom and boiler room, are located. The entrance spaces are connected by a wide seating staircase, offering views of the Brdy hills. The space is designed without suspended ceilings, with exposed technology visible.
▼室内空间,indoor space ©Alex Shoots Buildings
▼室内空间,indoor space ©Alex Shoots Buildings
体育馆内部可以通过带不透明下半部分的网分隔成三个独立的小型运动场。每个运动场都可以直接从走廊进入,避免相互干扰。此外,每个运动场都配备了独立的上下观众席和储物空间,主设备室则位于中心位置,便于三处运动场共同使用,确保功能性和便利性。体育馆的照明设计采用了“巴西利卡风格”的连续顶窗照明,顶窗位于桁架高度,提供柔和均匀的自然漫射光。外部的垂直百叶窗进一步优化了光线质量。
▼剖透视,perspective section ©Grido architekti
The hall can be divided using nets with an opaque lower section into three smaller gymnasiums. Each gymnasium can be accessed directly from the corridor to avoid disrupting activities in the other spaces. Each gymnasium has its own lower and upper seating areas and storage. The main equipment room is positioned to allow access from all three gymnasiums. The lighting is provided by continuous “basilica-style” light from an upper skylight at the height of the truss. The diffuse quality of the light is ensured by vertical exterior louvers.
▼采用了“巴西利卡风格”的连续顶窗照明,The lighting is provided by continuous “basilica-style” light from an upper skylight ©Alex Shoots Buildings
▼通过带不透明下半部分的网分隔, The hall can be divided using nets with an opaque lower section ©Alex Shoots Buildings
▼将设备直接暴露在天花板上,exposed technology visible ©Alex Shoots Buildings
▼光线由连续顶窗照射进内部空间,lights flood in through the upper skylight ©Alex Shoots Buildings
▼阶梯细部,steps detail ©Alex Shoots Buildings
▼傍晚景象,at dusk ©Alex Shoots Buildings
▼场地平面,site plan ©Grido architekti
▼地下室平面,underground floor plan ©Grido architekti
▼一层平面,ground floor plan ©Grido architekti
▼草图,sketch ©Grido architekti
Studio: Grido architekti
Author: Peter Sticzay-Gromski
Studio address: Vlkova 17, 130 00 Prague, Czech Republic
Co-author: Ján Horký
Design team: Sebastian Sticzay
Project location: Školní 1273/1273, 252 30 Řevnice
Project country: Czech Republic
Project year: 2020
Completion year: 2023
Built-up area: 2000 m²
Gross floor area: 3600 m²
Usable floor area: 3400 m²
Electricity: Luděk Široký
Engineering: Jan Šimůnek
客服
消息
收藏
下载
最近




























