查看完整案例

收藏

下载
佛中,“迦”寓意智慧、坚定。“迦境”亦代表内心坚定宁静,专注和聚焦于自己的目标和节奏,沉浸式享受当下的美好。菩提自性本空,明镜自性本净。置于净心之所,品味人生浮沉,而闲适自得,慢寻生活之美。本案迦境生活美学空间,设计师致力打造静心之所,将文化与空间巧妙结合,赋予空间多种文化属性,和谐呈现学礼、问雅、香茗、华裾等多元美学价值的文化之所。
结庐在人境,而无车马喧。穿过城市的喧嚣,有一小院藏于街市深处。步入其中
,可见迦境。
优雅极简的
造型,中国式复古红的门头,氤氲着古韵气息,配以悠然自得的禅意花境,在这里,时光仿佛放慢了脚步,让人沉醉于这份美好与宁静。
橱窗以苏州园林为设计灵感,果实累累的柿子树下,精美的华裾、茶器被巧妙置于月洞门的前景中,不仅是生动的文化产品展示,更透露出浓厚的文化底蕴,方寸之间见天地,内外互动间引起空间主人和体验者内心的情感共鸣。
移步室内,玄关处的一幅书法卷轴“心景”演绎空间主理人的理念,“迦于心、品于境,一心一迦境”侧墙以投影手法表达“迦境”品牌内涵。入门伊始,即以美为介,彰显生活态度。
穿过玄关左侧为新中式服装展示区,墙面大面留白,搭配屏风、花艺,衬托服饰之美,既古典韵味又现代时尚。两侧的半透纱幔,将服装区与活动区两区相隔,隔而不断,和谐统一。
过玄关右侧为多功能活动区。极具宋式美学禅意的胡桃木桌椅与复古优雅的吧台和谐相融,隐藏在天花板上的投影功能、吧台里的水吧功能,将生活美学和实用功能的完美呈现。这里既可品茶、待客,也可雅集、沙龙、培训。可以是茶台、吧台、工作区、沙龙区,也可以用餐、喝咖啡、看窗外发呆。
品茗
雅集
篆香 培训
插花
沙龙
活动区向内的月洞门区,亦是空间之眉眼。让人不禁轻移步履,欲往探幽。拾阶而上,一幅古韵悠长的《千里江山图》金箔屏风,让人穿越千年,在时光的浸润下滋养心田,品味宋式美学的精致与和谐。矮桌置炉,可插花、篆香、抚琴,可品茗、阅读、小叙。在从容欢喜自在间,独享一隅静谧,感受沉淀的充实。
从服装区踏石而上,过道尽头月光轻洒,光影扶疏,营造出宁静舒适的独特意境。
迦境【文化+生活美学空间】将传统文化与东方美学生活方式融合贯通,在迦境,琴棋书画诗酒花茶共融共生,“正、清、和、雅”之感不禁自来。
整体空间多采用陈列式表达方式,
体现东方美学素雅之美。
小院
小院
迦境,心境澄明,自在无忧。
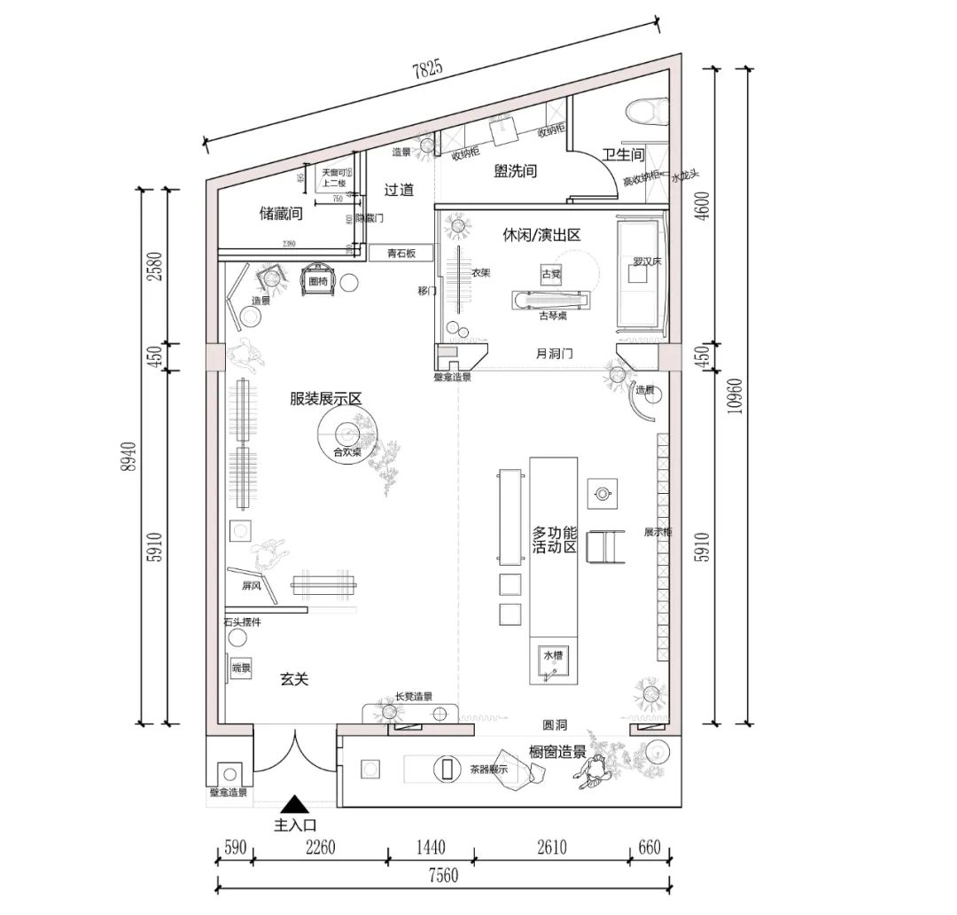
平面布局图
▼
Project Information
项目名称|迦境.文化+生活美学空间
项目地址|连云港
设计时间|2024年6月
主创设计|曾毅
设计团队|丁利飞、谢雨情、孟洁
摄影师|张先哲
About Designer
曾毅(曾祥虎)
连云港点度空间设计 创始人
好的空间一定是有灵魂、有故事的。他说:设计是倾听、是创新,而不是复制,想要在设计行业独当一面,那自己对“设计”必须要有独特的理念和见解,最终让设计回归生活!设计理念:设计就是将客户的需求和设计师的设计语言进行融合与表达。空间不能过度设计,将形、色、质、光控制的恰到好处。设计需基于施工造价基础之上,考虑落地性。
About Company
关于[点度空间设计]
连云港点度设计立足连云港,面向全国。致力于商业、办公、教育、文化、私宅等空间项目的室内设计、软装陈设一体化服务。提倡坚持设计以人为本,坚持设计关注自然、生态、环境,坚持做有故事、有温度的设计。公司坚持不断“走出去”理念,一直保持与“北上广深”等优秀设计公司联系,不定期组织设计师到国内外学习考察。公司倡导“港城也有好设计”,有志于通过团队共同努力,加强和同行业优秀设计机构交流与沟通,共同推动连云港室内设计行业发展。
客服
消息
收藏
下载
最近





































