查看完整案例

收藏

下载
在奶奶的眼里丫丫永远是那个小小的姑娘,但奶奶不知道的是,这个小小的姑娘从不曾打算离开她的身旁。
在东方卫视《梦想改造家》第 11 季的第 13 个项目中,我们迎来了一位孙女的委托,由奶奶独自带大的她也想守护奶奶的幸福晚年。
出手要为这个“相依为命的家”绘制温馨的未来图景的,正是陪伴“梦改”走到第十一年的“最暖设计师”史南桥。
本次要改造的项目位于湖南省株洲市,是一个 56㎡的小户型。委托人丫丫是 90 后,从小由奶奶独自抚养长大。如今的丫丫成为了一名小学教师,而奶奶也已 83 岁高龄,虽然患有冠心病、糖尿病、帕金森,还在坚持收集废品。丫丫深知这是奶奶把自己高质量抚养长大唯一的经济来源,也是奶奶的一种习惯,而为报答奶奶的养育之恩,丫丫希望能把这所老房子重新翻修,为奶奶和自己打造一个温暖舒适的小家。
在勘测过原房屋后,史南桥指出此次改造要解决房屋存在的多个问题:主要包括储物空间不足,尤其是高处储物柜对于身高约 150 厘米的孙女和奶奶来说难以利用;卫生间面积狭小,淋浴与蹲坑共处一室,且蹲坑设计高出地面十几厘米,导致奶奶多次摔倒骨折,同时卫生间缺乏洗漱台盆,日常洗漱需在厨房进行,且因身高限制,奶奶无法自行使用淋浴喷头和取用洗漱用品;厨房台面设计不合理,洗碗池位置偏低,使用不便,同时储物空间也显得捉襟见肘;洗衣机被放置在孙女卧室,不仅运行时噪音大,还导致卧室潮湿;此外,房屋墙面存在严重的墙皮脱落和开裂现象,阳台和卫生间还出现了漏水问题,阳台地面结构板面甚至有沉降迹象。
▲改造前
在设计师史南桥看来,此次改造在空间布局之外,适老化改造也是需要关注的重点。因此当着手设计时,史南桥老师怀揣着对不同年龄阶段需求的深刻理解与尊重,力求通过设计在满足奶奶与孙女各自生活需求的基础上,巧妙地促进祖孙之间的互动与情感交流,让这个家成为她们共同书写美好回忆、传承爱与温暖的港湾,每一处细节都凝聚着对这一特殊家庭组合的关怀与期待。
NO.1 优化布局
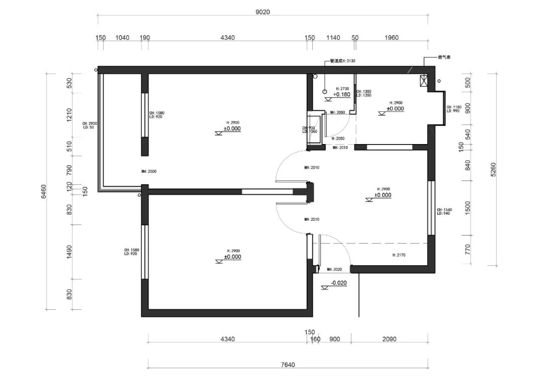
委托人家房子是传统的小厅大卧布局,为了解决这一首要难题,设计师保留两个卧室门洞之间的承重墙体不变,并对卧室之间隔墙进行部分拆除。在距离承重墙 1.5 米处的位置新建竖向隔墙,同时大胆使用斜切处理手法,用墙体分别将两个卧室的空间进行切割,以形成新的卧室门洞。之后,设计师细致地将整个客厅按照会客区、影音区、演奏区依次排布,形成一个全新的多功能复合空间。
▲原始平面图
在奶奶如厕及淋浴两大问题的解决上,设计师将原有卫生间改为单独的马桶间,而在马桶间左侧增设新的淋浴空间,并开设门洞,在奶奶卧室另一侧的阳台区域,设计师将部分非承重墙体进行拆除连通,从而形成生活阳台、卧室、淋浴间、卫生间于一体的套间。
▲平面图方案
在整个空间规划中,设计师都将无障碍性与安全性视为设计的核心,为此在室内规划了开阔流畅的通行路线,尽量避免狭窄通道和冗长的动线,以防止磕绊或摔倒的情况发生。同时,在奶奶的活动区域,设计师还特别设置了无障碍设施,确保她出入方便。此外,设计师还巧妙地运用了双洄游动线,既减少了奶奶日常使用卫生间所需的移动路线,又满足了孙女在客厅举办钢琴演奏聚会的需要。
NO.2 房屋安全
在设计改造过程中,设计师发现阳台存在部分沉降问题,且因选用系统窗以增强整体空间隔音效果而进一步加重了阳台负重,这对房屋结构构成了严重威胁。为此,设计师迅速与专业结构师合作,依据数据设计出贴合实际的钢结构加固方案,经过钢结构的妥善处理,解决了阳台沉降问题。
同时,在清拆阶段,设计师发现楼下房间存在多处漏水情况,为给奶奶营造一个舒适安静的睡眠环境,设计师还针对整个房屋进行了全面的防水、隔音、隔热及保温处理,从而全面提升了居住环境的质量。
NO.3 适老化
为了满足居住者的需求,室内采用了带有扶手且高度适宜起身的沙发与座椅,这些家具不仅提供了必要的支撑与助力,其可升降的扶手设计还能适应更多人的使用。
在材质选择上,优先考虑了环保、防滑且易于清洁的材料,同时地面铺设了防滑地砖和木地板以确保安全。
此外,收纳空间的设计也充分结合了业主的实际情况,通过定制大容量且分区明确的收纳柜,方便业主分类存放物品,有效减少了因寻找物品而带来的身体移动与劳累。
设计师在探访时注意到奶奶在吃饭、行走、洗澡、睡觉起身等多方面存在不便,因此专门投入大量时间,为奶奶精心挑选适老化辅助工具,并亲身体验康养中心的适老化设施,以确保奶奶日后的生活能更加方便与舒适。
NO.4 情感关怀
爷爷亲手制作的衣柜和储物柜,承载着满满的家庭回忆与深厚的亲情。那些厚实的衣柜柜门,曾无数次轻轻关闭,守护着家人的甜美梦境;储物柜的每一层隔板,也都曾堆满生活的琐碎与温馨。
为了延续这份情感,史南桥老师决定对这些老家具进行改造。经过重新设计,储物柜焕然一新,犹如优雅的老者穿上时尚新衣,更加贴合奶奶的使用需求。
衣柜也被巧妙改造,既保留了原有的韵味,又增添了几分灵动,镜面的设计仿佛在与爷爷进行一场穿越时空的温馨对话。这些家具不再仅仅是储物工具,而是成为了情感与现代生活完美融合的艺术品,继续陪伴着家人,让爷爷的爱与温暖在岁月的长河中永远流传。
NO.5 色彩搭配
在色彩搭配上,以柔和淡雅的色调为主,营造宁静舒缓的居住氛围,旨在缓解心理压力和视觉疲劳。同时,在装饰画、抱枕或窗帘等局部区域,巧妙点缀温暖鲜明的色彩元素,为空间增添活力与生机,以激发业主积极乐观的生活态度。
此外,考虑到白内障患者对光线的特殊需求,整体空间采用柔和均匀的基础照明,避免眩光和阴影对视线的干扰,并在重点区域配备了可调节亮度与角度的局部照明,确保业主在进行精细活动时拥有清晰明亮的视野。
NO.6 凝聚爱与温暖的新家
从平面布局到结构加固,从亲身体验到细节落地,设计师史南桥来回奔走现场、工厂与专业的养老机构之间,而施工团队也逐步克服了结构材料与返工带来的重重困难。这个曾经历经时光沉淀的小家也在设计师的魔法之下终于迎来最终的蜕变!
设计师将客厅与餐厅巧妙融合,打造出一个既多功能又通透的开放空间,整体色调以米白色和浅木色为主,营造出一种温馨而自然的氛围。
进门处的电视背景墙采用了通透的结构设计,并在其后方增设了废品柜,方便奶奶日后储存废品,同时配备了除菌除味机,以保持废品柜内的清洁与卫生。此外,还加入了电动压瓶机,既方便奶奶使用,又增加了储物空间。
针对原居住空间鞋柜储物量不足的问题,设计师特别设计了一整面可拉鞋柜,以满足丫丫和奶奶的使用需求。
而原爷爷亲手制作的衣柜,则以穿衣镜的形式重新呈现,既保留了原有的韵味,又增添了几分灵动,镜面的反射仿佛在诉说着与爷爷之间的温馨回忆。
在初次上门与丫丫交谈时,设计师史南桥了解到丫丫希望未来能有一个属于自己的钢琴区。然而,在设计过程中,钢琴所需的合适尺寸成为了一个棘手的问题。经过多次反复的推敲和考量,史南桥最终决定将钢琴放置在与客厅相接的空间内,这样既能满足丫丫演奏时的需求,又能适应不同场景下的使用。
客厅的背景墙采用了通透的结构设计,其后方被精心规划为钢琴区。这样的布局既在物理空间上实现了区域划分,又巧妙地保持了视觉上的连贯性和通透感。坐在客厅的人可以轻松地欣赏到钢琴区的优雅氛围,而弹奏钢琴时,演奏者也能与客厅、餐厅的家人进行愉快的互动交流,营造出温馨和谐的家居氛围。
整体空间以米白色与浅木色为主色调,营造出一种温馨而自然的氛围。客厅内摆放着可变化的沙发,其灵活的设计能够轻松适应从亲友聚会的多人座位到日常休闲的舒适角落等多种场景需求。
同时,搭配的可变换茶几不仅可作为日常使用的茶几,还能展开满足 8 人就餐,或者调整成适合书写阅读的书桌,满足工作、学习与休闲娱乐的多种功能。
改造后的卫生间增加了台盆区,并采用了三分离的布局,满足了多人同时使用的需求。
原厨房台面过低的问题也得到了解决,改造后的厨房台面高度适中,既方便奶奶操作,也满足了丫丫的使用需求。此外,洗烘一体机、蒸烤箱、洗碗机等家电的加入,大大减少了日后的工作量和烹饪需求。
孙女房则被打造成了一个集多功能储物、舒适备课与创意手工制作于一体的个性化榻榻米房间。整体风格简约而温馨,实用主义与年轻一代独特的审美与生活态度相得益彰。
房间内设置了可抽拉的手工桌和电脑桌,紧邻榻榻米形成了一个连贯的工作学习区域。
上方的墙面安装了整面洞洞板,用于挂放各种小物件,进一步拓展了收纳空间,保持了桌面的整洁。
2.4 米宽的书桌满足了不同场景下的使用需求。整面墙的衣柜、抽屉以及床背后的移门柜充分利用了墙面空间,提供了大容量且高效的储物解决方案,整体可划分为多个功能区域,以满足不同类型物品的收纳需求。
在构建奶奶的居住空间时,设计师充分融入了她的生活习惯、身体状况及审美偏好,以护理床为中心,精心打造了一个既安全便捷又舒适关怀的环境。
通过科学布局、选用适老化设施与家具,并营造温馨的氛围,设计师力求全方位提升奶奶的生活质量,为她提供全面的生活支持与身心呵护,让她在熟悉而安心的环境中优雅地享受晚年。
史南桥还对老家具储物柜进行了别具匠心的改造,使它们焕然一新,宛如时尚新衣赋予老者新的生命力,更加贴合奶奶的使用需求。
针对白内障患者对光线的特殊要求,设计师特别设计了多层次照明系统。同时,在床头和卫生间等关键位置安装了紧急呼叫按钮,采用大面板和鲜艳颜色设计,确保奶奶在紧急情况下能够迅速找到并按下按钮。
此外,设计师还充分利用阳台空间,将其打造成为一个集晾晒衣物、猫咪活动与休闲娱乐于一体的多功能区域。
这一设计充分考虑了奶奶的生活习惯与需求,在有限的空间内实现了功能的最大化整合,使阳台成为家中的温馨角落,为奶奶提供了一个既舒适便捷又充满生活趣味的休闲空间。
未来的道路上依然是丫丫与奶奶结伴前行,但这次陪伴他们的还有凝聚爱与温暖的新家。
项目信息:
项目名称:梦想改造家第十一季湖南株洲--相依为命的家
主案设计: 史南桥
设计团队: 王言午、朱吉时、王晨威、张雅洁
软装设计团队: 刘超、闫丽、刘丽娟
项目摄影:赵彬
单位地址:上海市长宁区杨宅路 258 号智尚源 5 楼高迪设计
完工时间:2024 年 12 月初
项目面积:56m²
史南桥
米兰理工大学环境设计硕士
台湾东海大学建筑系学士
台湾建筑设计师
上海高迪建筑工程设计有限公司创始人
处理个案数千,小户型及夹层空间的处理使他赢得“空间魔术师”的美誉。坚持一贯精细的空间切割手法,“小空间,大利用;大空间,大作为”。连续十一次接受电视台邀请完成公益改造项目,引起广泛社会投稿及。
客服
消息
收藏
下载
最近


















































