查看完整案例

收藏

下载
前叙 Foreword
本项目是枣庄文体中心的一部分,设计延续展现地域文化的理念。设计灵感来源于中国皮影戏和石榴籽的意向。设计师用竖向杆件组成椭圆形“钢罩”,和悬挂的光影天棚一起将几个功能体块包裹成一个整体的鲜明形象。
悬挂于天空的圆片,点缀着内部的街道与广场,如同阳光的画笔,将光影描成斑驳的画卷,洒落在地面和建筑之上,实现人与自然的生动联接。
竖向排列的杆件与大大小小的圆片犹如面纱,赋予建筑丰富的层次感,并随着一天中光线的流转不断变化,阳光穿梭间,呈现空间动态的美感,时光流转尽显生机与诗意。
项目概况
本项目是枣庄市民中心项目的一部分。枣庄力图打造一座具有国内一流水准的城市新区,而作为这一蓝图的重要组成部分,枣庄市民中心不仅是城市的公共活动平台,更承载着推动经济与文化融合发展的使命。
于城市新区轴线端的建筑群。
项目位于新城庐山路以东、金沙江路以南,处在新城中轴线的最南端,是中轴线的压轴建筑群。
市民文体中心各子项
本工程属于文体中心的一期工程。文体中心包括文化中心、地下商业、游泳馆及体育场、体育馆等四个子项目。
文化中心总平面布置
本项目包括文化中心、地下商业两部分。地上建筑由图书馆和城市规划馆、剧院、博物馆、广电大楼、活动中心五栋楼组成。各单体在地下一层连通;地下一层主要为停车库和各单体的辅助功能用房;广电大楼地下二层为整体建筑的能源中心和大楼的辅助功能。地下商业的地下一层为商业及配套用房,局部设地下二层,地下二层为停车库。
项目鸟瞰
项目指标
建设红线范围面积:211177 m²
总建筑面积:1259240 m²
地上建筑面积:94534 m²
地上建筑面积:164706 m²
容积率:0.45
/汲取石榴文化意向,塑造独特形态
枣庄因“冠世榴园”而享誉中外,这片土地孕育了独具魅力的石榴文化,成为城市独特的标志与象征。
建筑各组成部分示意
文化中心的设计从这一文化瑰宝中汲取灵感,以石榴籽晶体的形态为原型,将建筑与地方文化深度融合。
石榴籽天棚与广电中心
覆盖建筑的天棚采用大小不一的椭圆镂空形式,既实现了各功能空间的整体统一,又赋予建筑层次感,使之呈现出鲜明的地域特性与艺术气息。
石榴籽天棚与内街。设计不仅打造了丰富的建筑形态,更营造了新颖的“第五立面”。从俯视视角为城市增添别样景致,传递地域文化与建筑之美。
建筑局部鸟瞰
这些圆盘不仅在炎热的夏日为人们提供清凉的阴影,同时圆盘的光影变化赋予建筑立面一种鲜活的品质,体现着一天中光线的流转变幻,达成人与自然的紧密互动。
石榴籽天棚与建筑
/融入自然元素,打造灵动空间
用竖杆围成的椭圆形“钢罩”,其设计灵感来源于中国人崇尚的山水之美。竖向排列的杆形成轻盈剔透的质感,宛若飞瀑直下,赋予建筑灵动的美感,与周边的山水环境遥相呼应。
建筑形象
采用两层参数化设计的竖向格栅,随着观赏角度的不同,展现出千变万化的视觉效果,令人目不暇接。同时,设计巧妙地将光线与时间纳入建筑的演绎过程,日光下的纹理动感与夜晚的灯光变幻交相辉映,形成独特的立面效果。
“钢罩”与光影天棚
夜幕降临时,隐藏于两层外墙之间的射灯通过参数化控制,投射出多样的灯光效果。光影随着色彩的组合与漫射,赋予建筑流光溢彩的视觉冲击力,仿佛一颗璀璨的明珠镶嵌于城市中轴线的最南端,进一步强化了文体中心作为地标建筑的视觉存在与文化内涵。
项目夜景
围成椭圆形状的“钢罩”和镂空光影天棚产生的光影,穿过通透的大玻璃幕墙和顶棚,进入室内,投下灵动、迷离的光影,强化室内外的联系,增强了建筑的表现力。
室内空间
室内空间
剧场内部/BIM 协同设计
BIM 的过程可以涵盖前期的设计和概念方案直到后期的建筑建设、改扩建、拆迁以及循环利用。在本项目中,联创负责概念设计到竣工交接的完整阶段。联创的 BIM 工作实施重点基于扩初设计和施工图设计阶段。
BIM 协同设计重点阶段
本项目作为联创多部门协同工作的实践,在 BIM 实施交付过程中注重多形式的交付形式,例如提供二维和三维模型文件等较成熟的技术成果为主要形式。
剧场 BIM 模型
基于施工图阶段的 BIM 建模标准,应当包含丰富的细节信息。根据联创 BIM 设计标准,团队选择 LOD400 作为扩初阶段的设计标准,LOD500 为施工图阶段标准。
广电中心 BIM 模型/技术图纸
文化中心地下层平面图
文化中心总体一层平面图
文化中心总体二层平面图
建筑立面图
建筑立面图
建筑立面图
建筑立面图
地下室剖面图
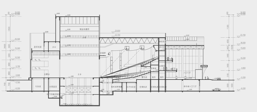
剧场剖面图
/结语
建筑不仅是功能的容器,更承载着社会责任与使命。建筑设计是一门将建筑与环境和谐共生的艺术,更是对地域历史与文脉的一种深刻回应,成为我们共同文化记忆的一部分。在枣庄文化中心项目中,“光影”成为设计的灵魂,犹如中国皮影戏般赋予空间诗意和灵动。通过对自然光线的巧妙运用,创造出令人叹为观止的视觉体验,光与影的交错为彼此交叠的空间注入了独特的生命力和文化内涵。
城市·地域文化|诗意空间
City·Regional Culture / Poetic Space
-END-
项目名称:枣庄文化中心
项目地点:山东 枣庄市
甲方单位:枣庄金声文化产业发展有限公司
设计单位:上海联创设计集团股份有限公司
方案团队:创新设计平台 无界工作室
施工图:上海联创 都市综合设计研究院
结构团队:上海联创 结构二部
机电团队:上海联创 机电二部
景观团队:上海联创景观设计部
BIM 团队:联创集团 BIM 研发中心
建筑摄影:MLEE 建筑摄影工作室
客服
消息
收藏
下载
最近












































