查看完整案例

收藏

下载
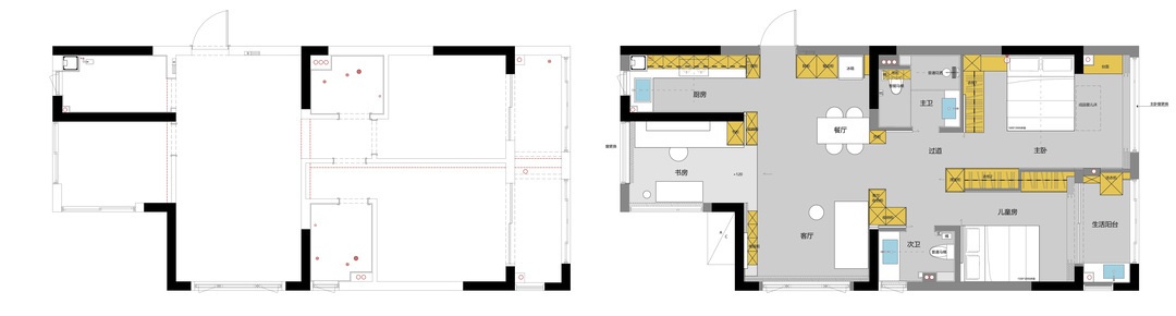
现场原始情况是一个85平隔了四个卧室的一个出租房,因为要自住所以要重新改造,客户需求三房,小孩子还没出生,所以儿童房前期可以作为次卧使用或者是备用衣帽间使用,希望房子能够开阔。
结合原始情况和业主需求,我们首先是将全屋的所有空间打开,将所有的墙体拆除,将空间结合功能进行新的安排,我们以三段法的方式将功能依次分布在这个一字型空间里,分别分为卧室(静区)、通道(服务型空间)、公共空间(动区),然后运用室内建筑思维在空间内置入不同的盒子,以形体作为空间的视觉点和不同功能空间的界面分割点,在不同空间望去会有不同的视觉体验。
客服
消息
收藏
下载
最近































