查看完整案例

收藏

下载

翻译
Architects:b720 Fermín Vázquez Arquitectos
Area:4509m²
Year:2022
Manufacturers:Balay,Bodelec,Cerámicas Calaf,Cortinsa,Cortizo,Malpesa (Exposed masonry and exterior paving),Molto Luce,Mosaics Planas,Moso,Orona Pecres,Roca,Simon,Tamiluz
Lead Architect:Fermín Vázquez
B720 Arquitectos Team:Peco Mulet, Pablo Garrido, Elisabet Usón, Luis Bellera, Carlos Maristany, Eduardo Palao
Promoter:Novainexa SL
Project Manager:Moro Ojeda y Asociados
Structural Engineering:BIS Structures
Mep Engineering:JG Ingenieros
Coordination:Dalmau + Morros
Environmental Management:Tubkal Ingeniería
Construction:Luis Parés Constructora
City:L'Hospitalet de Llobregat
Country:Spain
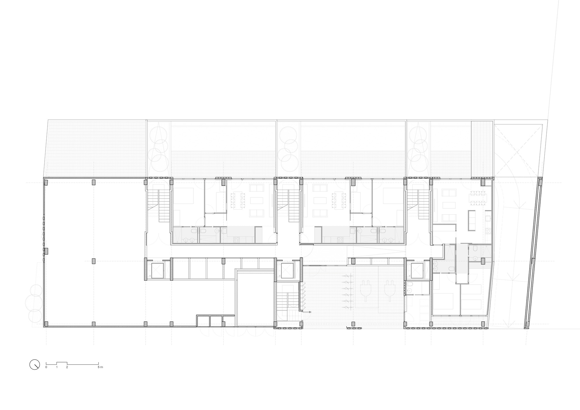
Text description provided by the architects. A humble "build to rent" building of 37 dwellings in L'Hospitalet de Llobregat, located in a peripheral area, in an urban fabric in constant transformation from an industrial to a residential area and with limited economic resources. The design choices were driven by the search for a solution that takes advantage of the conditions of the site in relation to orientation, sunlight and comfort of its occupants, while being rational and economical, easy to maintain and flexible to future adaptations.
The building consists of a basement, ground floor and five upper levels, staggered at the top to create terraces with suitable orientations in the attics, in a strategy of making the most of the roofs as a privileged part of the dwellings. The apartments are mostly pass-through, allowing cross ventilation between opposite facades.
The day areas benefit from the south-west orientation, enhanced by generous terraces as a projection and an extension of the living rooms, which are oriented towards the small public park in the inner yard. The strategy of centralizing the mechanical installations for the dwellings and the common spaces improves maintenance tasks and optimizes their efficiency.
The façade is composed of a durable, efficient and low-maintenance construction solution while using a material typical of the neighboring industrial buildings. The masonry is the main element, with which reliefs, textures, rigging and lattices are created, introducing color as a simple complementary element to make the whole complex more friendly and warm.
The façade facing Leonardo da Vinci Street, which is less exposed to sunlight and where most of the rooms are bedrooms, follows a rhythm of regular openings protected by external shutters, allowing privacy and interior illumination to be controlled, while the south-west façade is permeable, with large balconies for the living rooms and common areas and retractable sun protection awnings that are regulated both individually and centrally.
Project gallery
Project location
Address:L'Hospitalet de Llobregat, Spain
客服
消息
收藏
下载
最近























