查看完整案例

收藏

下载
鸟沢 TORISAWĀ 卓悦中心店的前身是重金打造的植庭寿司,空间结构及材料均有值得保留的部分。所以如室将设计重心放在了低强度的改造上,通过更活泼的设计元素和材料语言去降低原始空间的距离感,最终呈现兼顾日料的精致朴雅和人间烟火。
The predecessor of the TORISAWĀ Zhuoyue Center store was the high-end sushi restaurant Zhiting Sushi. The space structure and materials from the former restaurant have valuable elements that are worth preserving. Therefore, Ruhaus Studio focused the design on low-intensity renovations, using more lively design elements and material language to reduce the sense of distance in the original space. The final result presents a balance between the refined simplicity of Japanese cuisine and the warmth of everyday life.
▼室内概览,Interior overall view© 吕晓斌
空间策略 Space Strategy
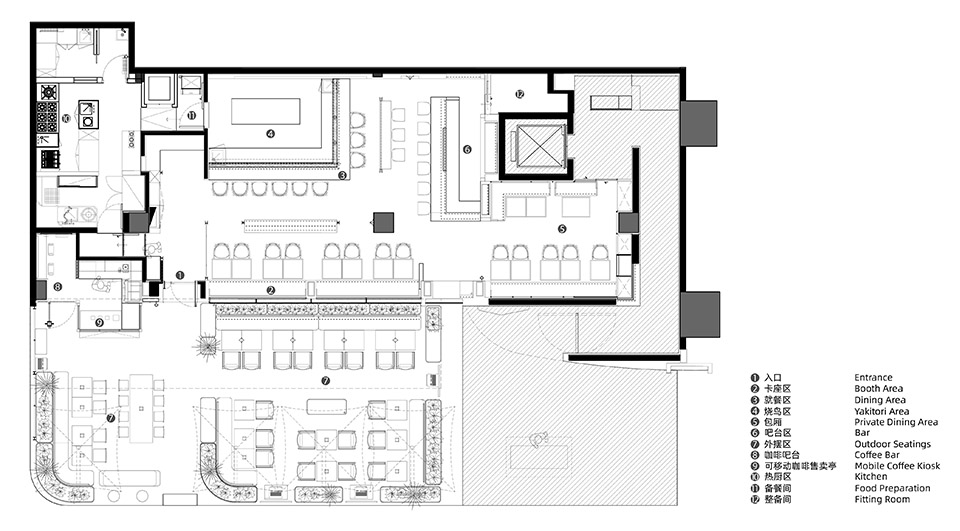
将原有的隐形后厨门调整为鸟沢的正门,减少过度的仪式感,并与外摆区直接相连,提高了店铺的亲切感和易达性;
The existing hidden kitchen door was transformed into the main entrance for TORISAWĀ, reducing excessive formality and directly connecting it to the outdoor seating area, thereby enhancing the store’s warmth and accessibility. The previous large door was repurposed as the exclusive entrance for the second-floor Zhiting Sushi, clearly distinguishing the circulation paths between the two store sections.
▼餐厅外观,exterior of the restaurant© 吕晓斌
▼餐厅入口,entrance of the restaurant© 吕晓斌
而原有的大门则成为二楼植藤的专属大门,将两家门店的动线做了明确的区分。原有的造型水景区改造为半包厢,保留原始的夯土墙面,通过木架和穿孔板的搭建还原日本町屋的要素,将原本质朴宁静的气质转为都市松弛。拆除原包厢的隔断墙体,将空间打通,与外摆和烤台形成渐进式的就餐场景。
▼餐厅平面图,plan©如室建筑设计事务所
The existing sculptural water feature area was transformed into a semi-private booth, while retaining the original rammed earth wall. Through the construction of wooden frames and perforated panels, elements of a traditional Japanese townhouse (machiya) were restored, shifting the previously serene and simple atmosphere to a more urban, relaxed vibe. The partition walls of the previous private booths were removed to open up the space, creating a seamless flow that connects the outdoor seating area and the grill station, forming a progressive dining experience.
▼半包厢空间,semi-private booth© 吕晓斌
檐廊语言
Eaves and Corridors
将原包厢的造型屋檐保留及延展成贯穿空间的檐廊语言,以锈板顶和朱红梁柱共同完成空间的搭建,建立低矮亲民的空间场域,与原有的戏剧性空间形成互文。
The exsiting booth’s stylized eaves were preserved and extended into an eaves corridor language running through the space. The rusted metal ceiling and vermillion beams and columns together shape the space, creating a low, approachable environment that forms an intertextual dialogue with the previous dramatic space.
▼贯穿空间的檐廊语言,extended into an eaves corridor language running through the space© 吕晓斌
▼以锈板顶和朱红梁柱共同完成空间的搭建,The rusted metal ceiling and vermillion beams and columns together shape the space© 吕晓斌
酒吧和烤台区在檐下以一片帘布相隔,同时形成一个半高的就餐桌,增强空间的趣味性。
The bar and grill area are separated by a curtain under the eaves, which simultaneously forms a semi-high dining table, enhancing the space’s sense of playfulness.
▼酒吧和烤台区在檐下以一片帘布相隔,The bar and grill area are separated by a curtain under the eaves© 吕晓斌
材料表达 Materials Expression
项目的材料选择希望以相对日常却不失质感的材料营造出空间的丰富性和烟火气息,使用杂色水磨石、锈铁、染色木板灯材料,以削弱原空间带来的距离感。
The material selection for the project aims to use relatively everyday yet textured materials (such as multicolored terrazzo, rusted iron, dyed wood planks) to create a sense of spatial richness and a lively atmosphere, softening the sense of distance imposed by the previous space.
▼材料细部,material detail© 吕晓斌
场景营造 Immersive Scene 烧鸟源于街头市井,我们希望将顾客的视线引导到烤台,将烧鸟的视觉体验做到最大;让烤台成为空间的主舞台,烧鸟师傅成为视觉核心,将热闹的烟火气带给顾客,用动态的呈现而不仅是静态的空间语言,让场所生动起来,如室希望营造出具体的场所,与具体的人相遇,产生具体的故事,以此抵抗时代的虚无。
Yakitori originated from the bustling streets, and we aim to guide customers’ attention to the grill station, maximizing the visual experience of yakitori. The grill station becomes the main stage of the space, with yakitori chefs as the visual core. Dynamic presentation, rather than static spatial language, makes the venue vibrant and engaging, brings a lively atmosphere to customers. Ruhaus Studio aims to create a tangible space where people can meet and real stories happen, thereby resisting the nihilism of the current time period.
▼酒吧区域,bar area© 吕晓斌
▼用餐区域,eating area© 吕晓斌
艺术植入 Art Implantation 如室尝试在空间中放置年轻艺术家或设计师的艺术品,增加空间的可读性,同时希望空间能传递出当下时代的气息。
Ruhaus Studio attempts to place artworks by young artists or designers within the space to enhance its readability, while also hoping that the space conveys the spirit of the current era.
▼灯具设计,lighting design© 吕晓斌
百鸟图
Bai Niao Tu —— Practical Application of AIGC
如室 ruhaus 内部孵化的艺术工作室 Demoore 结合 ai 创作了百鸟图(烧鸟食材解析),与甲方寻找的布艺商共同完成了浮拼的工艺。
The art studio Demoore, incubated within Ruhaus Studio, used artificial intelligence technology to create the “Bai Niao Tu”, which demonstrate yakitori ingredients. They also collaborated with the fabric company sought by the client to complete the floating patchwork technique.
▼百鸟图,”Bai Niao Tu”© 吕晓斌
▼轴测图,axonometric© 吕晓斌
项目名称:鸟沢
设计方:Ruhaus Studio
项目设计 & 完成年份:2024
主创及设计团队:王艺儒,朱丹丹,周敏,梁晓东,高帆,黄骏科
项目地址:广东省深圳市福田区卓悦中心 5 栋 A 座 1 层
建筑面积:174㎡
摄影版权:吕晓斌
客户:鸟沢
品牌:TIWUWORKS
灯具产品:瓦灯 Tile light
客服
消息
收藏
下载
最近































