查看完整案例

收藏

下载
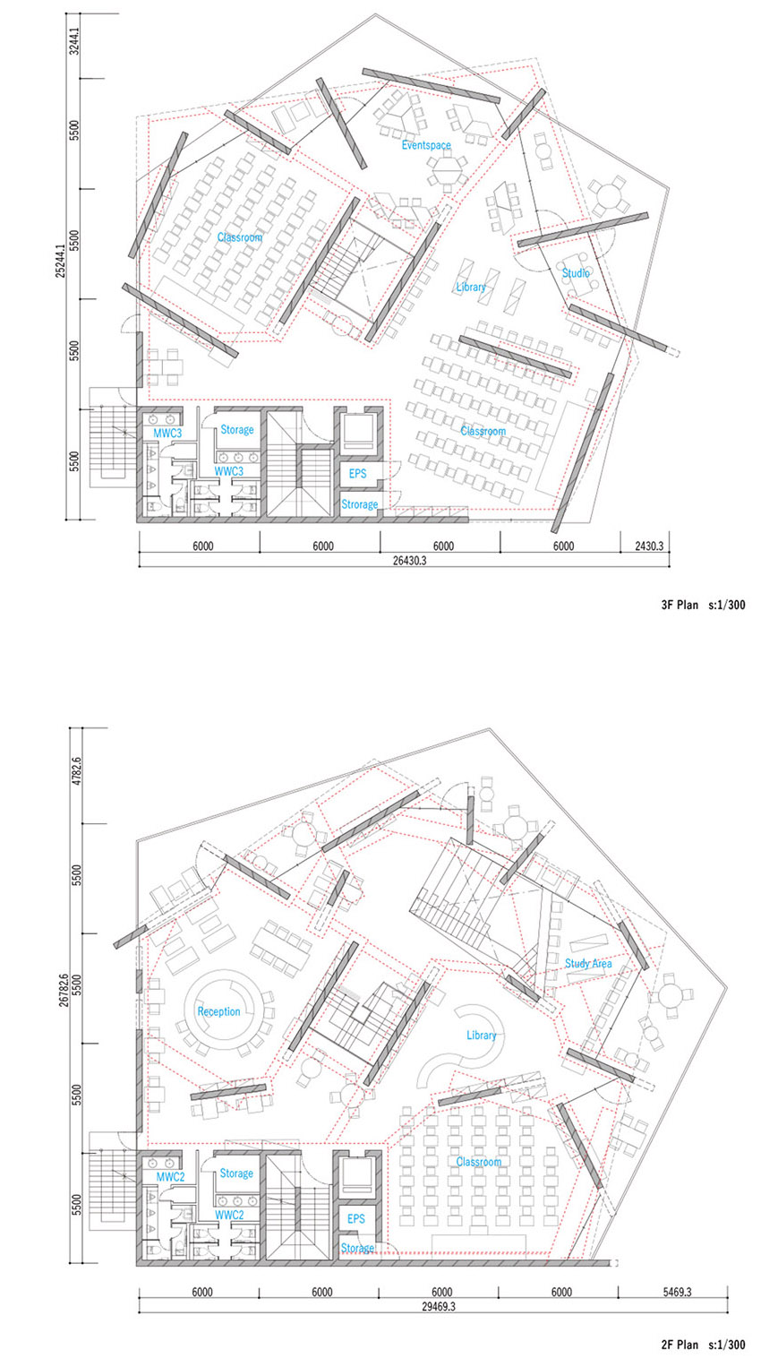
湘南理工大学附属高中的图书馆是为应对原有图书馆建筑老化而设计的。设计提出将图书馆与部分已老化的教室楼合并。该建筑的规划面积约为30米 x 26米,具有独特的五边形平面布局。建筑为三层结构,最高高度约为14米,楼层高度依次为3.5米、4.5米和5.5米,从一层到三层逐渐增高。最初,建筑师考虑将教室和图书馆根据功能不同进行分区,但最终决定在每一层都设置教室和图书馆,认为将不同功能空间融合在一起,有助于激发学生的潜力。教室采用开放式设计,结构的RC墙体在每一层的排列、尺寸和形态各不相同;上层墙体跨越下层的两面墙,以便均匀地将上层的负荷传递到下层。这种不规则的墙体结构创造了一种巢状建筑形式,多个空间相对松散地连接在一起,为学生提供了一个可以进行多种活动的环境。
The library building at Shonan Institute of Technology High School was planned in response to the aging of the original library building. We proposed to merge the library building with some of the classroom buildings, which were also deteriorating. The plan is approximately 30m x 26m and is characterized by a pentagonal plan shape. It is a three-story building with a maximum height of approximately 14 meters, and the floor heights are 3.5 meters, 4.5 meters, and 5.5 meters, in ascending order from the first floor, with higher heights on the upper floors. Initially, we considered the idea of zoning the classrooms and library according to their different functions, but we decided to place a classroom and a library on each floor, believing that the integration of the different functions would develop the potential of the students. The classrooms were designed in an open-school style, with the RC walls of the structure having a different arrangement, size, and shape on each floor, and the upper floor walls spanning two different walls on the lower floor, so that the load from the upper floor can be evenly transferred to the lower floor. This random wall structure allows for a nest-like architecture in which various places of residence are loosely connected, and in which high school students can engage in a variety of activities.
▼外观概览,appearance overview ©Shigeo Ogaw
▼建筑街景,street view of the building ©Shigeo Ogawa
▼建筑入口,entrance of the building ©Shigeo Ogawa
原有的图书馆和专业教室随着时间的推移逐渐老化,图书馆的使用率较低,成为一个问题。在新的设计中将教室与图书馆打通,设计成一个统一的空间,旨在增强学生与书籍之间的亲近感,从而提高图书馆的使用频率。此外,学生们反映校园内缺乏课外休闲的空间。为此,建筑被设计成一个供所有学生使用的场所。图书馆紧邻教室,学生可以在课间或放学后随时前来。上课时,图书馆保持空置,充当开放式教室之间的缓冲区。
The existing library and specialized classrooms had deteriorated over time, and the low utilization rate of the library had become a challenge. In this new plan, the classrooms and library were designed as a unified space to foster a closer relationship between students and books, with the goal of increasing library usage. Additionally, students had voiced concerns about the lack of spaces on campus where they could relax outside of class hours. In response to this, the building was designed as a place for all students to use. The library is located right next to the classrooms, providing a space where students can easily drop by during breaks or after school. During class hours, the library remains empty, functioning as a buffer space between the open classrooms.
▼一层学习空间,study room on the ground floor ©Shigeo Ogawa
▼入口处阶梯,staircase at the entrance ©Shigeo Ogawa
在设计这座集教室与图书馆于一体的新校舍时,摒弃了传统的封闭式教室布局,这种设计仅仅是为了管理学生。设计设想的是一个教室与图书馆互相启发、互相促进的环境,鼓励学生自发地进行发现、学习和建立关系。首先,去除了传统矩形教室的墙壁,创造了与外部空间的联系。然后,通过减少内外之间的界限,让建筑更加与外部环境互动,形成一个更加流动和开放的空间,激发整个校园的活力。设计不再拘泥于传统教室布局的单一方向,墙体的设计变得更加随机。在这个宽松、灵活的空间中,墙体柔和地围绕着教室,学生可以自由创造自己的空间,形成一种巢状的布局。
▼一层平面图,ground floor plan ©Fukei
▼二层及三层平面图,2nd floor and third floor plan ©Fukei
When designing a new school building that integrates classrooms and the library, we moved away from the traditional closed-off classroom that merely manages students. Instead, we envisioned an environment where the library and classrooms would mutually inspire each other, fostering spontaneous discoveries, learning, and relationships. First, we removed the walls of the rectangular classrooms to create a connection with the spaces outside. Next, by minimizing the boundaries between inside and outside and making the building more responsive to the external environment, we created a more fluid space that we believe will invigorate the entire campus. Freed from the uniform directional layout of traditional classroom planning, the walls became more random. In this generous environment, where walls gently enclose the classrooms, users are free to form their own spaces, creating a nest-like layout.
▼一层学习空间,study room on the ground floor ©Shigeo Ogawa
▼学习空间,study space ©Shigeo Ogawa
▼学习空间,study area ©Shigeo Ogawa
▼教室,classroom ©Shigeo Ogawa
▼教室,classroom ©Shigeo Ogawa
▼楼梯间,staircase ©Shigeo Ogawa
在设计过程中,建筑师与高中生和教师举行了多次研讨会,分享设计思路,讨论图书馆的新功能。图书馆不仅被用作阅览空间,还作为画廊和展览空间使用。在建设期间,图书馆也成为了进阶学习的重要资源,得到了积极利用。学生们与大学生的互动,推动了专业领域的深度学习,这是过去较为有限的。此外,在开放学校活动中,还举行了面向外部观众的讲座,学生主导的活动和创意不断涌现。建筑师希望,这个空间不仅能促进学生之间的联系,还能成为一个面向本地社区的新型学习和交流平台。
During the design period, we held numerous workshops with high school students and teachers, sharing the process, including the new ways the library would be used. The library has also been utilized as a gallery space and, even during the construction period, it has been actively used as a resource for progressive learning. Opportunities for deeper understanding in specialized fields have emerged through interactions with university students, which had previously been limited. Additionally, during open school events, lectures for external audiences were held, and ideas for student-led activities and operations are being generated daily. We hope that this space will not only foster new connections among students on campus but also evolve into a new learning environment open to the local community.
▼夜景,night view ©Shigeo Ogawa
▼模型,model ©Fukei
▼剖面,section ©Fukei
客服
消息
收藏
下载
最近




























