查看完整案例

收藏

下载
2020 年初春,我的一位法国女同学突然找到我,说她老公在酒吧通过打架认识的一起玩音乐的哥们想找人设计一间咖啡馆,要不要见面聊一聊,于是我便认识了 goood 的主理人 HAO 和子杰。
goood 是一家年轻的平面设计工作室,他们不仅持续输出着优秀的平面设计作品,也长期为平面设计学生提供专业且平价的 Riso 印刷(一种基于孔板印刷原理的印刷方式,由于其丰富鲜艳的油墨色彩以及印刷过程中的不确定性被设计师以及插画师所喜爱)服务。HAO 和子杰也多次作为 abC 书展、TDC 海报展的志愿者默默支持着自己的行业。对于这次的全新空间设计,二位主理人希望在满足工作室和工坊的基本功能上,进一步增加咖啡(聚会)和商店(展览)的功能。
goood is a young graphic design studio that not only produces outstanding design works but also provides professional and affordable Riso printing services (a stencil printing method beloved by designers and illustrators for its vibrant ink colors and the unpredictability of the process) for graphic design students. HAO and Zijie have also frequently volunteered at events like the abC Art Book Fair and the TDC Poster Exhibition, quietly supporting the industry they’re a part of. For this new space design project, they hoped to retain the basic functions of a studio and workshop while adding features for a café (gathering space) and a shop (exhibition area).
▼入口,entrance©金伟琦
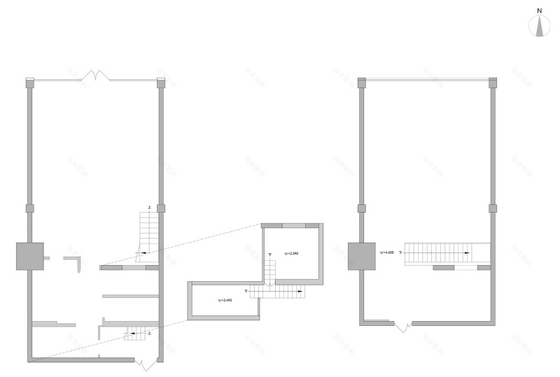
goood 的新场地位于百子湾区域内一座居民小区的底商,曾经是一家宠物医院。空间共两层,平面整体呈开间小而进深大的长方形。空间靠外的一半方正开敞,这里曾是宠物医院的接待厅,通往二楼的楼梯也设置在这里。而靠里的另一半设有支撑 20 层居民楼的大尺寸结构柱,以及几道不规则的剪力墙。曾经的租客在这里划分了几间大小不一的办公室,甚至还利用四米出头的层高分别在两处做了不同高度的夹层,把一切能占用的空间都占得满满当当。再加之门头面北无阳光直射,导致与前场相比,店面的深处遮挡严重,不那么痛快。
The new goood venue is located on the ground floor of a residential complex in the Baiziwan area. It was previously a pet hospital. The space spans two floors and has a narrow rectangular layout with a small width and great depth. The front half is a square, open area, which used to serve as the reception hall for the pet hospital. The staircase leading to the second floor is also located here. The back half, however, contains large structural columns supporting the 20-story residential building above, as well as several irregular shear walls. The previous tenants had divided this area into several offices of varying sizes and even installed mezzanine levels of different heights in two sections, fully utilizing every bit of space. However, the lack of direct sunlight due to its north-facing entrance resulted in the deeper parts of the shop being dim and uninviting compared to the front.
▼室内概览,overview of the indoor space©金伟琦
▼嵌入墙体的结构,structure embedded in the wall©金伟琦
在空间改造项目中,我们追求既充分满足功能需求,又与结构基础本身浑然一体的设计成果。在拆除后半空间的所有分隔墙与夹层后,我们发现暴露出的这些不规则剪力墙原来是建筑本身预留的楼梯井。原本一二层通高的楼梯井被租客装修封堵起来做了夹层,又在较为开敞的前场切除部分钢结构楼板装了楼梯。我们决定将楼梯恢复至应有的位置,并修补被切除的楼板,从根源上结束这种拆东墙补西墙的情况。
In our renovation project, we aimed to create a design that seamlessly integrated functionality with the existing structure. After removing all partitions and mezzanines in the back half of the space, we discovered that the irregular shear walls were originally stairwells designed into the building. The previous tenants had sealed these stairwells to create mezzanines and installed a staircase in the open front area after cutting through part of the steel floor structure. We decided to restore the staircase to its original position and repair the cut-out floor to resolve this patchwork approach at its source.
▼吧台区域,bar area©金伟琦
▼包厢区域,private room area©金伟琦
接下来,我们尝试了几个版本的功能平面方案。把需要视野和布置座椅的咖啡空间设置在前场开敞的区域、商店和展览功能与二楼工作室联动,结合着楼梯间设置在后场,似乎是合理的思路,但这样的空间效果无法完全打动我们自己。一次与 HAO 和子杰的线下见面扩宽了我们的空间设计思路。当时,他们正在设计 LOGO 上的英文字体。与更加关注空间的“空”的我们不同,在这项工作中他们更关注文字这一“实”的部分的美感和构成。在屏幕上,他们把文字扩大,像推敲图形一样推敲笔划的粗细、形态和笔划间的关系。他们设计的 LOGO 字体就是在这样的过程中从简单蜕变为简洁。
Next, we experimented with several layout options. It seemed logical to place the café in the open front area where seating could be arranged, while the shop and exhibition functions could integrate with the second-floor studio, with the stairwell located at the back. However, this spatial arrangement failed to satisfy us entirely. A meeting with HAO and Zijie broadened our design perspective. At the time, they were designing the English typography for their logo. Unlike us, who were more focused on the “emptiness” of space, they emphasized the beauty and composition of the “solid” elements—the text. On their screen, they magnified the letters, carefully refining the thickness, shape, and relationships between strokes. Through this process, their logo typography evolved from simplistic to elegant.
▼隐形门,invisible door©金伟琦
受到这种设计思路的影响,我们也希望 goood 空间本身能够反映出类似的专业气质。我们首先在前场空旷的空间正中置入了以咖啡吧台为主的实体,将原本的空间等分为左右两个区域,并与楼梯间的体块留有一定距离。这样的布置不仅在功能上确保了吧台可同时服务两侧的空间,也在体感上中和了前后场空间上的不协调、不流畅的落差。两个实体的轮廓处理成了饱满的圆弧形,这使得人们在实体之间穿梭更加自然。在我们的想象中,这两个实体恰如被无限扩大的文字的两个笔划,营造出均匀、稳定、简洁的气场,就像 goood 的作品一样(仅个人观点不代表 goood 出品风格)。
Inspired by their design approach, we hoped the goood space would reflect a similar professional aesthetic. In the open front area, we placed a solid volume—a coffee bar—at the center, dividing the space equally into two areas and maintaining a certain distance from the stairwell. This arrangement ensured the bar could serve both sides functionally while mitigating the sense of spatial imbalance and discontinuity between the front and back areas. The outlines of the two volumes were treated with smooth curves, allowing people to move naturally between them. In our imagination, these two volumes resemble magnified strokes of typography, creating an even, stable, and clean atmosphere akin to the spirit of goood’s work (just our interpretation, not necessarily reflective of goood’s style).
▼金属旋转楼梯,metal spiral staircase©金伟琦
空间的骨骼和气质确定下来之后,空间的色调、材质、细部做法便有了明确的定位。一层空间整体以简洁的白色为主,但为了避免过度抽象,我们在两个“笔划”主体以及接近客座的区域使用最常见的易于打理的白色瓷砖为主要材料,让空间回归符合咖啡和商店这种日常幸福感的场景,也包含了对于平面设计中常见的格子纸的隐喻。两个体块内部及家具台面等更具功能化的部分,则使用色泽温暖的多层板制作。在一层的设计中,我们尽量控制设计的力度,只提供最朴素的形式,为两位平面设计师提供充足的画布。从楼梯间开始到达二层的 goood 工作室,我们则维持利落的功能性空间:仅将二层的消防喷淋、空调、新风、电气桥架及照明系统进行了整合,让这些必要的建筑设备整齐阵列在天花下,保持足够的秩序感。
With the spatial framework and character established, the color palette, materials, and detailed finishes naturally fell into place. The ground floor was kept predominantly white to maintain simplicity. To avoid excessive abstraction, we used common, easy-to-maintain white tiles on the two “stroke” elements and areas near the seating, creating a daily, joyful atmosphere befitting a café and shop. This choice also subtly references the grid paper often seen in graphic design. Functional elements like the interiors of the volumes and furniture surfaces were crafted from warm-toned plywood. We kept the design minimal on the ground floor, providing a simple canvas for the graphic designers to express their creativity. From the stairwell leading to the second-floor studio, the space maintained a clean and functional style: fire sprinklers, air conditioning, ventilation, electrical conduits, and lighting systems were neatly integrated into the ceiling, ensuring an orderly aesthetic.
▼走廊区域,corridor ©金伟琦
▼通道门,corridor door©金伟琦
2024 年中,在经历过两年的风波和筹备后,goood 空间最终正式营业。我们欣喜地看到空间能够容纳多元的摆设、书籍、展览和运营功能,主理人可以充分展示自我的风格。空间本身的设计感和体量感正逐渐消隐,内化为这里形形色色人们的一段快乐体验。
In mid-2024, after two years of challenges and preparation, the goood space officially opened. We were thrilled to see it accommodate diverse setups, books, exhibitions, and operational functions, allowing the founders to fully showcase their style. The design and spatial elements are gradually fading into the background, becoming part of the joyful experiences of the people frequenting the space.
▼工作室,studio©金伟琦
▼工作室,studio©金伟琦
▼卫生间,bathroom©金伟琦
▼夜晚外观,exterior at night©金伟琦
▼原始平面,original plan©设计秩序
▼平面图,plan©设计秩序
项目名称:goood 咖啡项目
地点:北京市百子湾西里 102 号 109
项目功能:咖啡、展览、商店及工作室
客户:goood
设计方:设计秩序
设计团队:蒋丽 董倩伶 黄采颐 冯晨
建筑面积:280m²
施工方:北京中盈宏安建筑装饰工程有限公司
摄影师:金伟琦
设计时间:2021.03-2021.11
施工时间:2022.03-2023.06
Project name:goood cafe
Location:Baiziwan, Chaoyang District, Beijing
Program:Commercial/Cultural/Office
Client:goood
Spatial Design:DesignOrderGroup
Design team:Jiangli DongQianling HuangCaiyi Fengchen
Gross Built Area:280m²
Construction Party:Beijing Zhongying Hongan Building Decoration Engineering Co., Ltd.
Photographer:Jin Weiqi
Design Period:2021.03-2021.11
Construction Period:2022.03-2023.06
客服
消息
收藏
下载
最近





















