查看完整案例

收藏

下载
瑞德设计
瑞德设计希望,该店不仅能作为高端智能电动汽车先行品牌极氪的立体视窗,激活禅城之心,赋予古城新貌,更能通过佛山文化符号与前沿科技展演的有机交融,成为唤醒文化记忆、拼合古老与新生的新型汽车展示中心和品牌精神传递基地。
瑞德设计
延续极氪品牌视觉基调,从醒狮表演仪式、色彩造型、舞蹈动作中抽取关键要素,进行在地文化的拆解与再译,通过岭南风情的抽象化诠释,强化极氪品牌在线下终端的识别度与传播度。
▲极氪中心·杭州星耀店独栋外立面夜景
© 瑞德设计
▲极氪中心·杭州星耀店独栋外立面日景
© 瑞德设计
项目缘起:
时空变奏,无界苏醒。
极氪中心,作为极氪品牌与消费者的重要连接点,担负着构建品牌形象、用户全生命周期管理、实现品牌战略的重要使命。
2023 年,极氪全球首家独栋【极氪中心·杭州星耀店】落成后,瑞德设计再次为极氪打造【极氪中心 · 佛山岭南 NOVA 店】,通过品牌精神与在地文化的深度融合,为未来汽车展示空间形态提供前瞻性的设计探索。
▲极氪中心·杭州星耀店独栋外立面
© 瑞德设计
概念锚点:唤醒场域,重塑记忆
极氪中心·佛山岭南 NOVA 店,是佛山首家极氪中心,位于佛山市禅城区祖庙商圈旺地,身处集购物、餐饮、娱乐、休闲于一体的大型购物中心【岭南站 NOVA】,连接广佛地铁祖庙站出口,毗邻著名历史文化景点【佛山祖庙】、延续岭南历史风貌的商业地标【岭南天地】等,拥有浓厚的休闲文旅氛围,坐享多元化客源与百万级流量。
▲西南向外立面© 瑞德设计
▲地处佛山核心商业区© 瑞德设计
▲毗邻佛山祖庙© 瑞德设计
瑞德设计希望,该店不仅能作为高端智能电动汽车先行品牌极氪的立体视窗,激活禅城之心,赋予古城新貌,更能通过佛山文化符号与前沿科技展演的有机交融,成为唤醒文化记忆、拼合古老与新生的新型汽车展示中心和品牌精神传递基地。
美学复调:
从[即刻]回眸,到[即刻]点睛
#[即刻]回眸
基于对人流视觉、车行视觉分析,瑞德设计观测到:建筑体的西南面,是过往人流的主要来向,也是行径车辆能够清晰注视门店的最佳方位。由此,将空间的主视觉面定于建筑体的西南方向。
▲通过玻璃幕墙,从外部可看到室内光影效果变幻
© 瑞德设计
▲二层落地通透玻璃
© 瑞德设计
作为人眼自然视物状态下的焦点,建筑体外立面由彩釉弧形落地玻璃打造。弧形曲线设计通过汇聚、承载内外光线,创造流动连续、富有层次的光影效果,加强空间的立体度与纵深感,使店面整体观感更具冲击性、吸引力。
▲外立面局部展示
© 瑞德设计
当观者走近店面,抬头仰视,可恰巧望见极氪 LOGO 标识,嵌于状若炯炯狮目的室内圆弧吊顶装置中央,强势捕捉视点,快速将品牌植入用户心智。
#[即刻]点睛
醒狮,是佛山地域文化的重要象征。瑞德设计将在地文化与品牌特质相融合,在延续极氪品牌[未来科技感]视觉基调的基础上,从醒狮表演仪式、色彩造型、舞蹈动作中抽取关键要素,并对其拆解与再译,使得福暖、吉祥等美好文化寓意贯穿其中,增添活力、生机、逸然的直观感知。
▲在地文化空间设计融合
© 瑞德设计
汽车展示区(Product Display Area),天花采取同心圆结构设计,呼应雄狮之眼,聚焦观者视线,逆转主入口固有格局的狭窄劣势,使其成为吸引用户驻足、激发探索欲求的第一吸引点。吊顶呈细腻纸艺质感,灵动穿透一楼、延伸至二楼,形似醒狮表演启动仪式中的“点睛之笔”,寓意美好、新奇的体验之旅的序幕。环形通顶树脂灯箱,可根据自然日照状态,或节日节庆主题,灵活变幻灯效,应时调节氛围。
▲汽车展示区
© 瑞德设计
▲汽车主展区天花造型
©瑞德设计
▲天花造型细节
© 瑞德设计
极氪极物区(ZEEKR Collection),基于传统醒狮表演中辅助舞者登高的梅花桩装置,提炼木桩彼此高低错落的动态走势,应用于摆放极氪品牌周边产品的展台设计。柱体采用磨砂亚克力通透材质,底部光束更显通体通透,丰富空间层次,增强空间体验的节奏感。
▲楼梯链接极氪极物区
© 瑞德设计
▲极氪极物区艺术装置
© 瑞德设计
极氪逸舍区(ZEEKR Lounge),整体色调采取醒狮舞美视效中的朱砂红、玉板白。吧台中岛选择悬浮结构,在满足舒适体验的同时,增添轻盈观感。球型吊灯陈设,流光悬坠于洽谈区,拟态作为表演道具的悬空绣球,营造岭南文化氛围,贴合温度、开放之品牌调性。
▲极氪逸舍区
© 瑞德设计
▲论坛区 Forum,长桌配置手机无线充电装置
© 瑞德设计
体验交叠:从[即刻]沉浸,到[即刻]分享
#[即刻]沉浸
室内空间根据品牌文化展示、产品-技术体验、圈层社群分享等功能性考量,在双层场域中进行区块化布局,为用户创造连贯流畅、层层递进的游览体验,跨层实现“A(Attention)-I(Interest)-D(Desire)-M(Memory)-A(Action)”完整闭环。
▲沉浸式布局
一层产品展示空间(Product Display Space),简而有力的设计语言,贯彻于车辆最佳摆放位、SEA 浩瀚智能进化体验架构展示、灯光系统的设计实践中,以还原产品细节,凸显技术感知。
© 瑞德设计
▲一层商场内部入口
© 瑞德设计
▲汽车展示及配置区
© 瑞德设计
衔接一、二层并发挥过渡作用的阶梯区,将易显呆板的钢架楼梯,进行艺术化处理:借助线的曲直疏密、形的虚实变化,依托交替与反复手法,延续纯粹而秩序的美感,自然引导用户动线,使其逐级而上、拾梯探索。
▲一层楼梯区
© 瑞德设计
▲楼梯过渡区
© 瑞德设计
#[即刻]分享
二层,即是用户体验空间(User Experience Space),为商务会议、私人小聚等场景提供解决方案。数簇沙发卡位,顺延落地窗落座,面朝祖庙所在方位,以科技、人文、自然的交汇点为立体布景,满足用户从开放、到私密的多元社交需求,促使品牌在目标圈层进行自发性传播。
▲极氪逸舍区沙发卡位
© 瑞德设计
项目图纸
▲一层平面图
© 瑞德设计
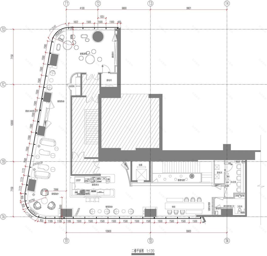
▲二层平面图
© 瑞德设计
▲外立面北立面
© 瑞德设计
▲外立面西立面
© 瑞德设计
▲外立面南立面
© 瑞德设计
项目信息
项目名称|极氪中心·佛山岭南 NOVA 店
项目业主|极氪 ZEEKR
项目类别|新能源汽车体验中心(展厅)
项目地址|中国 广东省佛山市 禅城区祖庙 9 号 NOVA 岭南站
项目面积|628m²
完工时间|2024.1
设计公司|瑞德设计
设计总监|吴展、王利刚
设计团队|肖文庆、林小霞、唐铭杰
摄影版权|瑞德设计
[极氪方]
资深设计总监|徐皓
设计负责人|徐震
本项目负责设计经理|郑文嵘
软装设计经理|周媛
暖通设计经理|郭怀云
标识 VI 设计|章大正
建设总监|李施
本项目负责建设经理|傅博
客服
消息
收藏
下载
最近








































