查看完整案例

收藏

下载
退化建筑从湖里区的写字楼搬到了老城区市中心的退化公园。
We moved from an office building in Huli to DVLN PARK in the center of Xiamen.
▼室内概览,overview of the indoor space ©邹训楷
▼室内概览,overview of the indoor space ©邹训楷
退化建筑的前身是一家纯粹的设计公司,写字楼已不符合现今退化建筑的理想工作状态 。我们更希望在工作时有更多生活气息,比如上班路上可以穿过一条小街,和一个老邻居打个招呼,会见到不同类型的人们在城市穿梭和工作。而不是一个只有单一动线的无趣的工作环境。
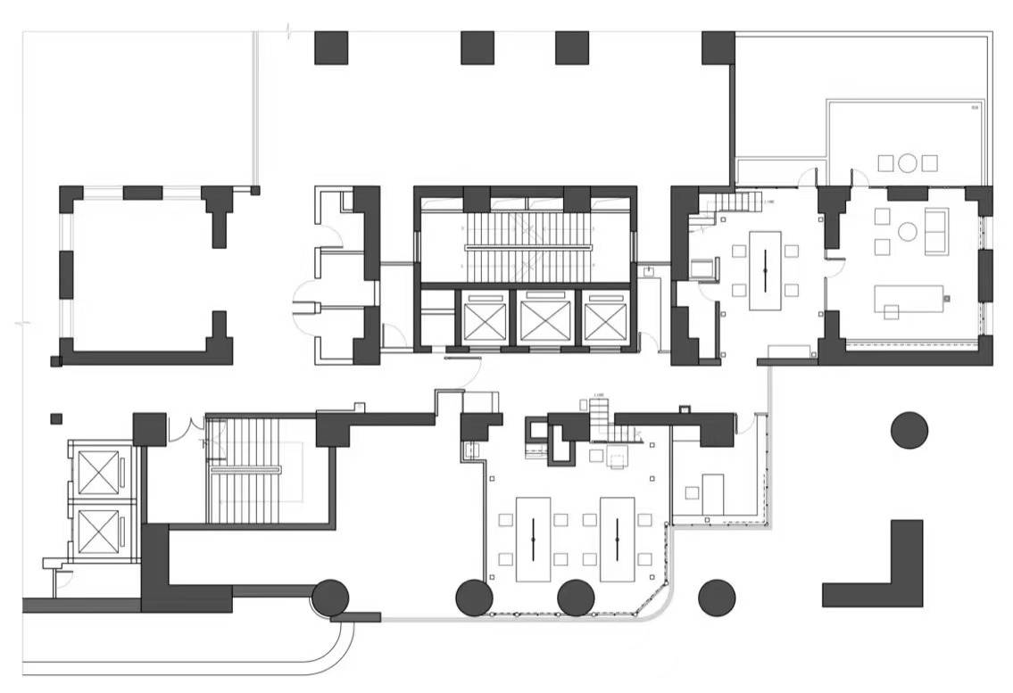
▼一层平面图,ground floor plan ©退化建筑
Devolution was a pure design company. However, the office building no longer meets the ideal working conditions of Devolution at present. We hope to have more elements of life at work, such as walking through a side street on the way to work, saying hello to an old neighbor, and seeing different types of people traveling and working in the city; rather than a boring work environment with only an efficient traffic flow.
▼新办公室更多地使用了木材,the new office uses more wood ©邹训楷
和之前的办公室相比,新办公室更多地使用了木材,并摒弃了白色。在保留这栋30年前建成的大楼原先界面的基础上,旧木材构建的结构增加了空间复杂性,错落的阶梯用于会议室和材料室。办公室整体亮度较之前更暗,具有更高的隐私性,藏在退化公园的一隅。
Compared with the previous office, the new office uses more wood and abandons the color white. On the basis of preserving the original interface of the 30-year-old building, the structure made of old timber increases the spatial complexity, and staggered stairs are used for conference rooms and material rooms. The overall brightness of the office is darker than before. And It is hidden in a corner of the park with higher privacy.
▼错落的阶梯,staggered stairs ©邹训楷
▼阶梯细部,stairs detail ©邹训楷
▼细部,detail ©邹训楷
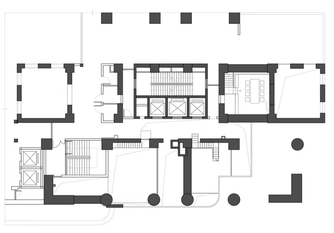
▼二层平面图,first floor plan ©退化建筑
▼办公室立面图,office elevation ©退化建筑
▼楼梯详图,staircase detail ©退化建筑
面积:400㎡
完工时间:2024年2月
施工方:EMCC结庐
摄影:邹训楷
Project Area: 400㎡
Project Time: February 2024
Photographer: Zou Xunkai
Construction Team: EMCC
客服
消息
收藏
下载
最近






















