查看完整案例

收藏

下载

翻译
Architects:SOHO Architects
Area:5000ft²
Year:2023
Photographs:Varun Gopal, Abin Biju
Manufacturers:Tostem
Lead Architect:Suhail A K
Landscape Consultant:IPE design workshop
Lighting Consutlant:Apta lightings
Structural Consulant:Streamline
Design Team:Nabil Nazar, Varun Gopa
City:Kannur
Country:India
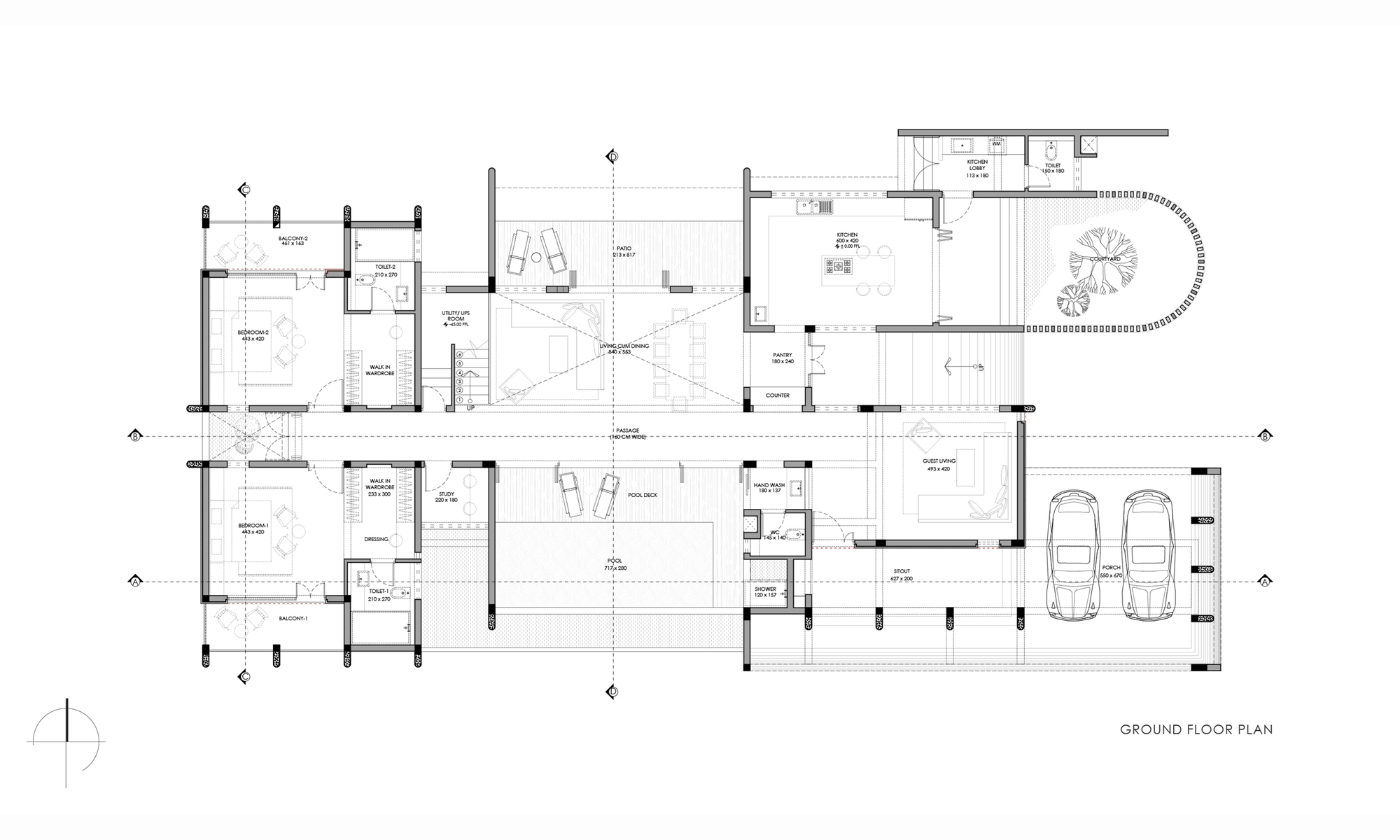
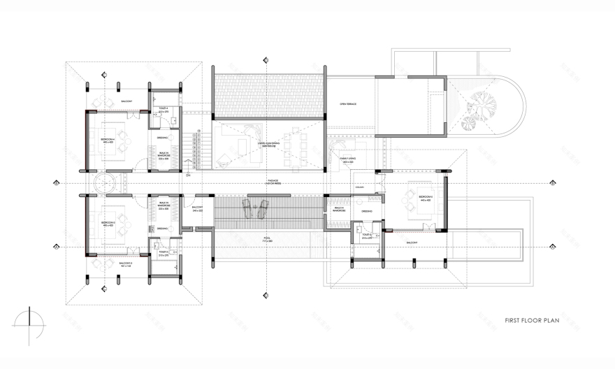
Text description provided by the architects. The residence is located in the quaint village of Mathamangalam in Kannur, Kerala. The elevated topography of the site coupled with the gradual ascent and expansive foreground on offer gives a sense of anticipation as one approaches the residence. This rising journey connects the occupants to the natural surroundings, allowing the house to be experienced progressively.
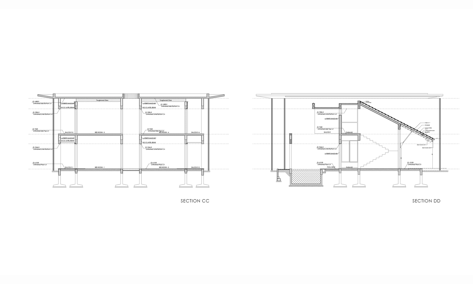
The organization of the house is simple yet functional, composed of two distinct blocks. One block houses the sleeping quarters, providing privacy and tranquility, while the other block contains the guest living, kitchen, and service areas, ensuring efficient organization and flow of daily life. These two blocks are linked by a long, expansive family area, which serves as the heart of the home. The family area is designed with a double-height ceiling, giving it a sense of openness and grandeur, while large windows and sliding doors offer direct views and access to the outdoor spaces. On one side of this area, a swimming pool invites relaxation and recreation, while on the opposite side, a peaceful garden court provides a serene outdoor escape.
The design efficiently responds to Kerala's humid tropical climate. The zoning of the house has been carefully considered to respond to the predominant southwest and northeast wind patterns, ensuring that the residence remains well-ventilated and comfortable throughout the year. By aligning the house to capture these cooling breezes, the design minimizes the need for artificial cooling systems, thus enhancing energy efficiency and promoting passive ventilation.
The overhanging roof is supported by double-height columns, which not only provide structural support but also create a rhythmic, visually striking façade. To further refine the spatial experience and provide privacy, perforated walls are strategically placed around the kitchen court and the pool area. These walls define and enclose specific spaces, ensuring that private areas like the kitchen and pool are protected from view. At the same time, the perforations in the walls allow air to circulate freely, maintaining a continuous flow of natural ventilation throughout the house. This design ensures a balance between seclusion and openness, creating private, intimate spaces that are still connected to the larger environment.
Project gallery
客服
消息
收藏
下载
最近





























