查看完整案例

收藏

下载
概况 Overview 项目位于福建厦门同安区五显镇三秀山村。场地坐落于三秀山村西侧,周边多为农田、农业大棚及农田管理用房。场地西侧紧邻村道,是到达项目的主要道路之一;东北侧与另一条村道相连,也能便捷到达场地。场地内有三栋老建筑,为上世纪的知青住房,此前作为周边农田的管理用房。
The project is located in Sanxiushan Village, Wuxian Town, Tongan District, Xiamen City, Fujian Province. The site is on the western side of the village, surrounded by farmland, greenhouse and its management buildings. The west side of the site is adjacent to a village road, which is one of the main road to arrive the site. The northeast side of the site is adjacent to anther village road, which also can arrive the site. Within the site, there are three old buildings that were originally used as housing for zhiqing in the last century. Previously, these buildings served as management facilities for the surrounding farmlands.
▼场地鸟瞰,Ariel view of the site©阿奇
▼场地鸟瞰,Ariel view of the site©张明珍
为满足村庄发展需求,业主希望通过对三栋老建筑及其场地的改造,既能保留知青文化底蕴,又能为三秀山村及周边村庄提供一个公共活动场所,同时也能为外来旅游人员提供一个服务场所。三栋建筑改造完成后,由南到北,功能依次为咖啡驿站、培训教室、游客服务中心。其中咖啡驿站与培训教室毗邻,游客服务中心与其余两栋相距较远。因此,在整体场地设计中,将驿站与培训教室之间的场地进行整合,通过连廊和透明坡屋顶,形成一个能够避雨的半户外活动空间。同时,利用游客服务中心与培训教室之间空地,布置活动广场和草地,为项目提供一个较大的户外活动场所。
▼改造前现场,Site photo before renovation©张明珍
To meet the development of the village, the client aims to renovate the three buildings and the site. The renovation seeks to preserve the cultural heritage of the zhiqing while providing a public space for Sanxiushan Village and the neighboring villages. Additionally, the renovated site is intended to offer service facilities for tourists. After the renovation, the three buildings will have distinct functions, arranged from south to north as a service station, a training room, and a visitor center. The service station and training room are situated close to each other, while the visitor center is relatively distant from the other two. The site design integrates the area between the service station and training room with a corridor and a transparent roof, creating a semi-outdoor activity space sheltered from rain. The space between the visitor center and the training room is utilized for a plaza and a lawn, providing the project with a spacious outdoor activity area.
▼场地东北侧视角,Northeast side of the site©陈向鹏
▼东侧活动场地,Activity venue of east side©陈向鹏
咖啡驿站
Service Station
驿站位于场地南侧。原房屋主体为一座石墙建筑,屋顶为混凝土;南侧部分为混凝土砌块搭建的附属用房。评估现状建筑质量后,方案保留原有石墙,并拆除其余部分。石墙外部尽可能保留其原有状态,内部则采用相应措施进行加固。
The service station is situated on the southern side of the site. The original structure was a stone-walled building with a concrete roof; an annex on the southern side was constructed with concrete blocks. Based on an assessment of the existing building’s quality, it was decided to retain the original stone walls and demolish the remaining parts. The exterior of the stone walls is preserved as much as possible in their original state, while appropriate measures are taken to reinforce the interior.
▼南侧视角,View from the south©阿奇
▼东南侧视角,View from the southeast©阿奇
▼西南侧视角,View from the southwest©阿奇
新建部分材料以深灰色金属板为主,与原石墙形成较大反差;屋顶采用双坡顶形式,选用深灰色铝镁锰屋面板作为主要材料。新旧两者在坡屋顶的统一之下,构成新的整体。
▼结构概念模型,Conceptual model of structure©隅建筑工作室
The new construction primarily uses dark gray metal panels, creating a stark contrast with the original stone walls. The roof adopts a double-pitched form, with dark gray Al-Mg-Mn alloy sheeting as the main material. Both the old and new elements are unified under the pitched roof, forming a cohesive whole.
▼室外楼梯,Outdoor stairs©阿奇
改造后,新建筑主要作为一个供村民和游客休息的服务空间。建筑主入口设置在西侧,方便人群从西侧村道直接到达。
After the renovation, the new building will primarily serve as a space where both villagers and visitors can rest. The main entrance is placed on the west side to facilitate access from the village road.
▼主入口,Main entrance©阿奇
新建筑由主体与南侧附属楼两部分组成。相同坡度的屋顶和外立面材料,将两者统一为一个整体;同时,在两者之间设立一个缝隙,使得两者仍能各自独立,并于缝隙中设置室外楼梯,直通夹层活动平台,加强地面与夹层活动平台的联系。
The new building is composed of two parts: the main building and an annex. The same materials unify these two parts into a cohesive whole. However, a narrow gap between them maintains their distinct identities. An outdoor staircase is situated in this gap, leading up to the outdoor platform, enhancing the connection between the ground level and the platform.
▼入口空间,Entrance Space©阿奇
▼主厅,Main hall©阿奇
从南侧望向建筑,将看到连续的铝镁锰屋顶和横向长窗,与周边的农田,北面的远山,共同构成一幅独特的乡间景象。
Looking at the building from the south, one can see a continuous Al-Mg-Mn alloy sheeting roof and a long horizontal window, which together form a unique countryside view, harmonizing with the surrounding farmlands and the distant mountains.
▼水平框景,Horizontal frame©阿奇
▼观景平台,Viewing Platform©阿奇
结构设计 Structural Design 建筑新建部分采用钢结构,与原本厚重的石墙体系形成一定的反差。方案充分利用钢结构的特性,在柱子、梁架等方面做了诸多处理,使得结构构件能在内部空间塑造中,起到关键作用,营造独特的空间氛围。
The new section features a steel structure, which contrasts with the original heavy stone walls. The design capitalizes on the characteristic of steel, with careful treatment of columns and beams that makes the structural components integral to the interior design, contributing to a distinctive spatial atmosphere.
▼夹层回廊,Corridors©阿奇
▼梯下空间,Space under the staircase©阿奇
方案基于原石墙尺寸,将建筑东西方向均分为 6 份,为空间建立统一的模数;新柱子与原石墙保持一定距离,缩小结构南北向跨度,减小梁高;利用结构柱将空间划分为三份,确定核心空间,并区分各部分的空间特性;柱子采用矩形截面,长向为东西向;驿站东西两侧的端柱采用斜柱做法,进一步塑造空间东西向进深感。
The building’s east-west axis is divided into six equal sections based on the dimensions of the original stone walls, creating a unified modular space. The new columns are positioned at a certain distance from the original stone walls, reducing the north-south span and allowing for lower beams. The space is divided into three parts by the structural columns, defining the core space and differentiating the spatial characteristics of each area. The columns are rectangular in cross-section, oriented east-west, with angled end columns on the east and west sides to enhance the perception of depth.
▼夹层活动空间,Activity space of mezzanine©阿奇
在屋架结构的设计中,采用抬高南北向屋面梁架的做法,避免与东西向主梁之间的交叉,保证了主梁和屋面梁架的完整性,引导空间的东西向进深;屋面板也采用东西向布置,纹路与主梁方向一致,进一步强化了空间的东西向进深。此外,结构的特殊做法,也使得新旧结构基础彻底分开,大大降低了项目的施工难度。
In the roof structure design, the north-south beams are elevated to avoid crossing the main east-west beams, ensuring the continuity and integrity of both the main beams and the roof structure, thereby guiding the spatial depth along the east-west axis. The roof panels are also arranged in an east-west direction, emphasizing the spatial depth. In addition, this specialized structural design ensures that the foundations of the new and old structures are completely separate, significantly reducing construction difficulty.
▼夹层北侧,North side of mezzanine©阿奇
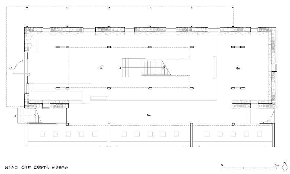
空间氛围营造 Shaping The Spatial Atmosphere 驿站空间以一层为主,局部含夹层。一层主要包含服务空间、主厅、观景平台、活动空间等功能;夹层则作为临时展示及活动空间使用。
The service station’s space is primarily on one level, with a mezzanine. The first level mainly includes a service space, main hall, viewing platform, and activity space, while the mezzanine is used for temporary exhibitions and activity space.
▼水平长窗,Horizontal windows©阿奇
▼斜柱介入空间,Sloping columns appear in the space©阿奇
在空间氛围塑造中,方案需充分利用现有条件,从多方面入手,为驿站带来丰富的空间体验。结构上通过模数、柱截面、端部斜柱、屋面梁架等方面的处理,使得主体结构呈较为明显的东西向趋势,为空间带来较强的纵深感;同时,利用楼梯、窗户等要素,进一步加强这种纵深感。主厅以挑空的形式,形成垂直向空间,打破一层单一的空间体验;南侧则设置横向水平长窗,并抬高地面,形成水平性的观景平台,与垂直主厅形成强烈对比。
In shaping the spatial atmosphere, the design fully utilizes the existing conditions to provide a rich spatial experience for the service station. Structurally, through the treatment of modulus, column cross-sections, end inclined columns, and roof beams, the main structure exhibits a noticeable east-west orientation, bringing a strong sense of depth to the space. Additionally, elements such as staircases and window further enhance this sense of depth. The main hall, designed with a double-height space, creates a strong vertical space, breaking the monotony of a single spatial experience. A horizontal long window is set on the south side, with the floor raised to form a horizontal viewing space, contrasting with the vertical main hall.
▼水平空间,Horizontal space©阿奇
不同于一层的装饰,在夹层,建筑的主要结构构件都能够被清晰的感受到,形成与一层完全不同的空间氛围。从一层到夹层,能够让使用者在这个不大的建筑中,体会到丰富的空间变化。
Unlike the decorations on the ground floor, the main structural components of the building are clearly felt in the mezzanine, creating a completely different spatial atmosphere from the ground floor. Moving from the ground floor to the mezzanine allows users to experience rich spatial changes within this relatively small building.
▼坡顶下空间,Space under sloping roof©阿奇
培训教室 Training Room
培训教室位于场地中部,原建筑石墙较完整。设计保留其外墙并加固,仅改造其屋面系统;并增设南侧连廊,通过透明坡顶,与驿站北侧连廊共同形成一个半室外的活动空间。
The training room is positioned centrally on the site. The original building’s stone walls are relatively intact, so the design focuses on preserving and reinforcing these exterior walls while only renovating the roofing system. A new connecting corridor is added to the southern side, which, along with the transparent sloped roof, forms a semi-outdoor activity space in conjunction with the service station’s corridor.
▼南侧坡顶,Sloping roof of the south side©阿奇
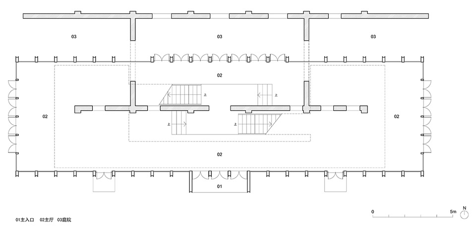
游客服务中心 Visitor Center 游客服务中心位于场地北部,原房屋为一座土坯与砖石混合的建筑,其南立面写有上世纪的宣传标语,保留此标语是本建筑改造的主要任务之一。
Located at the northern part of the site, the visitor center was originally constructed from a mix of adobe and brick. The southern facade features slogans from the previous century, and preserving these slogans is a key task of the renovation project.
▼东南侧视角,View from the Southeast©阿奇
▼东侧视角,View from the east©阿奇
▼西侧视角,View from the west©阿奇
新旧交织的布局 Interwoven Layout of Old and New
由于用地性质原因,原建筑北侧半间用地不能用于建设,新建部分只能在原建筑南侧半间及南侧场地进行建设。这使得新旧两部分会呈现一种相互交织的状态,这种特殊性,为建筑带来了全新的布局。
▼新旧建筑关系概念模型,Conceptual model of the relationship between new and old buildings©隅建筑工作室
Due to the land use restrictions, construction could not be conducted on the northern half of the original site, thus new construction was limited to the southern half and adjacent areas. This resulted in an interwoven state between the old and new sections, providing the building with a distinctive new layout.
▼保留标语,Preserved slogan©阿奇
▼南侧楼梯,South staircase©阿奇
▼北侧楼梯,North staircase©阿奇
▼北侧通高空间,Double-height space on the north side©阿奇
▼东侧通高空间,Double-height space on the east side©阿奇
通过对现状的评估,设计对具备保留价值的原建筑墙体进行保留并加固。外立面最大限度保留其原貌,并对内部墙面进行加固和修复。新建部分以门式钢框架为基础结构元素,新建结构基础避开原有老基础。新结构的模数充分考虑与旧建筑的联系,使得新旧两者能在新模数下和谐共存。
Based on the assessment of the current conditions, the design retains and reinforces the original walls that hold preservation value. The exterior facade is preserved as much as possible, while internal walls are reinforced and repaired. The new construction utilizes a portal frame as the primary structural element, and its foundation avoids the existing old foundation. The modularity of the structure is carefully designed to harmonize with the old building, ensuring a cohesive coexistence of the new and old elements.
▼夹层空间,Space of mezzanine©阿奇
外观上,南侧以新建部分为主,当环绕至建筑东西侧及北侧时,能够看到原建筑的老墙体,呈现一种新旧并置的局面。北侧半间的老建筑,保留其原有墙体,与新建部分共同形成了一个独具特色的内庭院。
In terms of appearance, the southern side prominently features the new construction, while the eastern, western, and northern sides reveal the old building’s original walls, creating a juxtaposition of old and new. The retained old walls on the northern half form a unique internal courtyard.
▼内庭院,Courtyard©阿奇
内部空间围绕原建筑南墙进行布局,将原南立面上的标语作为空间的展示核心。由于原建筑内外墙面不同的处理方法,使得新建筑的南侧半间与北侧半间具备完全不同的空间氛围。在这个有限的空间中,呈现出新旧交替带来的独特氛围。
The internal space is organized around the original southern wall, with the original southern facade’s slogans serving as the focal point of the space’s display. The different treatments of the original building’s interior and exterior walls result in a distinct spatial atmosphere between the southern and northern sections. Visitors experience a rich variety of spatial transformations within the confined area, illustrating the interplay between the new and old elements.
▼夜景,night view©阿奇
▼场地总平面图,Master Plan©隅建筑工作室
▼咖啡驿站·首层平面图, Ground Floor Plan©隅建筑工作室
▼咖啡驿站·夹层平面图, Mezzanine Floor Plan©隅建筑工作室
▼咖啡驿站·南立面图, South Elevation©隅建筑工作室
▼咖啡驿站·北立面图, North Elevation©隅建筑工作室
▼咖啡驿站·西立面图、横剖面, West Elevation、Cross Section©隅建筑工作室
▼咖啡驿站·纵剖面, Longitudinal Section©隅建筑工作室
▼咖啡驿站·新旧结构关系示意,Relationship between the old and new structures©陈向鹏
▼游客服务中心·一层平面图, Ground Floor Plan©隅建筑工作室
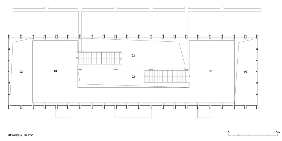
▼游客服务中心·夹层平面图, Mezzanine Floor Plan©隅建筑工作室
▼游客服务中心·南立面图, South Elevation©隅建筑工作室
▼游客服务中心·西立面图、横剖面, West Elevation、Cross Section©隅建筑工作室
▼游客服务中心·纵剖面, Longitudinal Section©隅建筑工作室
项目名称:三秀山知青房修缮改造
项目类型:建筑
设计方:隅建筑工作室 + 东南乡建
设计年份:2021.06
完成年份:2023.10
主创建筑师:陈向鹏/隅建筑工作室;张明珍/东南乡建
设计团队:李诗龄、杜巍威(驻场)、侯婷娟/隅建筑工作室
汪兵、张明晗(驻场)/东南乡建
结构顾问:马小波
总建筑面积:740㎡
摄影版权:阿奇、张明珍、陈向鹏
施工图合作单位:武夷山建筑设计研究院有限公司
项目地址:福建厦门同安区五显镇三秀山村
业主:厦门市同安区五显镇人民政府
材料:钢、铝镁锰板、木饰面板、水磨石
Project Name:Renovation of Sanxiushan Zhiqing Houses
Project Type:Architecture
Design:Yu Architects+SRCDC
Design Year:2021.06
Completion Year:2023.10
Leader Designer:Chen Xiangpeng/ Yu Architects、Zhang Mingzhen/ SRCDC
Design Team:Li Shiling、Du Weiwei、Hou Tingjuan/ Yu Architects
Wang Bing、Zhang Minghan/ SRCDC
Structural Consultants:Ma Xiaobo
Gross Built Area:740㎡
Photographer:A Qi、Zhang Mingzhen、Chen Xiangpeng
Cooperative Design Institute: Wuyishan Institute of Architectural Design and Research Co.,Ltd.
Location:Sanxiushan Village,Wuxian Town,Tongan District, Xiamen City, Fujian Province
Client: The people’s government of Wuxian Town,Tongan Distric,Xiamen City
Materials:Steel、Al-Mg-Mn Alloy Sheeting、Wood veneer、Terrazzo
客服
消息
收藏
下载
最近
























































