查看完整案例

收藏

下载
上海金鼎平和学校处于城市新的 CBD 中,高达 3.0 的容积率要求、国际化的教学模式和周边高密度的城市环境使其必然成为独特的存在。大多数校园在城市中经营着自己的独立王国,但当校园抛开象牙塔的身份,从城市的观望者变成了城市的参与者,甚至成为城市空间的引领者的时候,其角色也就具有了多种可能。设计者捕捉了这种在校园中罕见的强烈的城市性,以聚集为主题,在这里创造了一座能激发教与学的交流欲望,没有围墙的城市梦剧场。
Located in the new CBD of the city, Shanghai Pinghe School Jinding Campus is bound to be a unique existence due to its high floor area ratio requirement of up to 3.0, international teaching mode and high-density surrounding urban environment. Most campuses run their own independent kingdoms in the city, but when the campus puts aside its ivory tower status and turns from a spectator of the city to a participant of the city, or even a leader of the urban space, its role takes on many possibilities. The designer has captured this strong urbanity which is rare on campus, taking gathering as the theme, and has created an urban dream theater without walls that can stimulate the desire for communication between teaching and learning.
▼城市鸟瞰,Urban view © 梁山
▼整体鸟瞰,Bird’s eye view© DC 国际
与城市共享的剧场
A theater shared with the city
剧场是公共的舞台,这座校园处于城市的中心,周边的城市形象、城市空间和城市功能都在校园设计中得到了回应。校园成为一座向城市开放的剧场,多种功能空间预留了与城市分时共享的可能,作为文化基础设施与城市共建、共享、共荣。
▼“与城市共享”的概念剖轴测,Conceptual sectional axonometry of “Time-sharing with the city”© c+d 设计中心
Theatre is a public stage. This campus is in the center of the city, where the surrounding urban image, urban space and urban functions are all echoed in the campus design. The campus has become a theater open to the city, with a variety of functional spaces reserved for the possibility of time-sharing with the city, as a cultural infrastructure to be built, shared and prospered with the city.
▼校园北入口,North entrance of the campus© 梁山
分主题演绎的剧场 A theater of thematic interpretation
剧场是看与被看的空间,也是活动聚集的中心。校园的核心空间由两个不同主题的剧场组成:一个是智慧剧场,以层层退台的教室为看台,以图书馆环绕的花园为舞台,组织起各种学习活动;一个是活力剧场,以连接公共功能的多层环廊为看台,以下沉的运动场为舞台,成为各种运动和演出的场地。
Theater is the space for seeing and being seen, as well as a center for gathering activities. The core space of the campus is composed of two theaters with different themes. One is the wisdom theater, which organizes various learning activities, with the classrooms set back as the stands and a garden surrounded by the library as the stage. The other one is the vitality theater, which is a venue for various sports and performances, with a multi-layered circular corridor connecting public functions as the stand and a sunken sports field as the stage.
▼智慧剧场,Wisdom Theater© 梁山
▼智慧剧场的下沉花园,Garden of Wisdom Theater© 梁山
▼智慧剧场的层层退台,Terrace of Wisdom Theater© 梁山
▼活力剧场,Vitality Theater© 梁山
▼活力剧场的下沉运动场,Sports field of Vitality Theater© 梁山
▼活力剧场的环廊看台,BOX of Vitality Theater© 梁山
▼教学楼中庭,Perspective of Atrium© 上:ECADI;下:DC 国际
沉浸式探究的剧场 A theater of immersive exploration
剧场是浓缩的生活场景,而在设计中则是将空间的高密度转化为学习生活的高密度。教育与生活同构,它在本质上是探究性的,正如怀特海所指出的那样:“教育是对于生活探险的训练”。功能和空间高度复合的校园把生活的复杂性转换为教育的资源,以更好地适应多元学习场景的需求。
Theater is a condensed life scene. And in the design, the high density of space is transformed into the high density of studying life. Education is isomorphic to life, which is exploratory in nature. As Whitehead pointed out, “Education is discipline for the adventure of life”. Campuses with highly complex functions and spaces convert the complexity of life into educational resources, to better adapt to the needs of diverse learning scenarios.
▼体育馆,gym© 华东院
▼图书室,library© 华东院
▼游泳馆,swimming pool© 华东院
▼大会堂,auditorium© 华东院
▼食堂,canteen© 梁山
▼内部空间剖面模型,Section model of internal space© DC 国际
▼总平面图,plan © c+d Design
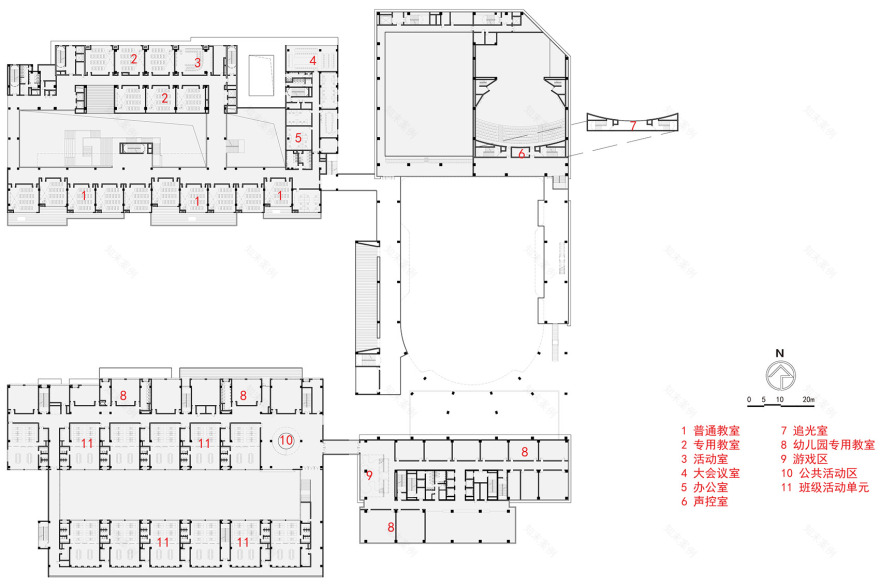
▼一层平面图,1F plan© c+d 设计中心
▼地下一层平面图,B1F plan© c+d 设计中心
▼二层平面图,2F plan© c+d 设计中心
▼三层平面图,3F plan© c+d 设计中心
▼四层平面图,4F plan
© c+d 设计中心
▼五层平面图,5F plan© c+d 设计中心
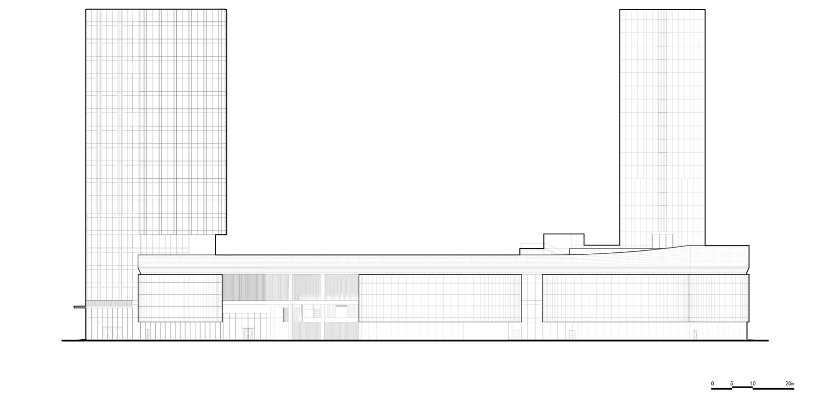
▼立面图,elevations© c+d 设计中心
项目名称: 上海金鼎平和学校
设计方: c+d 设计中心
项目设计 & 完成年份: 2018.05-2023.09
主持建筑师:董屹
设计团队:王涵、高盘、王梓瑜、胡卓霖、陈成、李晨皓、邹天格、钟点、李墨君、肖蓉、杨凯悦
项目地址 上海市浦东新区申启路 333 号
建筑面积 181663.7㎡
摄影版权:梁山、DC 国际、华东院
景观设计:华建集团华东建筑设计研究院有限公司
室内设计:华建集团华东建筑设计研究院有限公司
施工图:华建集团华东建筑设计研究院有限公司
客户: 上海金桥集团
Project name: Shanghai Pinghe School Jinding Campus
Design: c+d Design Center
Design year & Completion Year: 2018.05-2023.09
Lead Architect:Yi Dong
Design Team: Han Wang, Pan Gao, Ziyu Wang, Zhuolin Hu,Cheng Chen, Chenhao Li, Tiange Zou, Dian Zhong, Mojun Li, Rong Xiao, Kaiyue Yang
Project location: No.333, Shenqi Road, Pudong District, Shanghai
Gross Built Area: 181,663.7 sqm
Photo credits: Liangshan, DC Alliance, ECADI
Landscape Design:ECADI
Interior Design:ECADI
Construction Drawings:ECADI
Clients Shanghai Jinqiao(Group)Co.,Ltd.
客服
消息
收藏
下载
最近

































