查看完整案例

收藏

下载
RESTONIC 美国蕾丝床垫,作为拥有 85 年历史的全球五大床垫品牌之一,从床垫的制造者,到成为优质睡眠的倡导者,超越了产品的范畴,成为高品质睡眠生活的一个缩影。
在消费者日益注重情感体验与共鸣的时代背景下,其系列品牌空间的焕新正是对这一趋势的敏锐洞察与积极回应。广州简美设计再度携手 RESTONIC 美国蕾丝床垫,一同造梦,让每一位消费者在自在松弛的情景氛围中,通过身与心的双重触动,重获优质的睡眠体验,抵达内在的深度疗愈。
01EXTENSIONRECONSTRUCTION 延展与重构
月倚屋檐,如梦之境。全新展厅的构建中,设计再次以斜坡屋顶续写新篇,依旧是温柔而坚定的姿态,徐缓展开,木质作为构筑与呈现的表面肌理,给人以质朴与温和的自然感受。栏栅间,光影缠绵萦绕,虚虚实实,心绪悠扬,不妨一同入梦。
P. 01
P. 02
P. 03
P. 04
展厅由不同功能板块构成,区别于展示区的悠然梦境,洽谈区被另外一种情绪主导。景观的置入构建新的秩序,多一些松弛随心,少一些商务范式,空间的情绪趋向于立体与丰富。
从细微的变化之中,凸显对于功能、情境、氛围的深刻理解,建立截然不同的品牌启示。
P. 05
P. 06
02WANDER
POETICALLY
诗意地游走
空间的构建,并不急于展露全貌,而是加以引导,让来访者随着体验深入,自然唤醒,自由探索。形态、动线、材质的变化,如同乐章中的变奏,预示着不同情感与氛围的交替。
P. 07
P. 08
方圆之间,曲径通幽。差异化的形态体块并置,错落相间,于单一的环境中,构造出多维的情境体验。模拟游园之意趣,空间与空间之间转承、链接、体验,呈递进式层层释放,行走其间,不断加深感知,已然沉浸其中。
P. 09
P. 10
• 03
CREATING ENVIRONMENT
框景亦造境
利用商场中空视角,纳入巨幅玻璃幕墙,由上观之,如若将展厅框了起来,带来更多的审美意趣。
智能窗帘的运用,则使得空间在隐秘与开放的状态中,自由切换,满足于不同情形下的场景需求。
P. 11
P. 12
P. 13
空间结构,高低错落。圆形,柔和流畅,象征着无限与循环,孕育着诸多美好的遐想;方形,坚固稳定,建立起安全与秩序,代表着功能理性的追求。方与圆、曲与直,两两呼应,构筑鲜明对比,让原本的商场过道,从感官上建立起模糊而富有弹性的界限,体验到不断拓展,不断探索的乐趣。
P. 14
P. 15
P. 16
• 04
ANCHORING WITH LOCAL
锚定与局部
作为品牌系列展厅的强辨识度标志,建立视觉上的锚点,有效中和场地环境带来的不可协调感。同时,作为展厅的陈列展示,让来访者在购物的体验过程中,形成逛展般的体验,弱化传统商业行为的直白与单调。
P. 17
P. 18
P. 19
P. 20
P. 21
局部,满足品牌的其他展示需求,让具象的功能串联主导,成为自然而然的空间分区。流动而轻盈的光线,无形中也塑造着空间轮廓,交付更加细腻而微妙的情绪波动,让来访者在互动中,体验到由空间赋予的层次与安定感。
P. 22
P. 23
P. 24
空间的塑造,是兼容并蓄的形态展现,将空间、商业、品牌三者融合表达,构成一幅动态而丰富的叙事图景。于展示之中,传达品牌的精准要义,于体验之间,赋予由内而外的感知。
• 05
ANALYSIS
DIAGRAM
分析图
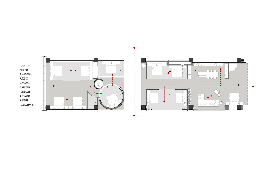
平面图 P. 25
爆炸图 P. 26
INFO
- 项目名称 - RESTONIC 美国蕾丝床垫广州罗浮宫店
- 项目甲方 - 运时通(中国)家具有限公司
- 设计单位 - 广州简美设计
- 设计主创 - 陆奕
- 设计团队 - 沈梦妮 刘继业 邓紫珩 黄旭霖 万永珍
- 灯光设计 - 吴景民
- 建筑面积 - 272㎡
- 项目地址 - 中国 广州
- 项目摄影 - 林灿宇
- 项目视频 - 李永茂
陆奕
广州简美设计联合创始人 - 创意总监
广州简美设计依托“简美品牌”于 2018 年在广州创立,致力于高级定制化研究及一体化设计服务。主创成员拥有丰富的设计及设计管理经验,擅长为客户解决问题,以设计落地结果为导向。业务范围涵盖私宅、地产、商业、办公、软装定制及落地实施管理等。简美设计注重人文内核,追求自然环境与空间美学的共生融合。基于对事物本质的深刻认知,不断探索空间的内在秩序,在寻常中以达突破,为客户真正赋能。
客服
消息
收藏
下载
最近































