查看完整案例

收藏

下载
置入光影:一个工作室 / 张大为建筑工作室+左通右达建筑工作室
二层画室 ©张大为建筑工作室
设计单位 张大为建筑工作室+左通右达建筑工作室
项目地点 北京郊区
建成时间 2018 年 12 月
建筑面积 300 平方米
本文文字由设计单位提供。
2016 年春,我们收到委托,把一个顶层的复式公寓改造成工作室。
In the spring of 2016, we were commissioned to renovate a top-floor duplex apartment into a studio.
轴测图 ©张大为建筑工作室+左通右达建筑工作室
与新建项目不同,这次的改造任务是利用原有的场地、建筑和结构进行创作。本着不盲目追求创新的节制态度,我们谨慎地从原有的房子中提取了有价值的功能,并让其继续存在,再加以优化,将其重新组合并展现了一种更合理使用方式。
Unlike new construction projects, this renovation task involves utilizing the existing site, building, and structure for creative purposes. With a mindset of not blindly pursuing innovation and moderation, we carefully extracted valuable functions from the original house, allowing them to continue existing. We then optimized these functions, recombined them, and presented a more reasonable and efficient way of utilization.
概念模型 ©张大为建筑工作室+左通右达建筑工作室
一楼会客室 摄影:陈颢
在结构处理的过程中,为了避免新建筑直接施加在原有楼板上造成损坏,我们仔细研究了原有建筑的资料并进行了精确计算。最终,我们借助原有的混凝土大梁,采取了后置埋板锚栓的措施,架设了新的钢梁来支撑新增的重量,并将力量分散传递至原有的混凝土柱子上。
In order to avoid the new structure’s weight directly resting on the existing floor and causing damage, we carefully studied the information on the existing building and conducted precise calculations. Ultimately, relying on the existing concrete beams, we strictly implemented post-installed anchor bolts and erected new steel beams to support the additional weight and disperse the forces onto the existing concrete columns.
构思草图 ©张大为建筑工作室+左通右达建筑工作室
施工过程 ©张大为建筑工作室
一层走道 摄影:陈颢
大楼梯 摄影:陈颢
当新旧结合形成一个整体时,视觉上的魔法效应生成,一个在视觉上未触及原有楼板的悬空盒子,漂浮在空中完成了光的使命,同时也生成了一个贯穿上下的中庭空间。
When the combination of the old and the new forms a cohesive whole, a visual magic effect is created. A suspended box, visually detached from the original floor, floats in the air, fulfilling the mission of light while also generating an atrium space that runs through vertically.
雪中的中庭 摄影:业主
中庭 摄影:陈颢
中庭 ©张大为建筑工作室
改造项目的重点在于在原有建筑基础上建立新的秩序。我们将一楼打造成了客厅和展示区,二楼则成为私密的工作区。为了创造在上述基础上更具有体验感的空间动线,我们将楼梯隐藏在中庭背后,从而为二楼提供更好的私密性。通过采用 1.5 米的平面网格系统,我们重新调整空间的比例,通过 5 比 6 的比例关系协调和确认局部空间与整体的关系。
The focus of the renovation project is to establish a new order on the basis of the existing building. We have transformed the first floor into a living room and exhibition area, while the second floor serves as a private workspace. To create a more experiential spatial flow on the aforementioned foundation, we have concealed the staircase behind the atrium, providing better privacy for the second floor. By adopting a 1.5-meter grid system, we have readjusted the proportions of the space and coordinated the relationship between specific areas and the overall design, confirming harmony through a 5:6 ratio.
设计草图 ©张大为建筑工作室+左通右达建筑工作室
功能分布图 ©张大为建筑工作室+左通右达建筑工作室
二楼画室 摄影:陈颢
许多历史绘画杰作是在柔和或幽暗的光线下创作的,这与现代主义建筑追求的明亮空间有所不同。正如《阴翳礼赞》所述,幽暗中的美让内心找到安宁,柔和的光线让感知敏感而细腻。
Many great works of art were created in soft or dim lighting, which is different from the bright spaces pursued by modernist architecture. As "In Praise of Shadows" describes, beauty in darkness brings peace to the soul, and soft lighting makes perception sensitive and delicate.
光影 ©张大为建筑工作室
二层画室 摄影:陈颢
明与暗是相互依存的关系,处理采光问题的关键,是赋予恰如其分的影调关系。我们把工作室的中庭作为一个盛满自然光的负空间,嵌入建筑物内部,将天光漫反射进入室内。墙面选用接近白色的浅灰色,进一步降低自然光反射带来的视觉刺激。于是,天光下中庭和幽静的室内保持一定的中间调关系。空间想象随自然光向外延展,弱化了中庭距离带来的压迫感,像是一扇通向想象世界的窗。
Light and shadow are interdependent, and the key to handling lighting issues is to give appropriate tone relationships. We used the courtyard of the studio as a negative space filled with natural light, embedded in the interior of the building, allowing daylight to diffuse into the interior. The walls were painted in a light gray close to white to further reduce the visual stimulation caused by the reflection of natural light. As a result, there is a certain middle tone relationship between the courtyard under the sky and the quiet interior. The imagination of the space extends outward with the natural light, weakening the sense of oppression caused by the distance of the courtyard, like a window leading to an imaginary world.
二层会客厅 摄影:范意任
二层画室 ©张大为建筑工作室
二层走道 ©张大为建筑工作室
虽然当前流水线式的施工方式已经得到广泛采用,但这种分工明确的方式往往存在一个问题,即各工种之间缺乏协作,各自为战,导致浪费和返工严重。为了解决这个问题,我们采用非线性的施工方式,提前预判工艺难点,优化施工顺序,发挥各专业团队优势,弥补各自的不足,避免留下问题给其他团队处理。例如,在砌墙的同时,可以预先安装门窗附框,以便于砌砖和确保门窗安装的精确度,从而降低返工率,提高质量。
Although the current assembly-line construction approach has been widely adopted, it often suffers from a significant problem of lack of collaboration and individualistic work among different trades, leading to excessive waste and rework. To address this issue, we can adopt a non-linear construction method that anticipates process difficulties in advance, optimizes the construction sequence, leverages the strengths of various specialized teams, compensates for their respective shortcomings, and avoids leaving issues for other teams to deal with. For example, while bricklaying is in progress, pre-installing door and window frames can be done to facilitate bricklaying and ensure the precision of door and window installation, thereby reducing rework and improving quality.
光影中的陈列 ©张大为建筑工作室
当今社会,人们渴望在最短的时间和最低的成本下获得最大的成果,建筑行业也深受其影响,标准化和商业化越来越盛行,这给建筑艺术带来了巨大的冲击。这让我想到杜尚“现成品”的概念,重新组合、拼贴和改造成熟的现有材料和资源,通过结合手工艺,保留人工痕迹,使建筑更具个性和独特性。
In today’s society, people desire to achieve maximum results in the shortest amount of time and with the lowest possible cost, which has had a significant impact on the architecture industry. Standardization and commercialization are becoming increasingly prevalent, which has greatly affected the field of architectural art. This reminds me of Duchamp’s concept of "readymade" art, which involves the recombination, collage, and transformation of existing mature materials and resources. By combining craftsmanship and preserving the traces of human labor, architecture can become more personalized and unique.
方盒子夜景 ©张大为建筑工作室
设计图纸▽
一层平面图 ©张大为建筑工作室+左通右达建筑工作室
二层平面图 ©张大为建筑工作室+左通右达建筑工作室
三层平面图 ©张大为建筑工作室+左通右达建筑工作室
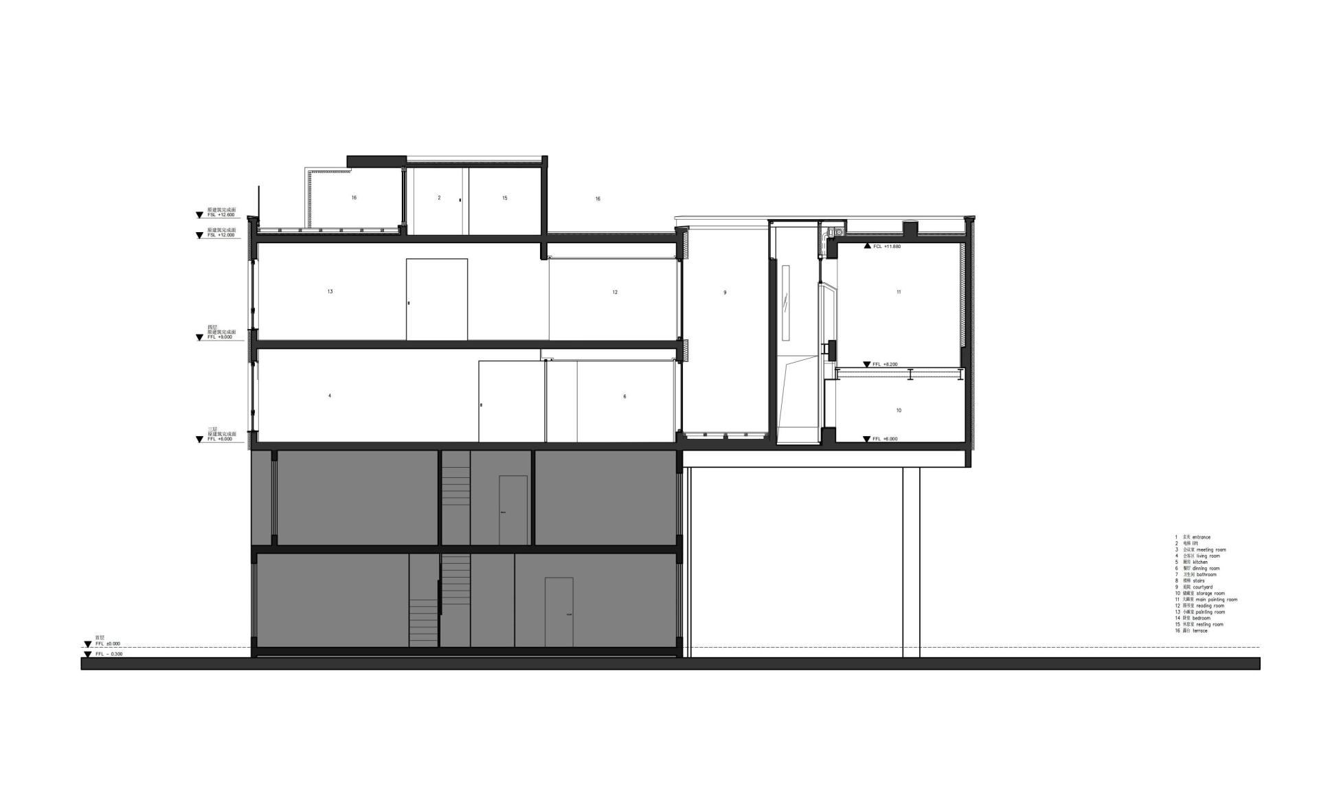
场地剖面图 ©张大为建筑工作室+左通右达建筑工作室
完整项目信息
项目名称:一个工作室
项目类型:建筑改造
项目地点:北京郊区
设计单位:张大为建筑工作室+左通右达建筑工作室
主创建筑师:张大为、王旎
设计团队完整名单:张大为、王旎、杨树军、寿大光、赵广文、范意任
结构设计师:刘粟
设计时间:2016 年 4 月—2018 年 4 月
建设时间:2018 年 3 月—2018 年 12 月
建筑面积:300 平方米
建成状态:建成
施工团队:欧阳学林-北京大有和诚建筑工程
摄影师:陈颢、范意任、张大为建筑工作室
客服
消息
收藏
下载
最近








































