查看完整案例

收藏

下载

翻译
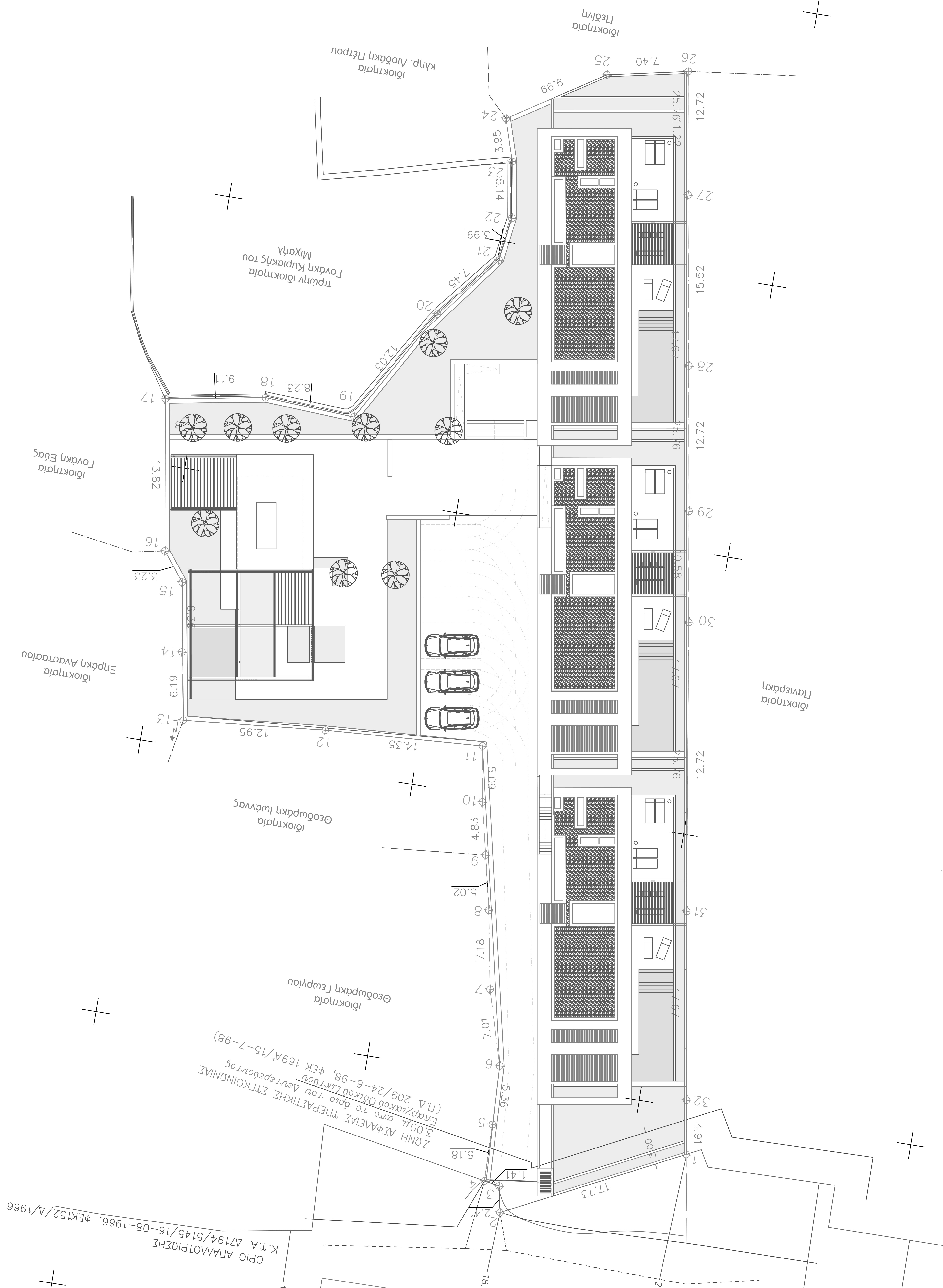
Στοιχεία 'Eργου
Αρχιτεκτονικός σχεδιασμός:
Arch+Light (by Yioyia chalakatevaki)
Team
Yioyia chalakatevaki
Petros Abadiotakis
Nicole Giannakopoulou
3D Modeling & Rendering:
Petros Abadiotakis
Μελέτη Στατική:
Pandelis Diakoumakis
客服
消息
收藏
下载
最近













