查看完整案例

收藏

下载

翻译
Architects:KOMINORU Design
Area:152m²
Year:2024
City:Shimizu
Country:Japan
Text description provided by the architects. This is a housing project along the old Tokaido road. Tokaido Road is one of the most important Five Routes connecting Edo (Tokyo) to Kyoto and Osaka, of the Edo period in Japan. Old townscapes remain along this historical road. The exterior continues with the old Tokaido's wood-covered texture. There is a lot of traffic on the Tokaido side, but rather than blocking the outside world, the wooden panels at different angles are intended to reflect and drown out outside sounds. The orientation of the panels was arranged using a parametric design, and the angles were adjusted so that they changed little by little. Each panel was adjusted so that a large flow would be created when the entire panel was put together.
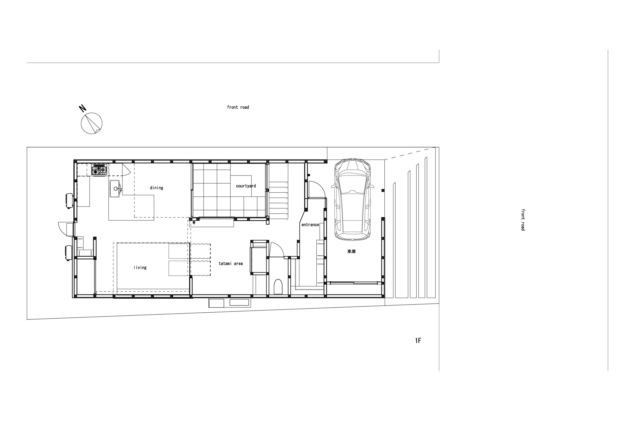
A courtyard was created so that the living space revolves around the courtyard. The rooms were arranged so that the movement of the sun would brighten the study area and washroom in the morning, and the living room in the afternoon.
The first floor is a connected space so that you can enjoy a space whose atmosphere changes from moment to moment depending on the time of day. On the second floor, indoor and outdoor bridges surround the courtyard, creating a sense of circulation.
By creating a level below the floor, we have created a space where you can bury yourself in the earth and relax. The base extends and forms a table. The stairs were raised with bolts to create a floating staircase in front of the garden. The roof is structured to form a courtyard, and Mt. Fuji can be seen through the gap between the two intersecting roofs.
Project gallery
客服
消息
收藏
下载
最近
































