查看完整案例

收藏

下载

翻译
Architects:90+2 architects
Area:365m²
Year:2023
Photographs:Truong Nguyen
Lead Architects:Nguyen Quang Huu Tuan, Phan An
Technical Team:Le Vo Gia Han
Country:Vietnam
Text description provided by the architects. Ms. Vi came to me with the complete trust I had built with her, just like the first time. I initially declined her, but her sincerity, dedication, and the concept that she wanted me to create convinced me. The time when she built Sukha Vihara was when she left her job to focus on her meditation journey. She wanted to live from now on in a space she had always dreamed of, where the heart of the house is a tree – all spaces oriented towards it. Her personal space is minimized to the utmost, dedicating everything to common areas where she and her friends can always connect with nature. Sukha Vihara features a space that turns inward, just as she is turning towards herself from this moment on.
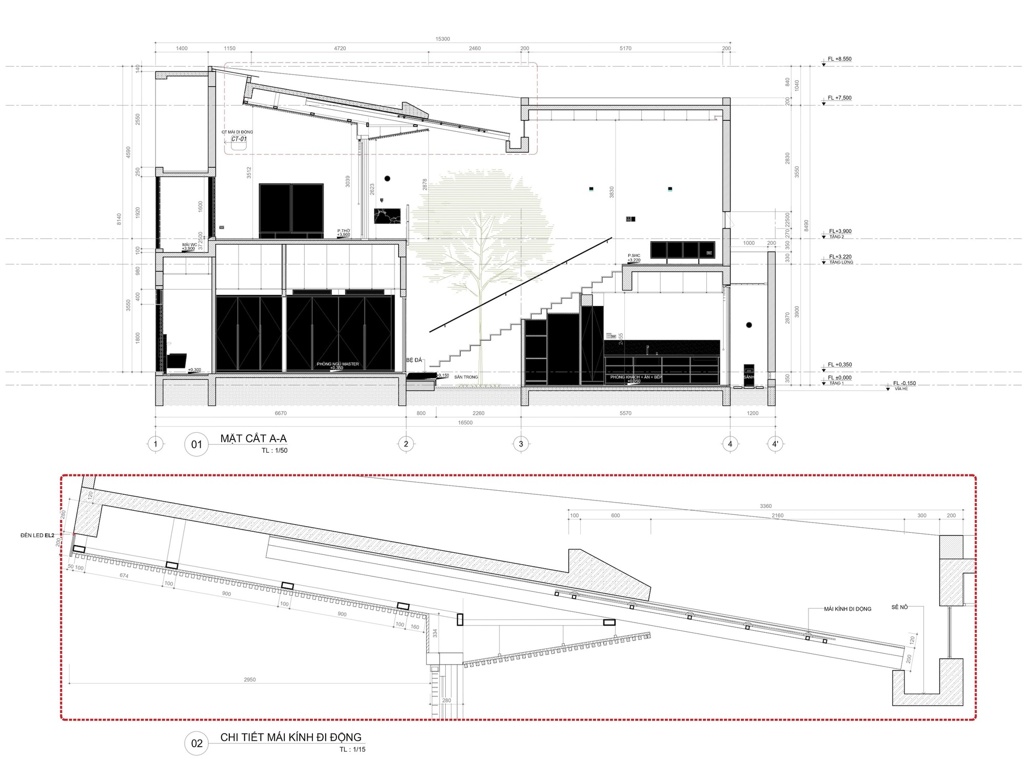
Green Connection (Om Cay) - space - green - space: Creative space conditions for indoor green space to develop tiered connecting spaces living in the house. All activities are around green trees to make the home space warm and create comfortability. The textures and rhythm in the connected designs create flexibility and lighting for the sleeping space and guests. Especially, in front of the house is a mango tree, so it is green and from the inside to the outside of the house, there are more spaces mixed with white colors and a simple monolithic design that highlights the connection between space and green trees in the house.
Natural air conditioning: The green space harmonizes the air to make all activities comfortable, creating conditions for the space to be fulfilling and natural. The host is connected. The landlord always prioritizes common spaces, so private spaces such as bedrooms are collapsed and brought to the space nestled in a large space to be a part of NGOs.
Connecting Consciousness ( Ket Noi Tam Thuc) - Meditation – natural – meditation: The house space is designed according to the wishes of the house to become a space for organizing sessions of Buddhism. According to this, we designed the floor of the ready-made BC to look at the direction of the worship room mixed with space and take light with trees, thereby creating a space that increases two into one large space. Ancient product stands and simple lines with neutral colors make this light of the adhesiveness of the space.
Alms-seeking: The silver design of the bow ladder, the bridge uncle came to the air, Gina poetry to create a village corridor stretching from the 1st to the space. From my red to a stretch of road with the top eight points of the table, one stone from poured to make the worship space more concept. How to arrange the silver ladders and errors go to martial arts together to create thanh 1 palace, the end refers to the worship space.
Project gallery
客服
消息
收藏
下载
最近

































