查看完整案例

收藏

下载

翻译
Architects:PRODUCTORA
Area:772m²
Year:2023
Photographs:César Bejar
Design Team:Carlos Bedoya, Víctor Jaime, Wonne Ickx, Abel Perles
Collaborators:Erik Castañeda, Luis Mendoza, Constanza Candia
Structural Design:César González
Developer:Surreal Estate
City:Agua Marina
Country:Mexico
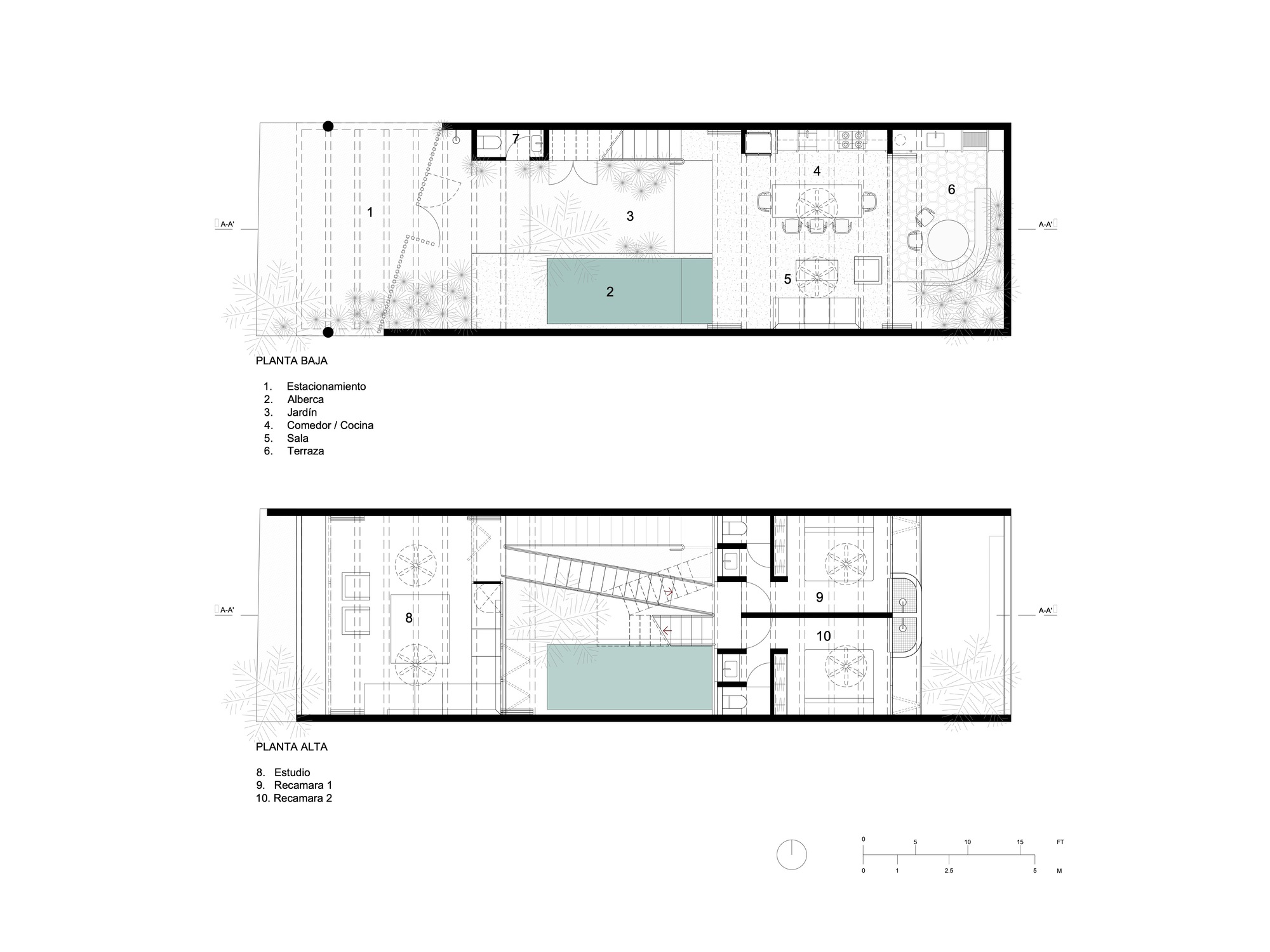
Text description provided by the architects. The Palmeras project consists of five small houses of 100 m2 with 2 bedrooms, a living room, a dining room, a small pool, a rooftop and a parking space. This complex is located on the coast of Oaxaca on a lot approximately 250 meters from the beach. The lots where the houses are designed have a frontage facing the street of approximately 6 meters wide and an average depth of 21 meters inland.
The coastal climate, the maintenance and the particular proportions of the land were determining factors in the design strategy. Normally in narrow and deep plots, the houses are arranged at the front or at the back of the plot, underutilizing a large part of the land that lacks construction.
Le Corbusier in the Curutchet House divides the house into two parts, one facing the front and the other at the rear, which are connected by a ramp that also allows the property to be lived in its entirety. Inspired by this solution, the houses of the Palmeras project divide their program into two volumes arranged in the front and back of each of the lots leaving an intermediate patio between each volume and a patio at the back of the lot so that all spaces enjoy cross ventilation and natural lighting.
The connection of each of these bodies is made by means of a zigzag staircase that gives access to the different half levels of the front and rear body and that motivates one to use the entire lot and live it in its entirety. The staircase also functions as a promenade giving different points of view of the house. The final part of the house ends at the rooftop that allows you to discover for the first time inside the project the maritime horizon of the beautiful beaches of Oaxaca.
Project gallery
客服
消息
收藏
下载
最近





























