查看完整案例

收藏

下载
设计概述 Project Overview
这是一处以现代法式风格为灵感的居住空间设计。项目通过流畅的空间布局和光影的灵动变化,营造出一个充满动态美感与优雅氛围的生活场景。空间的延展性是设计的核心,通过巧妙的衔接和景深塑造出层次丰富的视觉体验,同时光线的穿透性进一步赋予整体以温润和通透感。
Modern Elegance in Motion is a residential space design inspired by modern French style. The project employs fluid spatial layouts and dynamic light-and-shadow interplay to create a living environment brimming with both vitality and refined elegance. Spatial extension lies at the heart of the design, with thoughtful transitions and depth fostering a rich sense of layering, while natural light enhances overall warmth and transparency.
▼室内概览,overall of the project©上维 LAB
设计特别关注材质之间的对话与细节的精致表达。通过光滑与粗糙、硬质与柔软材质的对比,展现如同律动般的艺术氛围。开放与私密之间的界限被刻意模糊,功能分区在流动的动线上自然衔接,使空间更具灵活性。每一个转角与开口都经过精心推敲,光线的引导延伸了视线与脚步,塑造出空间与住户之间深刻的互动关系。整个设计在动与静之间找到绝佳的平衡,不仅满足了住户的功能需求,还将艺术感巧妙地融入生活细节,为居住者提供一个动静相宜、温润优雅的生活场域。
The design places significant emphasis on the dialogue between materials and the expression of intricate details. By juxtaposing smooth and textured surfaces, as well as hard and soft elements, the design establishes a rhythmic artistic atmosphere. Boundaries between openness and privacy are deliberately blurred, with functional zones flowing naturally along dynamic pathways, ensuring greater spatial flexibility. Every corner and opening has been meticulously crafted, with guided light extending both vision and movement, fostering an intimate interaction between the space and its inhabitants. Balancing motion and tranquility, this space seamlessly blends functionality with artistry, offering its residents a serene yet dynamic living environment imbued with a sense of timeless sophistication.
▼玄关概览,overall of the threshold©上维 LAB
设计理念 Design Concept
空间的连贯性与层次感 Continuity and Layering
动线设计突出空间的自然衔接,每个区域通过开放与私密之间的巧妙过渡,实现功能上的灵活性与视觉上的延展性。光线穿透弧形转角和窗格景深,在空间中勾勒出柔和的层次变化,赋予每个场域独特的情绪表达。
The design emphasizes natural spatial connections, where each area transitions seamlessly between openness and privacy, achieving functional flexibility and visual extension. Light flows through curved corners and deep-set window frames, outlining gentle layers that imbue each zone with its own unique emotional expression.
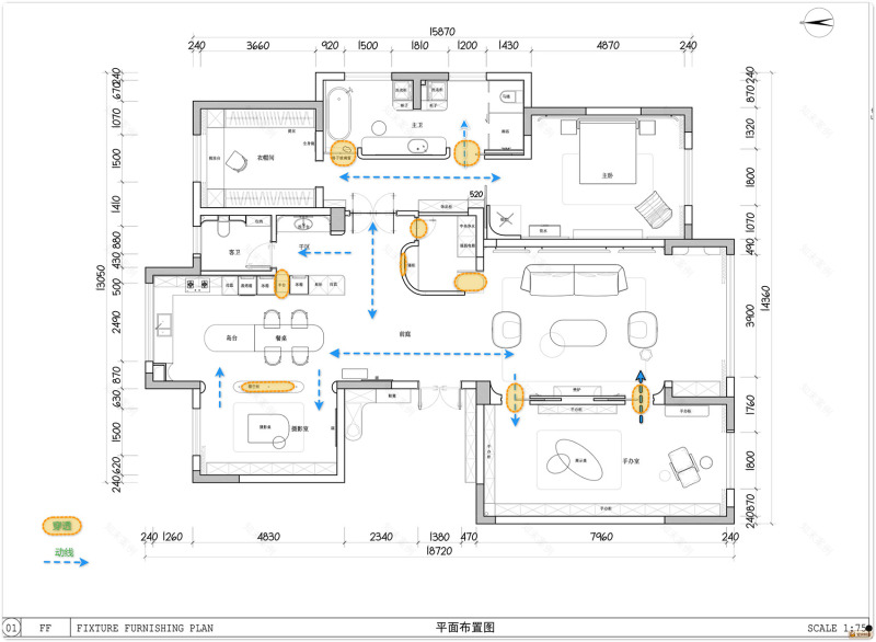
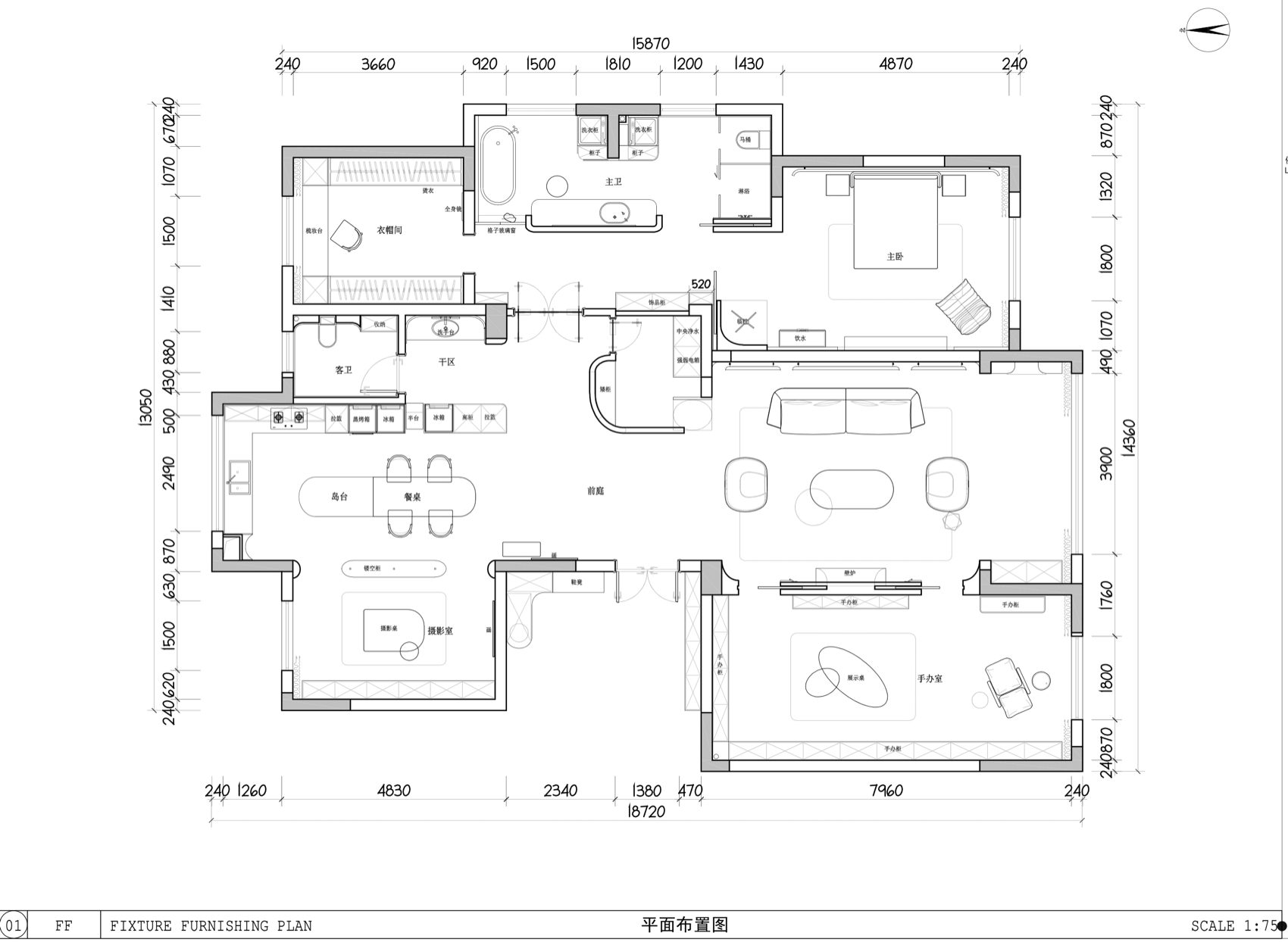
▼平面图,plan©上维 LAB
材质与光影的对话 Dialogue Between Materials and Light
材质的选择与搭配构成了一种动态的美学对话:奶油白的涂料与天然洞石呈现优雅的质感,柔软的布艺与金属元素的点缀则在硬与柔之间营造出平衡。隐藏踢脚线的做法也拉高了层高,空间更加整体。通过自然光与人工灯光的结合,光影雕刻出不同时间段的艺术氛围,让空间时时焕发出新鲜的魅力。
The design emphasizes natural spatial connections, where each area transitions seamlessly between openness and privacy, achieving functional flexibility and visual extension. Light flows through curved corners and deep-set window frames, outlining gentle layers that imbue each zone with its own unique emotional expression.
▼光影的对话,dialogue between light and shadow©上维 LAB
开放与私密的灵活平衡
Flexible Balance Between Openness and Privacy
通过模糊功能区之间的界限,弧形墙面与隐形门的设计增添了空间的灵动性。住户既能在开放的客厅中感受轻松的社交氛围,也能在卧室或阅读角落中找到属于自己的静谧空间。
By blurring the boundaries between functional zones, the design incorporates curved walls and concealed doors to enhance spatial fluidity. Residents can enjoy the relaxed social atmosphere of the open living room while retreating to the bedroom or reading corner for moments of quiet privacy.
▼开放与私密的灵活平衡,flexible balance between openness and privacy©上维 LAB
细节中的艺术韵律
Rhythmic Artistic Details
设计从经典法式线条和拱形框架中汲取灵感,并通过现代语言重塑这些元素,使其展现出兼具优雅与当代感的空间美学。每一个开口与转角都经过精心构思,通过光线与材质的配合,展现出空间如同律动般的艺术魅力。
Drawing inspiration from classic French lines and arch-shaped frameworks, the design reinterprets these elements in a modern language, creating a space that combines timeless elegance with contemporary aesthetics. Every aperture and corner has been meticulously crafted to harmonize light and material, resulting in a rhythmic and dynamic artistic ambiance.
▼经典法式线条和拱形框架,classic French lines and arch-shaped frameworks©上维 LAB
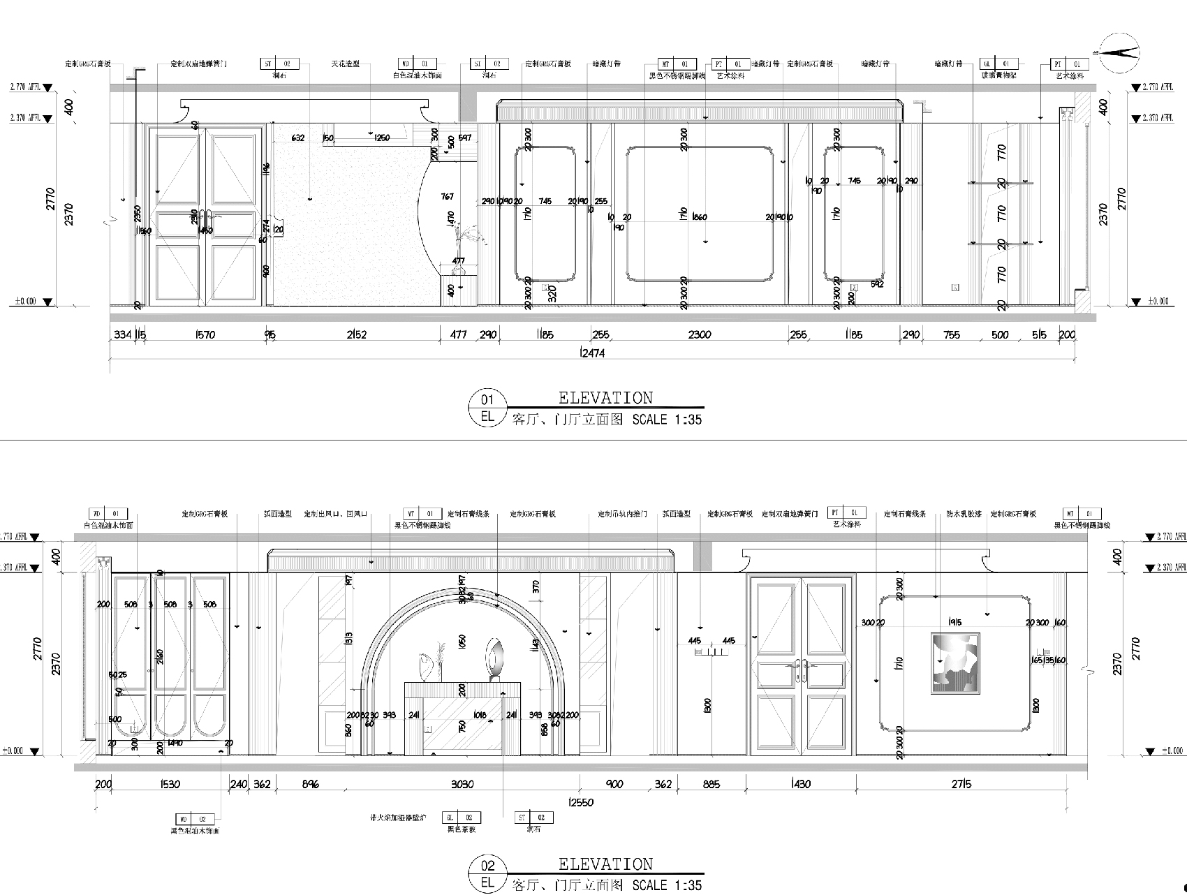
玄关设计 | 灵动与秩序的交融
Foyer Design | The Harmony of Fluidity and Order
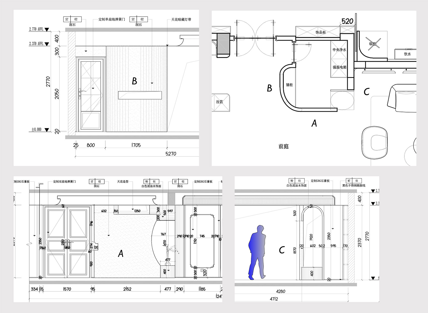
在房屋的中央,我们通过切割方式打开了储物间的洞石体块,使其既作为玄关,又向南侧的客厅敞开,引入自然光线。这个开放设计让储物间成为玄关与客厅之间的视觉焦点。一块高光弧形板进一步强化了视觉效果,搭配绿植或潮玩手作,构成优美的平面比例,同时为空间注入灵动与生机。
通往卧室的过道转折处采用黄金比例弧形设计,巧妙地扩大了动线,让空间流畅且宽敞。主卧入口采用双开门设计,进一步提升空间的开阔感与通透性。在北侧,横向开口将客厅的光线引入走廊,形成光线流动的视觉效果,与设备间门的内凹设计相呼应,共同强化空间的体块感与秩序感。
这一设计精心规划了光线与空气的流通,不仅避免了储藏室长期密闭产生潮湿问题,同时延伸了空间的视觉层次。切割的体块比例遵循黄金分割,使玄关设计兼具视觉美感与功能价值。玄关不仅是房屋的入口,更是光影流转与生活序章的开篇。
At the center of the home, the storage area was opened through precise cuts, transforming it into both a foyer and a connection to the south-facing living room, allowing natural light to flow freely. This open design establishes the storage area as a visual focal point between the foyer and the living room. A high-gloss curved panel enhances this effect, paired with greenery or handcrafted decor, creating a harmonious blend of functionality and aesthetic appeal while imbuing the space with vitality.
The corridor leading to the bedrooms incorporates a golden-ratio-inspired curved design, naturally expanding the pathway and enhancing spatial flow. The master bedroom features double doors, further amplifying the sense of openness and fluidity. A horizontal opening on the northern side allows light from the living room to filter into the corridor, creating a dynamic interplay of light and shadow, while recessed doors in the equipment area enhance the spatial block concept.
This design ensures a free flow of light and air, preventing dampness in the storage area and extending the visual depth of the space. The cut block proportions adhere to the golden ratio, striking a balance between functionality and aesthetics. The foyer serves not only as the home entry point but also as the starting chapter where light, shadow, and life converge seamlessly.
▼通过切割方式打开了储物间的洞石体块,the storage area was opened through precise cuts©上维 LAB
客厅设计 | 光影与舒适的交融
Living Room Design | A Blend of Light, Comfort, and Elegance
客厅设计以开放与舒适为核心,采用格子大玻璃窗引入大量自然光线,使空间更加通透明亮。建筑前方无遮挡的设计,让阳光能够最大程度地渗透进来,为客厅注入温暖而充满生机的氛围。主沙发选用云朵沙发,其柔软的羽绒填充与精致的皮质表面相结合,提供极致的舒适感,让主人能够全然放松,沉浸于与家人或朋友的交流时光中。
The living room focuses on openness and comfort, featuring large lattice glass windows that invite abundant natural light into the space. With no obstructions in front of the building, sunlight floods the room, infusing it with warmth and vitality. The centerpiece, a cloud-shaped sofa wrapped in fine leather and soft down, offers unparalleled comfort, allowing residents to relax fully while enjoying moments with family and friends.
▼客厅,living room©上维 LAB
壁炉采用切割洞石包裹搭配仿真火焰设计,不仅在夜晚营造出温馨的光影效果,还为空间注入了一种法式优雅。沙发背后的凸起分隔设计巧妙地丰富了空间层次感,而两侧隐藏灯光的加入进一步强化了客厅的进深与氛围。吊顶选用云朵状吊灯,自然地将视线向下引导,柔化了客厅与玄关之间的视觉对比,使整个空间在视觉上显得协调而不失丰富感。
The fireplace, encased in meticulously cut travertine and featuring a realistic flame design, adds a cozy glow and dynamic interplay of light during the evening, creating a welcoming and elegant ambiance. Behind the sofa, a raised partition introduces depth and texture, while integrated lighting on either side enhances the room’s atmosphere and sense of dimension. A cloud-shaped chandelier adorns the ceiling, naturally drawing the gaze downward and harmonizing the spacious living room with the adjacent foyer, achieving a cohesive and balanced design.
▼客厅,living room©上维 LAB
材质与色彩的搭配延续了整体设计语言,法式细腻的角花线条、奶油色调的主基调、木纹地板与同色系沙发相辅相成;暖色洞石为空间注入自然温暖,而跳色单人位的点缀则为空间增添了一抹灵动与活力。壁炉两侧设计了隐藏移门,当移门开启时,手办室与客厅相连,形成空间的自然过渡,同时创造了一条流畅的回形动线。关闭时则确保了隐私性。弧形内凹线条巧妙地软化了视觉过渡,赋予客厅更多的柔和与灵动。整个客厅设计通过光、材质与细节的多重对话,打造了一个既开放通透,又私密温馨的社交与休憩空间,为居住者带来充满层次感与和谐氛围的生活体验。
The material and color palette extend the refined French aesthetic: intricate cornice detailing, creamy hues, wood-grain flooring, and furniture in matching tones create a harmonious and inviting foundation. Warm-toned travertine enriches the space, while a vividly colored accent chair provides a playful vibrancy, adding character to the room. Hidden sliding doors flanking the fireplace offer flexible connectivity. When opened, they merge the collectibles room with the living area, forming a continuous loop that enhances spatial interaction. When closed, they maintain privacy while the curved recessed lines on both sides soften the spatial transitions, adding a touch of fluidity to the room. This living room design masterfully combines light, materiality, and detail to create a space that is both open and intimate. It offers a richly layered and harmonious environment, ideal for social gatherings or quiet moments of relaxation, embodying the essence of refined living.
▼温馨的光影效果,dynamic interplay of light during the evening©上维 LAB
手办室设计 | 收藏与生活的融合
Display Room Design | A Fusion of Collecting and Living
手办室以整面 L 型展示柜为核心,通过重组排列的设计形式打破传统柜体的单调。透明柜门与实门柜门的交替结合,搭配简约罗马柱分隔,不仅提升了视觉层次,还赋予了手办收藏更多艺术性。展示柜前端设计了斜 45 度光带,为手办提供精准的打光效果,突出其细节与质感;柜体后端的补光灯带则专为透明材质手办提供柔和的氛围光照,使其更加灵动通透。
The display room centers around a full L-shaped showcase cabinet, breaking away from conventional monotony through its restructured layout. Transparent cabinet doors interspersed with solid ones, complemented by minimalist Roman column dividers, enrich the visual hierarchy while imbuing the space with an artistic dimension. At the forefront, 45-degree angled light strips provide precise illumination for the collectibles, highlighting intricate details and textures. Meanwhile, ambient backlighting enhances the display of transparent figurines, lending a vivid and dynamic effect.
▼手办室,display room©上维 LAB
柜体前布置了宽窄不一的桌面设计,既可用于办公,又能灵活展示手办,满足多样化的功能需求。此外,一个温馨的小型休闲区为主人提供了一个喝咖啡、把玩手办或与朋友交流的轻松角落。不同场景的灯光方案明确区分了功能区域,既满足了手办展示的专业需求,又为空间注入了丰富的氛围感。手办室不仅是收藏与展示的场所,更是一个将功能性与舒适感融为一体的专属空间,为收藏爱好者带来了无限欣赏与分享的乐趣。
In front of the cabinets, tabletops of varying widths serve dual purposes: as a workspace and a flexible platform for showcasing collectibles. This multifunctional design ensures adaptability and practicality. Additionally, a cozy lounge area invites moments of relaxation, perfect for enjoying coffee or sharing the joy of collecting with friends. Customized lighting schemes further define the functional zones, meeting both the professional needs of the display and the atmospheric requirements of the room. More than just a storage area, this display room is a thoughtfully curated space that harmonizes functionality and comfort, offering a sanctuary for enthusiasts to appreciate, create, and connect.
▼手办室,display room©上维 LAB
餐厅设计 | 开放与融合的用餐体验
Dining Room Design | An Open and Integrated Dining Experience
由于主人烹饪频率较低,对油烟需求不高,餐厅、厨房与岛台采用了一体化布局设计,使整个空间显得更加宽敞明亮。这种设计在满足基本功能的同时,通过巧妙的空间整合,打造了一个兼具实用性与视觉美感的用餐环境。
Since the homeowner rarely cooks and requires minimal oil-smoke management, the dining room, kitchen, and island are designed as an integrated space, creating a broad and open layout that is both practical and visually appealing. This thoughtful design combines functionality with aesthetic coherence, making the space ideal for dining, socializing, and everyday living.
▼餐厅、厨房与岛台采用了一体化布局设计,the dining room, kitchen, and island are designed as an integrated space©上维 LAB
厨房配备了现代化设施,包括灶具、洗碗机、微蒸一体机、烤箱,以及双冰箱以便对食物进行分类储存。此外,加入了凯斯宝玛的高升拉篮、联动拉篮、碗碟拉篮和调味拉篮等先进储物解决方案,确保收纳更加高效井然有序。中岛台设计为六抽屉结构,提供了充足的储存空间,同时与半圆弧形的餐桌连为一体,形成了一个统一的用餐核心区域,既具功能性又富设计感。
The kitchen is fully equipped with modern appliances, including a stovetop, dishwasher, microwave-steam oven, conventional oven, and dual refrigerators for organized food storage. Advanced storage solutions from Kesseböhmer, such as tall pull-out baskets, tandem pull-outs, plate racks, and spice organizers, ensure an efficient and orderly workspace. The island features six spacious drawers for additional storage and seamlessly connects with a half-circle dining table, forming a cohesive and functional dining centerpiece.
▼厨房配备了现代化设施,The kitchen is fully equipped with modern appliances©上维 LAB
高柜的中间特别留出了一个穿透口,用于放置配色石墩,增强了空间的层次感和通透性,同时让视线自然延伸至洞石包围的公共洗手池区域。旁侧的镂空展架不仅增加了储物功能,还巧妙地将摄影室与餐厨空间融合,打破了功能区的界限,为整体空间增添了更多的互动性与灵活性。整个设计以开放融合为理念,在满足基础生活需求的同时,将空间塑造为一个充满社交性、生活气息与创意氛围的场域,为居住者提供了更自由、更有趣的用餐体验。
A design highlight is the tall cabinet, which includes a central cutout featuring a matching stone pedestal. This break in the cabinetry adds depth and transparency to the space, directing the sightline toward a public washbasin encased in travertine. Adjacent to this, a hollowed-out shelving unit expands storage capacity while integrating the photography studio into the dining and kitchen area, fostering interaction and spatial integration. This dining room embodies the concept of openness and cohesion, offering a versatile environment that blends practicality with aesthetic enjoyment. It serves as a dynamic space tailored to the homeowner’s lifestyle, encouraging dining, creativity, and connection.
▼以开放融合为理念,embodies the concept of openness and cohesion©上维 LAB
主卧设计 | 私密与舒适的完美平衡
Master Bedroom Design | A Perfect Balance of Privacy and Comfort
主卧采用套房布局,包含卧室、卫生间、衣帽间和走廊。设计以温暖与功能为核心,将每个区域巧妙融合,构建了一个既舒适又富有层次感的居住空间。
The master bedroom is designed as a suite, incorporating the bedroom, bathroom, walk-in closet, and connecting hallway. With warmth and functionality at its core, the design seamlessly integrates each area to create a comfortable and visually dynamic living space.
▼主卧室设计,The master bedroom design©上维 LAB
卧室的背景墙采用悬空包围设计,仿佛一个温暖的怀抱,为空间增添安全感与舒适性。在角落特别设置了一个临时挂衣区:蓝绿色的四分之一球体与金属杆相结合,方便悬挂睡衣、浴袍或次日要穿的衣物,避免频繁进入衣帽间。这一设计不仅具有实用性,还成为独特的装置艺术,将临时挂衣区划分为一个独立的体块,同时巧妙隐藏了滑动收纳门,使其嵌入墙体和结构中,实现美观与功能的完美结合。
The bed backdrop features a floating, enveloping design that evokes a sense of warmth and security. A standout feature is the temporary hanging area located in a transitional corner, which includes a blue-green quarter-sphere installation paired with a hanging metal rod. This space provides a convenient spot for items such as sleepwear, robes, or next-day outfits, minimizing the need to frequently access the walk-in closet. This unique design doubles as an elegant display piece while cleverly concealing the sliding storage door embedded within the wall, achieving a seamless blend of practicality and aesthetics.
▼主卧室设计,The master bedroom design©上维 LAB
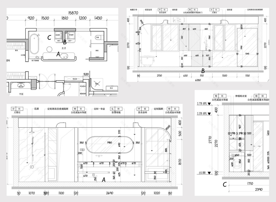
卫生间的设计通过拆除隔断墙,将两间空间打通,围绕中间的承重墙设置了洗衣柜和收纳区。利用挖空设计手法,配以波浪弧形板,使整个空间显得灵动而富有生命力。靠近洗浴区的镂空设计上方用于悬挂浴巾,下方封闭部分用于放置毛巾;另一侧的镂空上用于收纳,下方则设计成可放置衣篓的功能区。通长的洗手台不仅满足洗漱需求,还兼具梳妆功能,为日常生活提供极大的便利性。浴缸位于弧形墙顶之下,搭配柔和的顶面氛围灯光,墙边横板可放置香氛蜡烛与音响,营造出惬意优雅的沐浴体验。
The bathroom design unifies two previously separated spaces by removing a partition wall, creating functional zones around the central load-bearing wall. The laundry cabinet and storage areas adopt a block-like void-cutting approach, complemented by wave-shaped curved panels that introduce fluidity to the design. Near the shower area, hollow sections at the top allow for towel hanging, while enclosed sections below store additional linens. Opposite this, another hollow area accommodates baskets and storage for added functionality.
▼主卧室设计,The master bedroom design©上维 LAB
▼浴室设计,The bathroom design©上维 LAB
设计打通后,卫生间的两侧窗户使自然光能够通过玻璃移门与装饰玻璃门穿透至主卧走廊,形成流动的光影效果。衣帽间采用两侧倒置相接的门型设计,中央梳妆台进一步优化了空间的功能性与美感。通过体块、光线与材质的结合,主卧实现了功能与美学并重,打造出一个兼具私密性与舒适性的栖息之所。
A full-length vanity doubles as a space for washing and makeup, while the bathtub is positioned beneath an arched ceiling. Soft ambient lighting and shelving for candles, aromatherapy, and speakers enhance the bathing experience, providing a serene and luxurious atmosphere. The removal of partitions allows natural light to filter through glass sliding doors and decorative panels, filling the hallway with dynamic light and shadow effects. The walk-in closet features mirrored doorways on opposite sides, with a central vanity table serving as the focal point. This arrangement ensures both usability and visual harmony. Through the meticulous combination of blocks, lighting, and materials, the master bedroom achieves a balance of functionality and aesthetics, offering residents a private and comfortable sanctuary.
▼衣帽间,The walk-in closet ©上维 LAB
▼衣帽间,The walk-in closet ©上维 LAB
材质 | 服务于生活的美感
Material | Beauty That Serves Life
“设计要让人感到舒适,而非让人感到存在。”——安东尼·高第(Antoni Gaudí)
“Design should make people feel comfortable, not aware of its presence.” — Antoni Gaudí
设计的核心不在于复杂形式的表现,而在于营造一种贴近人心的舒适感。通过自然材质的精心运用和流畅空间的完美融合,优雅与氛围自然流露。即使去掉所有法式的线条修饰,空间的氛围和美感依然不减,材质与光影本身便能讲述空间的故事。
设计师在材质的选择上尤为考究,使用带真实纹理的地板砖、天然洞石、理石肌理涂料和温润的漆面,搭配米白色、层次丰富的绿意与洞石的天然米黄色,让整体色调如同油画般自然和谐。GRG 隐藏踢脚线的做法,独树一帜,实用同时让空间更加整体流畅。无需多言,步入空间的一刻,生活的气息和内在的和谐美便悄然流露。
The essence of design lies not in showcasing complex forms but in fostering a sense of comfort and connection. Through the thoughtful use of natural materials and seamless spatial integration, elegance and atmosphere naturally emerge. Even with all decorative lines removed, the space retains its ambiance and beauty, as the materials and light tell their own story. The designer carefully selected textured floor tiles, natural travertine, marble-patterned finishes, and soft lacquer surfaces. Paired with a palette of cream, layered greens, and the natural beige of travertine, the space feels harmonious, like a painting that requires no explanation. As one steps into the room, the atmosphere exudes life and inner harmony, drawing people in effortlessly.
▼生活的气息和内在的和谐美,the atmosphere exudes life and inner harmony©上维 LAB
“找到你喜欢的样式,那便是你的生活方式。”设计并非追求一种单一的规则或定义,而是对住户审美和生活方式的回应。设计师倾听住户的需求,将他们的喜好融入设计之中。例如,女主人作为潮玩爱好者,通过精心布置圣诞树和点燃壁炉,为家中注入了独特的个人符号。这些日常场景,不仅是她对生活方式的表达,也体现了设计师对住户需求的深刻理解——打造一个既满足实用需求,又能够承载住户喜好的个性化空间。
“Find the style you love, and that will become your way of life.” Design is not about imposing rules or definitions but about responding to the homeowner’s aesthetics and lifestyle. The designer’s role is to understand these needs and weave them into the space. For instance, the homeowner, a collector and enthusiast of designer toys, uses a Christmas tree and a lit fireplace to inject her home with a personal touch. These elements are not merely decorative—they are extensions of her identity and her way of life, supported by a design that values her desires and expressions.
▼生活的气息和内在的和谐美,the atmosphere exudes life and inner harmony©上维 LAB
优秀的设计不在于让住户理解艺术或适应空间,而是以温和的方式,让空间接纳住户的日常需求和情感表达。好的设计是一种陪伴,不是教条,而是住户自身审美与生活方式的自然延续。设计师通过功能优化与氛围塑造,帮助住户打造一个既实用又美好的栖息之所,同时尊重预算约束与审美需求,完成一种温暖而真实的艺术呈现。
Good design does not ask the homeowner to adapt to the space or comprehend abstract artistic concepts. Instead, it welcomes the homeowner’s routine and emotional expressions, becoming an extension of their aesthetics. Great design is a quiet companion—not prescriptive but a natural reflection of the resident’s taste and lifestyle. By optimizing functionality and creating an inviting ambiance, the designer crafts a space that is both practical and beautiful, respecting the budget while delivering warmth and authenticity.
▼温暖而真实的艺术呈现,delivering warmth and authenticity©上维 LAB
真正的设计,不是让空间成为一种定义,而是成为居住者生活的延续与表达。设计应因人而变。好的设计,因为服务于生活,而显得真实且动人。
“Good design is not about defining a space but about allowing the space to reflect and extend the lives of its residents.” Design should serve life, and in doing so, it becomes genuine, meaningful, and deeply human.
项目名称:现代法式|流动的优雅
项目类型:室内设计
设计方:扬州上维美学空间设计有限公司
设计团队:万礼,张人杰,周涛,赵彦欣
项目地址:江苏省扬州市名门壹品
完成年份:2024.11
建筑面积:230㎡
摄影版权:扬州上维美学空间设计有限公司
施工方:尚铭装饰施工
材料:洞石,岩板,涂料,烤漆,木作,智能化,GRG 等
品牌:DOWOOD|大木整体家居,意大利马拉齐 MARAZZI,企一照明 KEEY,摩根全屋智能 MOORGEN,MIELE 美诺电器,博世电器,意大利威罗 VERYLUX,汉斯格雅|杜拉维特,艾默生,日立
Designer: Sunway Lab design
Sologan:”Space is for people, and design flows from the heart.
Completion Date: 2024.11
Main Designer: L W
Design Team: Renjie Zhang,Zoe Zhou,Yanxin Zhao
客服
消息
收藏
下载
最近































































