查看完整案例


收藏

下载
房屋,巴西圣保罗
设计师:AR Arquitetos
面积:290 m²
年份:2020
摄影:Maíra Acayaba
建造商:Padrão Móveis
负责建筑师:Marina Acayaba, Juan Pablo Rosenberg
合作:Julia Galves, Vitor Endo
景观设计:Rodrigo Oliveira
建筑公司:Gaia Construtora
结构计算:Reyolando Brasil
锁匠:Artplan Serralheria Artística
电气安装:PKM Tecnologia em Projetos LTDA
水平安装:Usina Consultoria e Projetos Ltda
城市:São Paulo
国家:巴西
设计师描述 | Designer description:
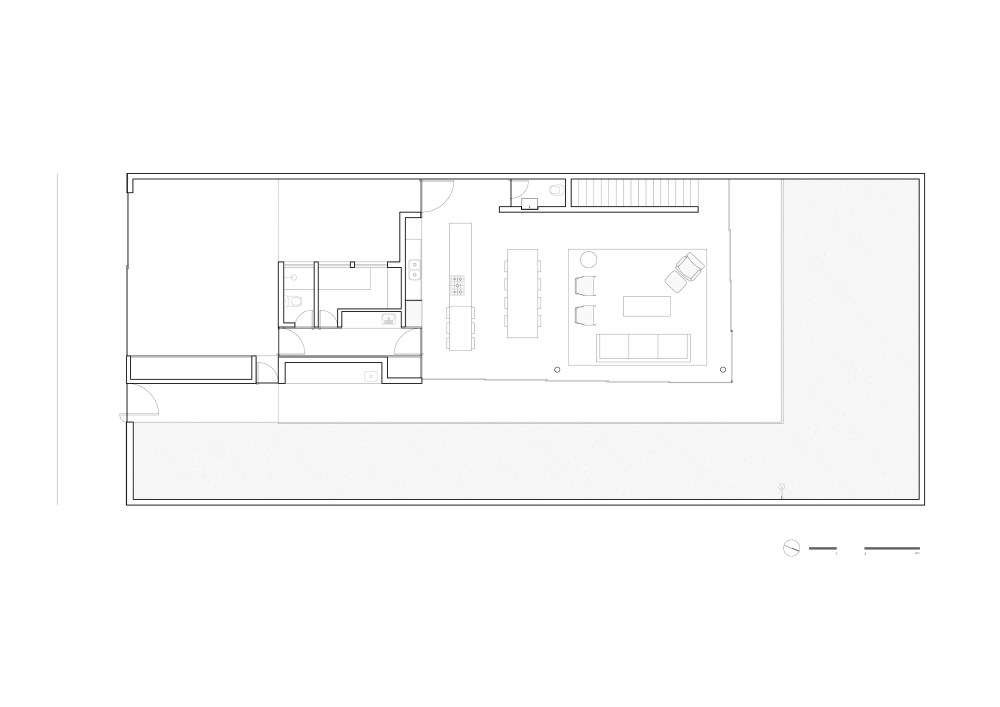
O projeto desta casa urbana se define pelo volume puro do pavimento superior que cobre e libera o térreo social conectado ao jardim. Portas deslizantes abrem completamente a sala e a cozinha para o verde do lote, enquanto no piso superior, uma pele de brises em chapa branca perfurada define e dá a privacidade e ventilação necessárias à área íntima.
Os caixilhos recuados dos quartos dão lugar à generosa varanda que percorre e sombreia todo o perímetro, criando uma zona de amortecimento e estar protegida pelo véu metálico que enevoa a vista.
A escada junto à empena longitudinal atravessa a casa e segue numa reta em direção à cobertura de vidro, na qual um alçapão opaco dá acesso à cobertura habitável. Ali, o deck sob as frondosas copas das árvores deixa a vista alcançar longe.
O setor de serviço localizado à frente junto à rua foi encerrado em preto para fazer flutuar o prisma branco suspenso cuja pele se abre conforme necessidade, redesenhando sua volumetria.
项目完工照片 | Finished Photos
客服
消息
收藏
下载
最近







































