查看完整案例

收藏

下载

翻译
CÁLCULO ESTRUCTURAL DE BASES AISLADAS
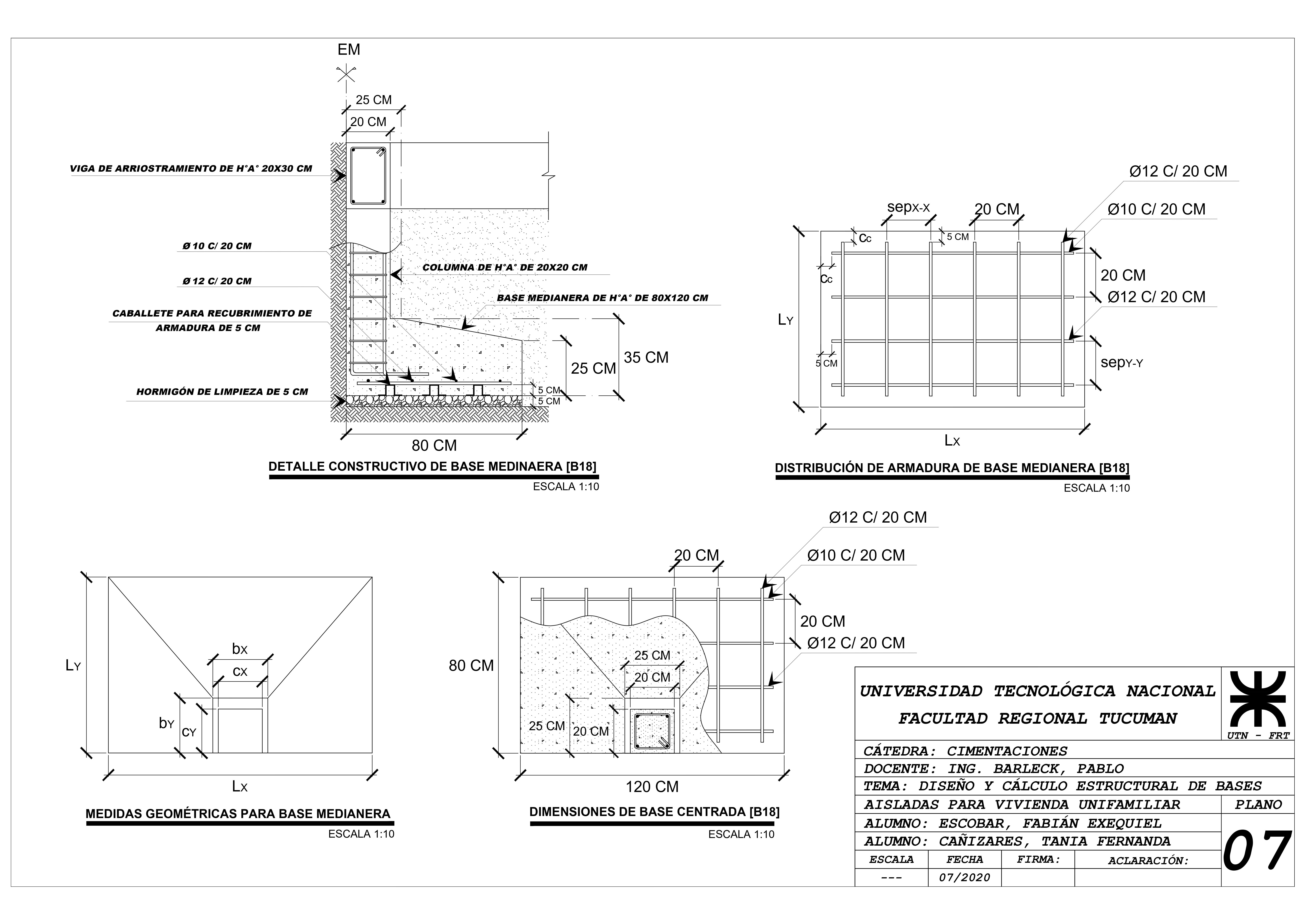
En este capítulo se presenta el diseño y cálculo estructural de bases aisladas para una vivienda unifamiliar de 2 plantas, ubicada en la ciudad de San Miguel de Tucumán, Provincia de Tucumán, Argentina. El diseño se realizó siguiendo los lineamientos del Reglamento CIRSOC 201 (2005) y considerando los siguientes parámetros de diseño:
Tensión admisible del suelo: 0,090 MPa.
Hormigón: H – 20.
Peso específico del H°: 24 kN/m3.
Acero: ADN – 420.
Mampostería: Ladrillos huecos de 18 cm de espesor.
Peso propio de losas de viguetas pretensadas: 2,67 kN/m3.
Carga permanente sobre losas: 1,70 kN/m3.
Sobrecarga de servicio: 2,00 kN/m3.
Por motivos arquitectónicos, las columnas del lado izquierdo del terreno son esquineras en lugar de medianeras.
En base a esta información, se realizó el respectivo análisis detallado de las cargas actuantes en la estructura, considerando las áreas y longitudes de influencia de cada elemento en planta baja, planta alta y cubierta. Mediante el método de tensiones admisibles, se determinaron las dimensiones óptimas y necesarias de las fundaciones, teniendo en cuenta la capacidad portante del suelo.
Las dimensiones adoptadas, considerando los estados límites últimos de la presente norma, fueron verificadas al corte y punzonado para las combinaciones de carga permanente y sobrecarga, y se diseñaron las armaduras de flexión, tanto mínimas como principales, asegurando una resistencia superior a la requerida para cada caso.
Por último, se elaboró el plano de cimentación, indicando la cota de fundación a -1,15 m respecto al nivel del suelo y detallando las armaduras para cada tipo de base: centrada, medianera y esquinera. Los resultados de las verificaciones demuestran que el diseño propuesto garantiza una seguridad estructural suficiente y adecuada.
En conclusión, el diseño de las fundaciones cumple con todos los requisitos técnicos y normativos, asegurando una estructura resistente y duradera para la vivienda unifamiliar, en función de las características del suelo y las propiedades de los materiales.
客服
消息
收藏
下载
最近

















