查看完整案例

收藏

下载
近3.5米高的天花板,公寓拥有三个朝向,但却采用了标准开发商的布局方案,本可以拥有格外独特的布局。
▼室内概览
▼餐厅
▼空间之间的景观
设计打破了空间的“屏障”,去掉了布局中那些又暗又长的走廊。我们创造了一个空间与“空间之间”的景观。充分利用层高——我们添加了第二层——一个平台。这样,公寓的使用面积增加了超过17平方米。我们享受私密与开放的交替、光与影的变化以及那些惊喜的瞬间——比如,当我们不知道拐角处会遇见什么,或者当我们拉开门或掀起帘子时。
▼二层平台
▼二层平台
我们注重比例——什么才是刚刚好,什么又显得多或少?当我从这里走过时,会发生什么?
我们喜欢那些无法被精确定义的空间,喜欢边界模糊、功能流动的房间。比如,当我们坐在高处晃着腿读书,或看着电影准备好即将放映时,那一刻的氛围。是的,这会是一个美好的电影之夜。
▼开放的卫生间
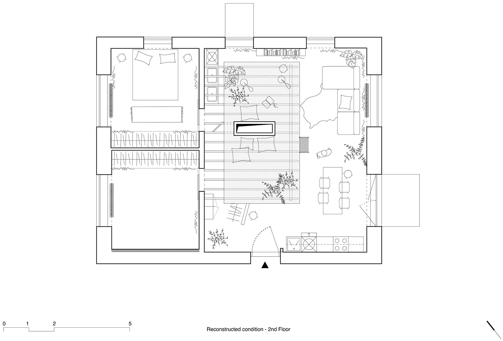
▼原始平面
▼一层平面
客服
消息
收藏
下载
最近






























