查看完整案例

收藏

下载
位于中国深圳市南山区的新幼儿园室内设计改造。
This is an interior project for a newly established kindergarten located in Nanshan District, Shenzhen, China.
▼幼儿园航拍,Aerial view © 吴嗣铭
▼入口,Entrance © 吴嗣铭
深圳的经济与科技发展迅速,其中不乏国内外贸易及 IT 企业聚集于此。设计概念参考“发展”与“成长性”的地域特性,在此背景下,打造促进儿童自发地运动、自主学习与创造的空间环境。
The kindergarten is situated in a region known for trade and IT-related businesses, and the design concept was developed to encourage children’s spontaneous physical activity, reflecting the area’s dynamic growth and development.
▼花园,Garden© 吴嗣铭
▼花园厨房,Kitchen in the garden © 吴嗣铭
建筑中庭是具有象征性的穿越四层楼的挑空空间,以该空间为核心,东西的三层楼分别配备了大型爬网游戏设施。舒适宽敞的中庭连接着所有的功能空间,是儿童上下活动的游戏与运动场,是不同视线交汇的交流场所,更是孕育好奇心与挑战的场所。教室连接走廊的位置上,设置了面朝中庭的大透明窗和绘本角,保证充足光照进入教室的同时,加强了走廊的丰富印象,常规单调的走廊变为游戏与学习的场所。
At the center of the existing building is a four-story atrium, surrounded by large climbing net structures that connect the three levels on both the east and west sides. The atrium links various spaces within the building. Not only does it serve as vertical circulation, but also as a place for social interaction and a challenge for the children. Large windows and reading areas are placed in the hallways facing the atrium, allowing natural light to enter the classrooms while transforming the typically monotonous hallway into a space for play and learning.
▼中庭,Atrium © 吴嗣铭
▼高视角看向中庭,High angle view towards the atrium © 吴嗣铭
为了让儿童无论身处幼儿园的何处,都能感受到自然的变化,设计在中庭种植了一棵大树,随着时间的流逝,孩子们可以观察其生长与变化,这种变化也将融入幼儿园自身的发展中。另外,孕育生命的“鸟巢”也是本次设计的主题,鸟巢空间是游戏与学习的空间,鸟巢元素成为幼儿园的象征,成功在人们心中留下深刻的印象。
Additionally, a large tree is planted in the courtyard so that children can observe its growth and transformation over time, allowing them to feel the flow of nature no matter where they stand in the building. In addition to the play and learning areas designed around the concept of a ‘bird’s nest,’ representing nurturing life, it also serves as the symbol of the kindergarten, resulting in a space that imprints an everlasting memory on children.
▼中庭的树木,Trees in the atrium © 吴嗣铭
室内设计部分的核心理念在于真实素材的使用,走廊墙体采用了项目地周边地层(旧红色砂岩)元素来制作土墙,用竹木复合材来开发和表现弯曲的鸟巢造型,从视觉与触感上给予儿童刺激,营造与自然共生的幼儿园,加强孩子们对家乡城市的理解、热爱。
The interior design focuses on using natural materials, such as adopting earth walls inspired by the site’s geological layers (old red sandstone) and bending laminated bamboo to represent a bird’s nest. This approach aims to stimulate both visual and tactile senses while fostering an understanding of nature and the local environment.
▼教室,Classroom © 吴嗣铭
▼多功能教室,Multi-purpose classroom © 吴嗣铭
▼办公室,Office© 吴嗣铭
为了减少建筑废材产生和对环境负担的考虑,设计选择最低限度去改造建筑外立面,局部增设大开口门窗和折叠门,目的是把幼儿园内部的活动景象向外部传达。电动开关的玻璃天窗能够配合中庭,提供新鲜的空气流动,控制光与风,实现不过度依赖机器设备的舒适生活环境。
To reduce environmental impact from construction waste, most of the existing building’s exterior walls were left unchanged, with a few large openings and foldable doors added to connect the indoor activities to the outside. Together with operable glass skylights, these features create a flow of air around the atrium, and control light and wind without relying heavily on mechanical systems.
▼爬网,Crawling © 吴嗣铭
▼阳台,Balcony© 吴嗣铭
城市中心的幼儿园存在面积条件有限这个共通的课题,设计用草坪坡道将负一层与一层的花园连贯,从立体上确保儿童的活动流线、运动量,扩大每日活动的范围。在这里,幼儿园提供了符合儿童不同成长阶段里的需求,引发他们对万物的兴趣与关心,自然地引导身体与心灵的发育,从日常生活去促进个性化的成长。
Limited space is a common challenge typically faced by kindergarten in an urban area. To cope with the challenge, spatial garden with no dead ends was created by connecting the basement and ground floor gardens with stairs and grass-covered slopes, ensuring that children have plenty of opportunities for physical activity and a variety of daily experiences. The design encourages children’s curiosity and interest according to their developmental stages, naturally stimulating their bodies and minds to promote growth in their everyday lives.
▼-1 层平面图,-1F plan © HIBINOSEKKEI + Youji no Shiro
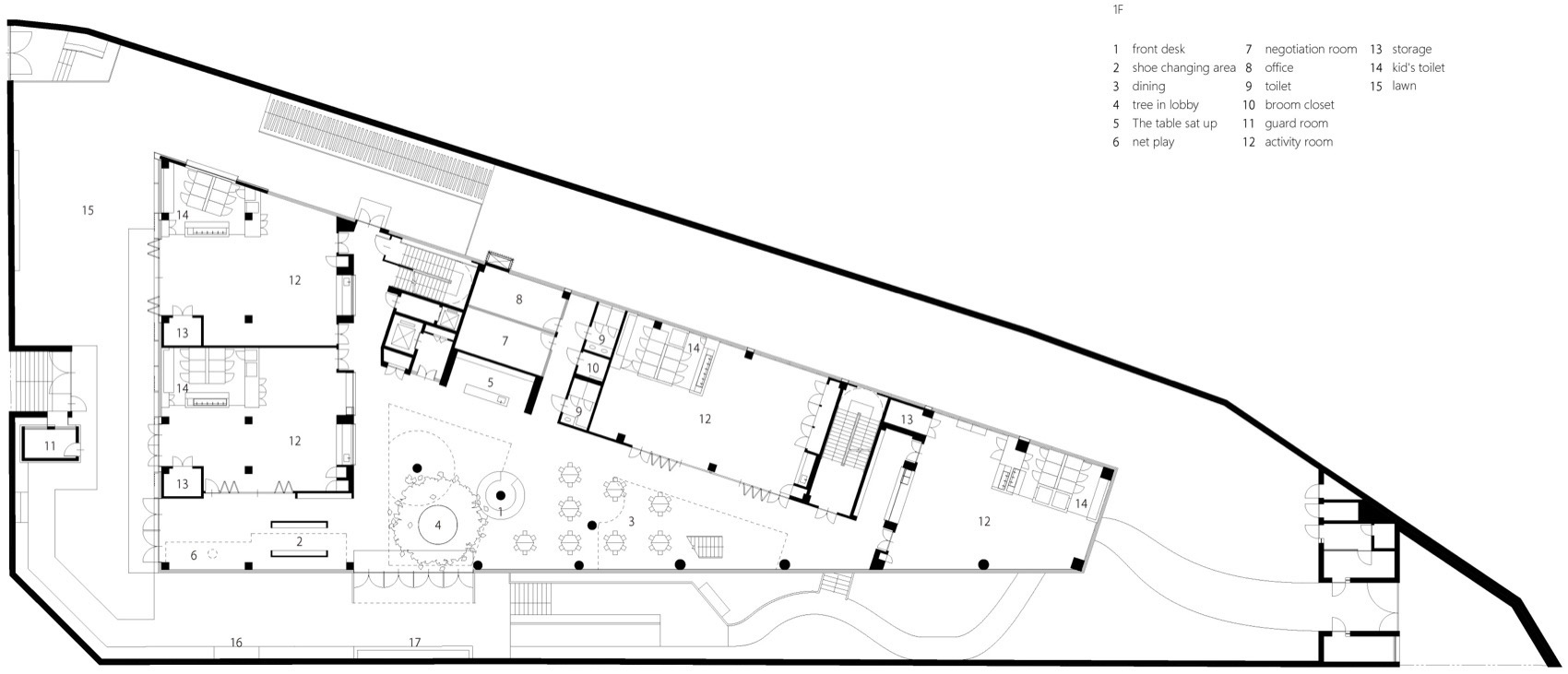
▼1 层平面图,1F plan © HIBINOSEKKEI + Youji no Shiro
▼2 层平面图,2F plan © HIBINOSEKKEI + Youji no Shiro
▼3 层平面图,3F plan © HIBINOSEKKEI + Youji no Shiro
▼立面图,elevation © HIBINOSEKKEI + Youji no Shiro
▼剖面图,section © HIBINOSEKKEI + Youji no Shiro
项目名称:Cheer Kindergarten
项目地址:中国深圳市
设计监理:HIBINOSEKKEI + Youji no Shiro
占地面积:2743㎡
建筑占地:1110㎡
用地面积:4240㎡
结构规模:钢筋混凝土,地下一层,地上四层。
竣工时间:2023 年 11 月
照片拍摄:吴嗣铭
Instagram:@youji_no_shiro @takuhibino
facebook:@幼児の城
twitter:@ Taku Hibino(HIBINOSEKKEI) 日比野設計+2343+KIDSSMILELABO
@youji_no_shiro
Project name:Cheer Kindergarten
Site:Shenzhen, China
Architect:HIBINOSEKKEI + Youji no Shiro
Site area:2743㎡
Building area:1110㎡
Floor area:4240㎡
Structure:RC+Steel,4-story buildingwithone underground floor
Completed in November 2023
Photograph:Siming Wu
Instagram:@youji_no_shiro @takuhibino
facebook:@幼児の城
twitter:@ Taku Hibino(HIBINOSEKKEI) 日比野設計+2343+KIDSSMILELABO
@youji_no_shiro
客服
消息
收藏
下载
最近





























